PATRICK MASZCZYK
Appeler Email
Retour
Maison traditionnelle de 162 m² - 1761384789442(1)(1).jpg

Maison traditionnelle de 162 m² à Arnouville

440 000 €
95400 Arnouville
Ref. 309118

Maison familiale de 162 m2 + Appartement de 55 m2 et studio 24 m2 indépendants

À seulement 900 mètres de la mairie et 10 minutes à pied de la gare RER D , découvrez cette spacieuse propriété familiale située dans un quartier résidentiel calme et recherché d’Arnouville.

Offrant environ 260 m² utiles, cette maison se compose de plusieurs espaces indépendants, parfaits pour accueillir une grande famille, exercer une activité libérale ou encore générer des revenus locatifs.

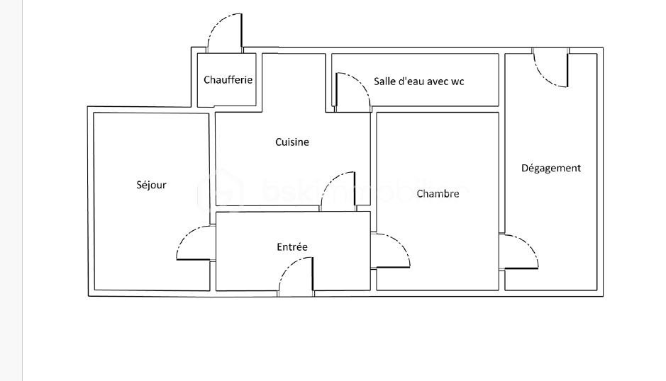
👉 1 - La maison principale (en rez-de-chaussée surélevé) propose environ 83 m² habitables comprenant :

Une entrée , Un séjour lumineux, Une cuisine, Deux chambres, Une salle d'eau WC,
Et au rez-de-chaussée : un spacieux garage, une chambre supplémentaire et une chaufferie.

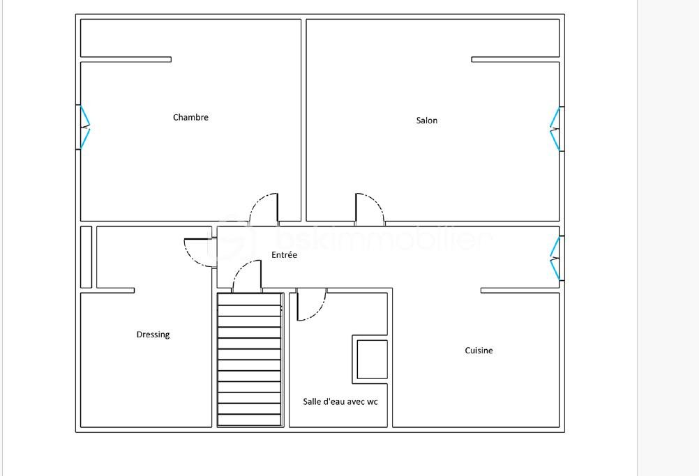
👉 2 - Au 2ème Étage Un appartement indépendant de 55 m², avec entrée séparée, offre un bel espace de vie avec cuisine, chambre et salle d’eau
— idéal pour un adolescent, un parent ou un locataire.

👉 3 - A l'arrière de la maison...Un studio attenant et indépendant de 24 m²

👉 4 - Au fond du jardin.. Un bâtiment d’habitation de 3 pièces d’environ 45 m² avec un appentis offrant encore davantage de potentiel.

Le tout est édifié sur un terrain clos de 490 m², agréable et facile d’entretien.

👉 Atouts majeurs :
*** Multiples entrées indépendantes,
*** Proximité des transports et des commodités,
*** Fort potentiel d’investissement (colocation, location meublée ou saisonnière).

➕ Une maison polyvalente, offrant de nombreuses possibilités dans un secteur pratique et résidentiel !
Cette annonce référence 309118 vous est présentée par votre agent commercial BSK Immobilier PATRICK MASZCZYK (EI) immatriculé au RSAC de CUSSET (03300) sous le numéro 32063191400043.

Prix du bien : 440 000,00 €
Les honoraires d'agence sont à la charge du vendeur.

A propos des performances énergétiques :
Date de réalisation du diagnostic énergétique : 19/09/2025
Score DPE : 266 kWhEP/m²/an
Score GES : 34 kgepCO2/m²/an
Montant estimé des dépenses annuelles d'énergie pour un usage standard : entre 3530.00 € et 4870.00 € par an. Prix moyens des énergies indexés sur l'année 2024 (abonnements compris).

Les informations sur les risques auxquels ce bien est exposé sont disponibles sur le site Géorisques : www.georisques.gouv.fr


  • 7 pièces
  • 162 m²
  • Exposition Sud-Nord
  • 4 chambres
  • Parking
  • Terrasse
  • Calme

266 kWhEP/m².an
E
34 kgepCO2/m².an
D

Prix : 440 000 €


  • Année de construction : 1970
  • Transport / Ligne
  • Transport / Station
Maison traditionnelle de 162 m² - Rdc Arnouville.png Maison traditionnelle de 162 m² - 1er Etage Arnouville.png
Maison traditionnelle de 162 m² - 1761384789442(1)(1).jpg
PATRICK MASZCZYK
PATRICK MASZCZYK
5 biens en vente

Autres biens qui pourraient vous plaîre

  • 95400 Arnouville
    • 4 pièces
    • 71 m²
    • 3 chambres
  • FLORIAN ROGER - 250619045550_photo_en_situation_professionnelle
    95400 Arnouville
    • 6 pièces
    • 140 m²
    • 4 chambres
    • 616 m² de terrain
  • BERNARD BENSOT - bensot_bernard
    95400 Arnouville
  • HALLA SANAA ABDOOL RASSOOL - 0wP47GaztDnXffEKj03Z6W
    95140 Garges-Les-Gonesse
    • 2 pièces
    • 47,57 m²
    • 1 chambre