Située dans un quartier calme et agréable, cette maison de construction solide des années 70 saura vous séduire par ses volumes et son potentiel.
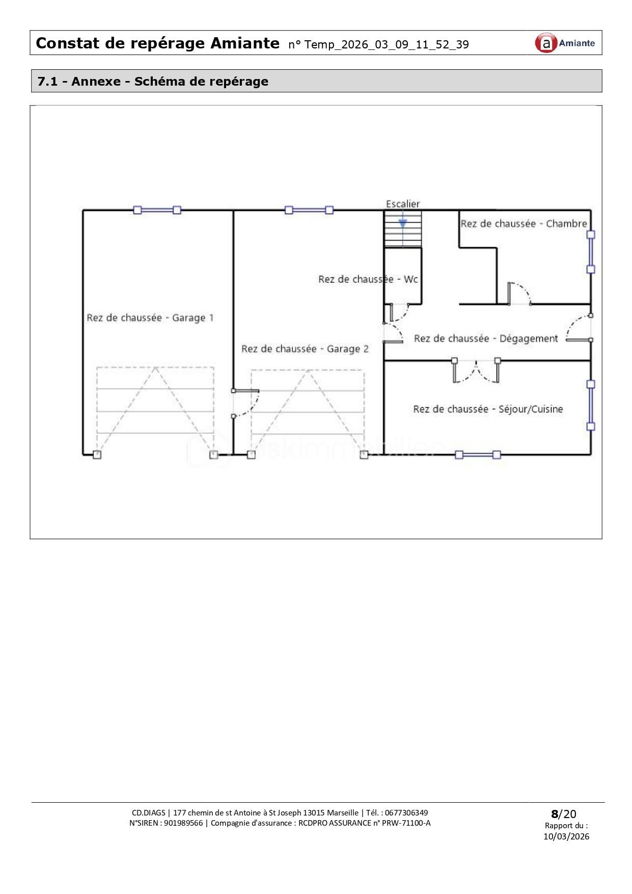
Au rez-de-chaussée, vous découvrirez un appartement indépendant d’environ 55 m², comprenant un séjour climatisé de 27 m² ouvrant directement sur le jardin, idéal pour profiter de l’extérieur en toute tranquillité. Une chambre de 12 m² avec salle d’eau, exposée Est, complète cet espace nuit, ainsi qu’une buanderie et un WC indépendant.
À l’étage, l’habitation principale est accessible par un escalier menant à un vaste balcon sans vis-à-vis, parfait pour vos moments de détente. L’entrée dessert à gauche un salon climatisé de 28 m², et à droite un coin cuisine fonctionnel. Un couloir également climatisé distribue une salle d’eau, un WC indépendant en bout de couloir, ainsi que deux chambres de 12 m², bénéficiant d’expositions Est et Ouest.
Les atouts supplémentaires : deux grands garages de 27 m² et 33 m² équipés de portes sectionnelles et de fosses pour l’entretien automobile, pouvant chacun accueillir jusqu’à deux véhicules. La maison est dotée de fenêtres en PVC double vitrage et de volets roulants électriques. Aucun signe de fissure, témoignant d’une construction de qualité.
Un bien rare, idéal pour une famille ou un projet avec rendement locatif.
Cette annonce référence 326083 vous est présentée par votre agent commercial BSK Immobilier CYRIL GIRIVETTO (EI) immatriculé au RSAC de NIMES (30000) sous le numéro 88483907700010.
Prix du bien : 315 000,00 €
Les honoraires d'agence sont à la charge du vendeur.
A propos des performances énergétiques :
Date de réalisation du diagnostic énergétique : 09/03/2026
Score DPE : 165 kWhEP/m²/an
Score GES : 6 kgepCO2/m²/an
Montant estimé des dépenses annuelles d'énergie pour un usage standard : entre 2020.00 € et 2810.00 € par an. Prix moyens des énergies indexés sur l'année 2023 (abonnements compris).
Les informations sur les risques auxquels ce bien est exposé sont disponibles sur le site Géorisques : www.georisques.gouv.fr