ALINE VOLPETTI
Appeler Email
Retour
Maison de 126,47 m² - 1.png

Maison de 126,47 m² à Bois-Le-Roi

399 000 €
77590 Bois-Le-Roi
Ref. 306471

Située dans un environnement paisible à proximité de Melun et Fontainebleau à BOIS LE ROI, à 1h de Gare de Lyon en train, cette spacieuse maison familiale de 174m² au sol offre un cadre de vie idéal entre nature, confort et commodités.

Dès l’entrée, vous serez séduit par les volumes généreux et la luminosité de la pièce de vie. Le séjour salle à manger avec cheminée invite à des moments conviviaux en famille, tandis que la cuisine ouverte permet de partager la vie du foyer au quotidien.
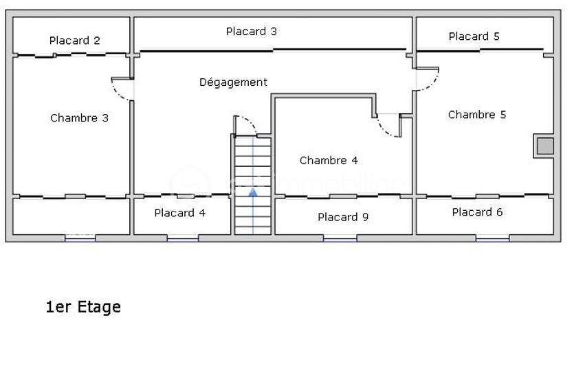
Le rez-de-chaussée comprend également une salle d’eau, un WC indépendant et trois chambres, parfaites pour accueillir une grande famille ou un espace bureau.

À l’étage, un palier avec rangements dessert trois chambres supplémentaires, idéales pour les enfants ou pour recevoir.

Un garage attenant, une terrasse bien exposée, un jardin sans vis-à-vis et un potager complètent cet ensemble. L’extérieur offre un véritable havre de paix, propice à la détente et aux repas d’été.

Quelques travaux de rénovation permettront de moderniser l’ensemble et de créer une maison à votre image.

🌳 Les atouts de la situation :
- À proximité immédiate de Melun et Fontainebleau
- Commerces, écoles et services accessibles en quelques minutes
- Accès facile à Paris (transports, transilien ligne R, A5)
- Environnement verdoyant : forêts, bois, châteaux et sentiers de promenade à deux pas
- Loisirs variés : randonnées, équitation, escalade, golf, marchés, activités nautiques sur la Seine, musées et patrimoine historique

Cette maison est une belle opportunité pour une famille cherchant à s’installer dans un cadre de vie paisible, spacieux et proche de tout.

✨ Un lieu à fort potentiel, à découvrir sans tarder !

*******Visite sur RDV. Le professionnel de l’immobilier est soumis à une obligation d’identification et de vérification de l’identité de son client. C’est l’article 561-1 du COMOFI (Code Monétaire et Financier) qui met en place cette obligation.******

****Vente sous réserve de vérification du financement de l'acquéreur ****
Cette annonce référence 306471 vous est présentée par votre agent commercial BSK Immobilier ALINE VOLPETTI (EI) immatriculé au RSAC de MEAUX (77100) sous le numéro 52107276900024.

Prix du bien : 399 000,00 €
Les honoraires d'agence sont à la charge du vendeur.

A propos des performances énergétiques :
Date de réalisation du diagnostic énergétique : 29/09/2025
Score DPE : 243 kWhEP/m²/an
Score GES : 7 kgepCO2/m²/an
Montant estimé des dépenses annuelles d'énergie pour un usage standard : entre 2060.00 € et 2820.00 € par an. Prix moyens des énergies indexés sur l'année 2021 (abonnements compris).

Les informations sur les risques auxquels ce bien est exposé sont disponibles sur le site Géorisques : www.georisques.gouv.fr


  • 7 pièces
  • 126,47 m²
  • Exposition Est
  • 5 chambres
  • Garage
  • Parking
  • Terrasse
  • Calme
  • De plain-pied

243 kWhEP/m².an
D
7 kgepCO2/m².an
B

Prix : 399 000 €


  • Année de construction : 1985
  • Transport / Ligne
  • Transport / Station
  • Cheminée
Maison de 126,47 m² - 2.png Maison de 126,47 m² - 6.png
Maison de 126,47 m² - 1.png
ALINE VOLPETTI
ALINE VOLPETTI
Val d'Europe et alentours / Paris centre
18 biens en vente

Autres biens qui pourraient vous plaîre

  • BRICE LEIBER - leiber_brice
    77590 Bois-Le-Roi
    • 12 pièces
    • 261 m²
    • 6 chambres
    • 1 160 m² de terrain
  • 77590 Bois-Le-Roi
    • 4 pièces
    • 179 m²
    • 3 chambres
    • 1 550 m² de terrain
  • QUENTIN RIGAIL - Dauphin (63)
    77590 Bois-Le-Roi
    • 5 pièces
    • 105 m²
    • 4 chambres
    • 553 m² de terrain
  • YOHAN SAUSSIER - 231228_photo_en_situation_professionnelle_0
    77590 Bois-Le-Roi
    • 4 pièces
    • 180 m²
    • 3 chambres
    • 1 551 m² de terrain