LUDOVIC MOREL
Appeler Email

Maison de 100 m² à Bondy

355 000 €
93140 Bondy
Ref. 308241

EXCLUSIVITÉ maison avec beaucoup de potentiel

Située à 5 min à pied du groupe scolaire privé de l’Assomption, ce pavillon édifié sur sous-sol en rez-de-jardin en 1940 de 100m² habitable, 156m² utiles, offre un fort potentiel d'évolution sur un terrain de 340m². Appartement possible en rez-de-jardin avec entrée indépendante.

Agencement
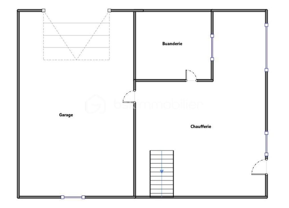
De plain-pied - (hauteur sous plafond 2,20m)
• Garage (24m²)
• Buanderie
• Atelier (23m²)
• Cave
• Terrasse couverte (13m²)

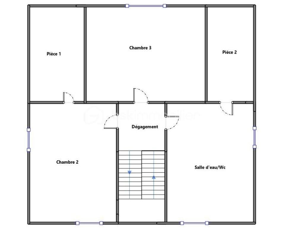
1er Etage - (hauteur sous plafond 2,80m)
• Entrée
• Séjour double (24m²) donnant sur la terrasse (16m²) exposée OUEST
• Cuisine (11m²) donnant sur la terrasse également
• Chambre (12,60m²)
• WC

Combles
• Palier
• 2 chambres (8/15m² chacune avec un grenier de 7m²)
• Salle d’eau avec WC (8m²)

Jardin arrière SUD OUEST de 200m²

Prestations
• Fenêtres en double vitrage PVC
• Volets roulants électrique
• Chauffage gaz avec radiateur en FONTE
• Jardin sans vis-à-vis, rue calme

Localisation
• Gare du Nord à 40 min
• Toutes commodités à pied en 5 min ! (écoles, commerces, médecins, transports)

Parfait pour famille, profession libérale ou investisseur, ce bien combine emplacement, confort et potentiel.

Une visite s'impose !

Ludovic MOREL
Votre Partenaire Immobilier
Depuis 2010

+++
Cette annonce référence 308241 vous est présentée par votre agent commercial BSK Immobilier LUDOVIC MOREL (EI) immatriculé au RSAC de BOBIGNY (93000) sous le numéro 91259345600029.

Prix du bien : 355 000,00 €
Les honoraires d'agence sont à la charge du vendeur.

A propos des performances énergétiques :
Date de réalisation du diagnostic énergétique : 06/10/2025
Score DPE : 414 kWhEP/m²/an
Score GES : 91 kgepCO2/m²/an
Montant estimé des dépenses annuelles d'énergie pour un usage standard : entre 3210.00 € et 4390.00 € par an. Prix moyens des énergies indexés sur l'année 2021 (abonnements compris).

Les informations sur les risques auxquels ce bien est exposé sont disponibles sur le site Géorisques : www.georisques.gouv.fr


  • 5 pièces
  • 100 m²
  • Exposition Sud-Ouest
  • 3 chambres
  • Parking
  • Terrasse
  • Calme

414 kWhEP/m².an
F
91 kgepCO2/m².an
F

Prix : 355 000 €


Accédez à la visite

  • Année de construction : 1940
Maison de 100 m² - 2.jpg Maison de 100 m² - 3.jpg
Maison de 100 m² - 1.jpg
LUDOVIC MOREL
LUDOVIC MOREL
23 biens en vente

Autres biens qui pourraient vous plaîre

  • CYRILLE RENÉ - 240702031137_photo_en_situation_professionnelle
    93140 Bondy
    • 7 pièces
    • 160 m²
    • 4 chambres
    • 294 m² de terrain
  • MADJID AOUIMEUR - 231121_photo_en_situation_professionnelle
    93140 Bondy
    • 8 pièces
    • 151 m²
    • 5 chambres
    • 219 m² de terrain
  • ELODIE JEANNE - 240425121514_photo_en_situation_professionnelle
    93140 Bondy
    • 3 pièces
    • 65 m²
  • LUDOVIC MOREL - 250717081059_photo_en_situation_professionnelle
    93140 Bondy
    • 2 pièces
    • 43,37 m²
    • 1 chambre