LAURENT SCHAFER
Appeler Email

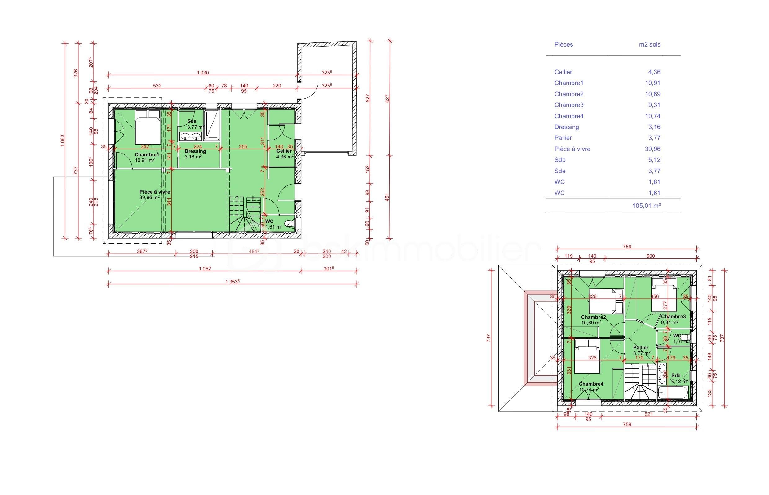
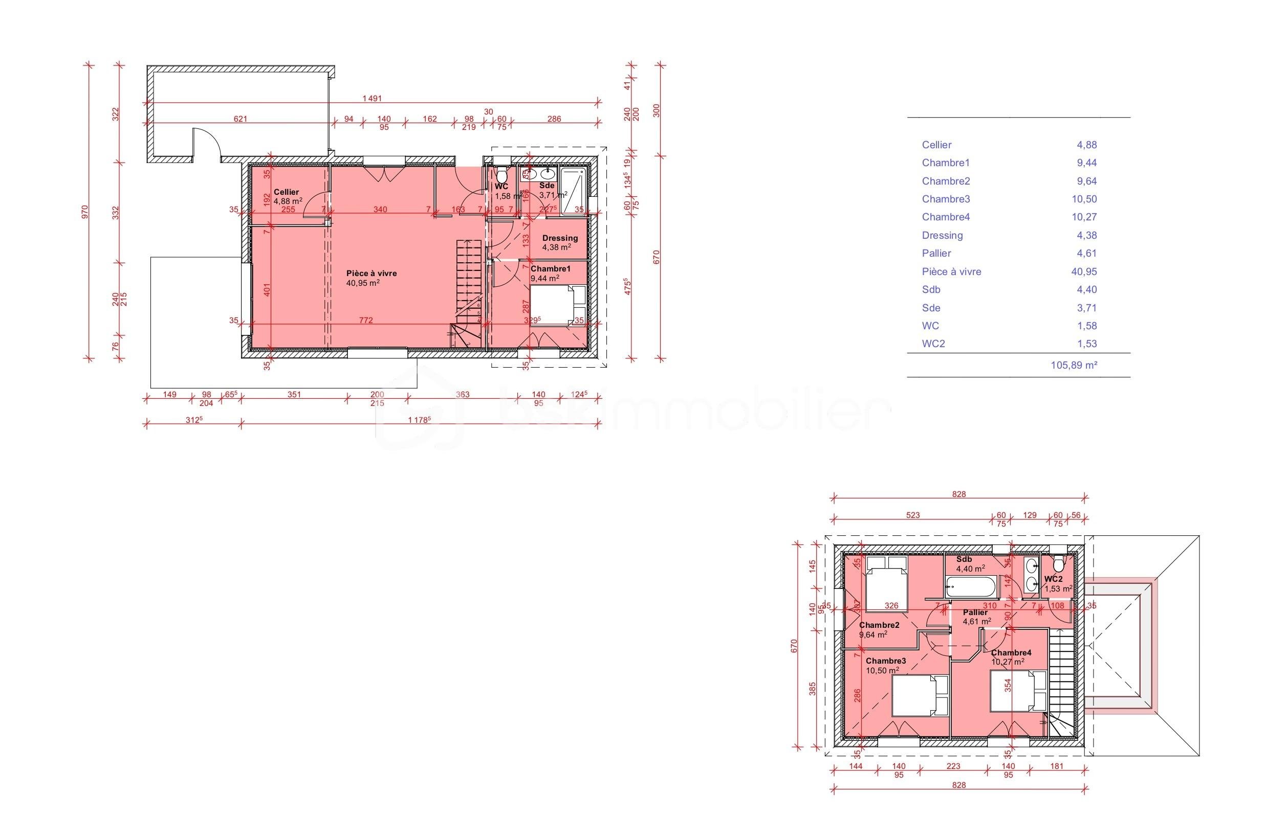
Maison de 105 m² à Bordes

320 000 €
64510 Bordes
Ref. 308260

Découvrez cette maison individuelle neuve de 105 m², actuellement en cours de construction, située dans un environnement calme et résidentiel à Bordes, à deux pas de l’entreprise Safran.

Édifiée sur un terrain de plus de 400 m², en bout d’impasse, cette maison moderne et lumineuse répondra aux normes énergétiques RE2020, vous garantissant confort et économies d’énergie au quotidien.

🏠 Composition :

Rez-de-chaussée :
Spacieuse pièce de vie exposée plein sud avec grandes baies vitrées
Cuisine ouverte sur le séjour
Suite parentale avec chambre, dressing et salle d’eau privative
Garage attenant

Étage :
Trois chambres confortables
Salle de bains familiale avec baignoire.

🌿 Les atouts :
Construction neuve et contemporaine
Exposition idéale Sud
Quartier calme et recherché
Proximité immédiate de SAFRAN et des commodités
Vue Pyrénées

Livraison prévue : début 2026

Idéale pour une famille souhaitant s’installer dans un cadre paisible tout en restant proche de Pau et des bassins d’emploi environnants.

📞 Contactez-moi dès maintenant pour obtenir le plan, le descriptif complet du projet et réserver votre future maison !
Cette annonce référence 308260 vous est présentée par votre agent commercial BSK Immobilier LAURENT SCHAFER (EI) immatriculé au RSAC de PAU (64000) sous le numéro 89365200800028.

Prix du bien : 320 000,00 €
Les honoraires d'agence sont à la charge du vendeur.

Non soumis au DPE.

Les informations sur les risques auxquels ce bien est exposé sont disponibles sur le site Géorisques : www.georisques.gouv.fr


  • 5 pièces
  • 105 m²
  • 4 chambres

Prix : 320 000 €


Maison de 105 m² - 20251022_112325.jpg Maison de 105 m² - dji_fly_20251022_153540_85_1761140148987_photo_optimized.jpg
Maison de 105 m² - dji_fly_20251022_153442_83_1761140158415_photo_optimized.jpg
LAURENT SCHAFER
LAURENT SCHAFER
Pau et environs
22 biens en vente

Autres biens qui pourraient vous plaîre

  • DAVID GUILLOUET - guillouet_david
    64510 Bordes
    • 7 pièces
    • 165 m²
    • 6 chambres
    • 2 200 m² de terrain
  • STEPHANE FRANCIN - francin_stephane
    64510 Bordes
    • 6 pièces
    • 148 m²
    • 4 chambres
  • FABIEN LACRABERE - 240311015259_photo_en_situation_professionnelle
    64510 Bordes
    • 6 pièces
    • 175,24 m²
    • 3 chambres
  • RICHARD LACASTA - 240516122626_photo_en_situation_professionnelle
    64510 Assat
    • 5 pièces
    • 131 m²
    • 3 chambres
    • 652 m² de terrain