MÉLISA MARTIN-SISTERON
Appeler Email

Maison en pierre de 256 m² à Brouzet-Les-Quissac

460 000 €
30260 Brouzet-Les-Quissac
Ref. 256737

Une demeure au charme intemporel, idéale pour donner vie à un projet de maison d’hôtes

Au cœur de la campagne paisible de Brouzet-les-Quissac, se cache une bâtisse en pierre datant de 1770, témoin d’une histoire riche et d’un art de vivre authentique. Ancien relais de diligence, elle a traversé les siècles pour devenir aujourd’hui une maison familiale chaleureuse… mais son potentiel va bien au-delà.

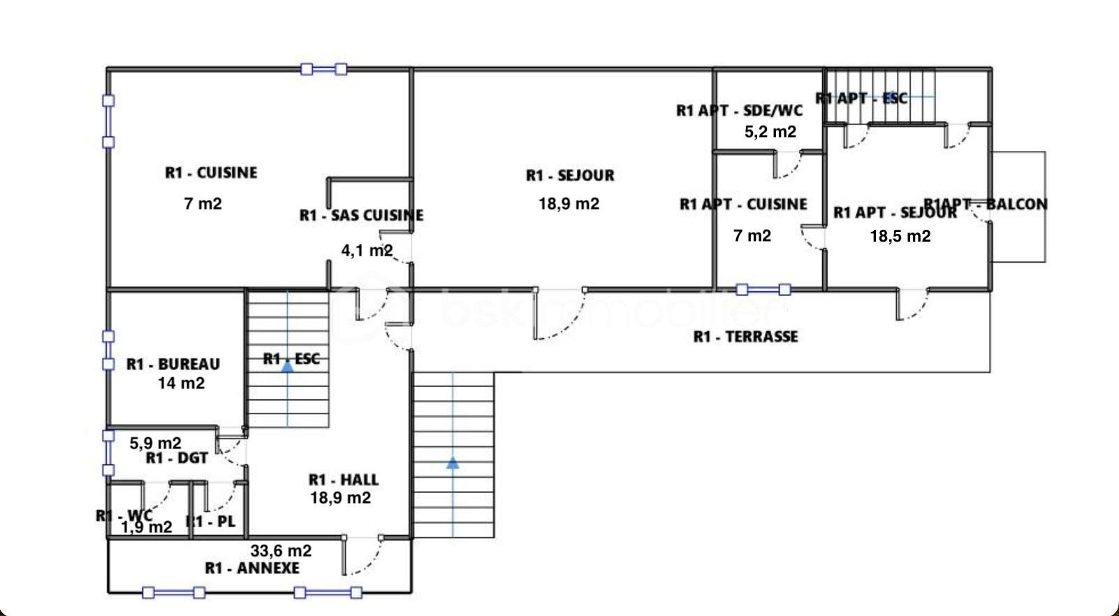
Avec ses 256 m² habitables répartis sur trois niveaux et ses volumes généreux, cette demeure ne demande qu’à être réinventée. Maison d’hôtes, gîtes de charme, lieu de réception… tout est possible.
Actuellement composée de plusieurs chambres spacieuses et d’espaces supplémentaires à rénover, elle offre déjà une base solide et habitable, avec la possibilité d’imaginer la création d’un ensemble de 7 chambres (voire davantage avec les dépendances). Quelques travaux seront nécessaires pour exploiter pleinement son potentiel, mais la projection est évidente.

Le petit plus qui change tout : un appartement T2 indépendant, idéal pour loger vos hôtes, accueillir de la famille ou générer un revenu locatif immédiat.

À l’extérieur, une terrasse ensoleillée invite à profiter de l’environnement serein, sans vis-à-vis. À l’avant de la maison, un vaste espace peut être sécurisé pour créer un grand parking, un véritable atout pour accueillir confortablement une clientèle.

Mais la véritable surprise se trouve dans les dépendances :
- Un hangar en pierre de plus de 100 m² au sol, à réhabiliter selon vos envies (salle de réception, chambres supplémentaires, espace bien-être…) ou simplement utilisé tel quel pour stationner plusieurs véhicules.
- Une dépendance attenante qui peut devenir un atelier, une remise ou un espace dédié à vos futurs hôtes.

Ici, tout est réuni pour donner vie à un projet ambitieux : créer une maison d’hôtes de charme avec une dizaine de chambres et faire de ce lieu chargé d’histoire un véritable bijou touristique.

Située à la campagne mais proche des commodités, cette propriété combine calme absolu, authenticité et accessibilité.

Si tu rêves de bâtir un lieu qui raconte une histoire et accueille des voyageurs en quête d’authenticité, cette maison est une page blanche prête à être écrite.
Cette annonce référence 256737 vous est présentée par votre agent commercial BSK Immobilier MÉLISA MARTIN-SISTERON (EI) immatriculé au RSAC de MONTPELLIER (34000) sous le numéro 92032280700016.

Prix du bien : 460 000,00 €
Prix du bien hors honoraires : 445 000,00 €
Honoraires TTC : 3,37 %
Les honoraires d'agence sont à la charge de l'acquéreur.

A propos des performances énergétiques :
Date de réalisation du diagnostic énergétique : 09/09/2024
Score DPE : 179 kWhEP/m²/an
Score GES : 6 kgepCO2/m²/an
Montant estimé des dépenses annuelles d'énergie pour un usage standard : entre 3450.00 € et 4720.00 € par an. Prix moyens des énergies indexés sur l'année 2023 (abonnements compris).

Les informations sur les risques auxquels ce bien est exposé sont disponibles sur le site Géorisques : www.georisques.gouv.fr


  • 9 pièces
  • 256 m²
  • Exposition Sud
  • 5 chambres
  • Parking
  • Terrasse
  • Calme
  • Situé en campagne

179 kWhEP/m².an
C
6 kgepCO2/m².an
B

Prix : 460 000 €


Accédez à la visite

  • Cheminée
Maison en pierre de 256 m² - vivi_00026.jpg Maison en pierre de 256 m² - vivi_00034.jpg
Maison en pierre de 256 m² - Mélisa.png
MÉLISA MARTIN-SISTERON
MÉLISA MARTIN-SISTERON
De Montpellier à Nîmes
4 biens en vente

Autres biens qui pourraient vous plaîre

  • ÉMILIE VILLEMIN - VILLEMIN Emilie (2)
    30260 Quissac
    • 6 pièces
    • 180 m²
    • 5 chambres
  • SEBASTIEN CABANON - 241206054652_photo_en_situation_professionnelle
    30260 Quissac
    • 5 pièces
    • 121,64 m²
    • 3 chambres
    • 550 m² de terrain
  • LESLIE LE CLAINCHE - 231208_photo_en_situation_professionnelle_3_0
    30610 Sauve
    • 8 pièces
    • 216 m²
    • 5 chambres
  • JULIE PEZIER - 240228023412_photo_en_situation_professionnelle
    30610 Sauve
    • 4 899 m²