BSK Immobilier
BSK Immobilier
BSK Immobilier
CEDRIC MUSSARD
Appeler Email
Retour
cuisine salon.jpeg

Appartement de 39,36 m² à Bry-Sur-Marne

225 000 €
94360 Bry-Sur-Marne
Ref. 319073

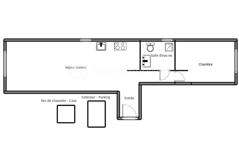
Situé au troisième et dernier étage d’une petite copropriété bien entretenue aux faibles charges, cet appartement de type F2 offre un cadre de vie agréable et fonctionnel.

Il se compose d’une entrée avec une cuisine aménagée ouverte sur le séjour, formant un espace de vie convivial et lumineux. Grâce à son exposition Est/Ouest traversante, l’appartement bénéficie d’une belle luminosité tout au long de la journée.

L’appartement dispose également d’une chambre, ainsi que d’une salle d’eau avec WC.

Une cave et une place de stationnement complètent ce bien et apportent un confort appréciable au quotidien.

Idéal pour un premier achat ou un investissement, cet appartement représente une belle opportunité sur le secteur recherché de Bry-sur-Marne, à proximité immédiate des crèches, écoles, bus et du RER A.

Pour toute information complémentaire ou pour organiser une visite, n’hésitez pas à me contacter.
Cette annonce référence 319073 vous est présentée par votre agent commercial BSK Immobilier CEDRIC MUSSARD (EI) immatriculé au RSAC de SENS (89100) sous le numéro 49098646000031.

Prix du bien : 225 000,00 €
Les honoraires d'agence sont à la charge du vendeur.

A propos des performances énergétiques :
Date de réalisation du diagnostic énergétique : 19/01/2026
Score DPE : 200 kWhEP/m²/an
Score GES : 7 kgepCO2/m²/an
Montant estimé des dépenses annuelles d'énergie pour un usage standard : entre 790.00 € et 1100.00 € par an. Prix moyens des énergies indexés sur l'année 2023 (abonnements compris).

Les informations sur les risques auxquels ce bien est exposé sont disponibles sur le site Géorisques : www.georisques.gouv.fr


  • 2 pièces
  • 39,36 m²
  • 1 chambre
  • Parking
  • Dernier étage

200 kWhEP/m².an
D
7 kgepCO2/m².an
B

Prix : 225 000 €


  • Année de construction : 1997
cuisine.jpeg salon.jpeg
cuisine salon.jpeg
CEDRIC MUSSARD
CEDRIC MUSSARD
4 biens en vente

Autres biens qui pourraient vous plaîre

  • JENNIFER JAM - iR62KKoQLVG6N0GqXfypkd
    94360 Bry-Sur-Marne
    • 3 pièces
    • 56,75 m²
    • 2 chambres
  • WILLIAM COULONGEAT - coulongeat_william
    94360 Bry-Sur-Marne
    • 4 pièces
    • 68 m²
    • 2 chambres
  • 94360 Bry-Sur-Marne
    • 6 pièces
    • 185 m²
    • 4 chambres
  • LYDIA CHALAL - 240110115555_photo_en_situation_professionnelle
    94170 Le Perreux-Sur-Marne
    • 7 pièces
    • 160 m²
    • 322 m² de terrain