CYRILLE MADAVANE
Appeler Email
Retour
Maison de 117 m² - Photo 4 (2).jpg

Maison de 117 m² à Chelles

345 000 €
77500 Chelles
Ref. 306422

Opportunité!
A Chelles dans un secteur pavillonnaire au calme (Coudreaux, avenue des sciences), maison familiale spacieuse et à l'agencement idéal avec de nombreux travaux récents et un DPE excellent !

La maison est distribuée comme suit : un jardinet à l'avant permettant le stationnement de deux véhicules, un box, une entrée desservant un spacieux et lumineux (exp. double Est / Ouest) séjour avec cuisine ouverte (45m2), une chambre et des WC séparés. Depuis le séjour accès direct à un grand jardin sans vis à vis avec une dépendance.
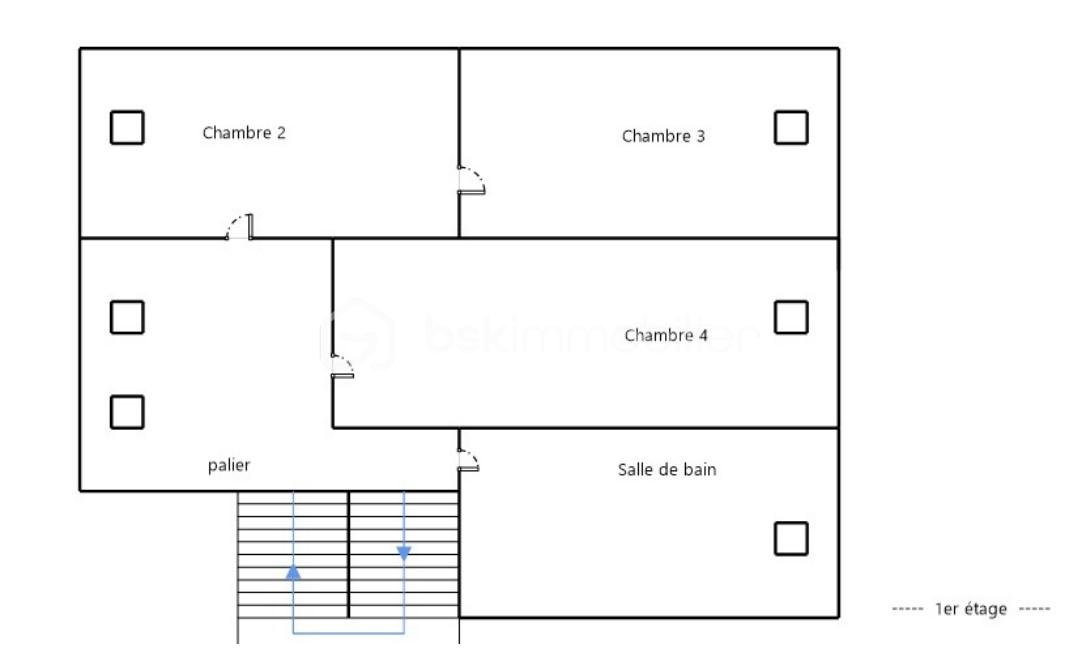
À l'étage, trois chambres spacieuses dont une suite de plus de 19m2, une salle de bain avec douche et baignoire et WC.
Pratique, des rangements sous pente astucieux pour améliorer le confort.

Points forts:
DPE excellent C (chaudière à condensation récente, chauffe eau thermodynamique, isolation de la toiture, VMC récente...)
Ravalement récent
Agencement et volumes des pièces de vie

Taxe foncière : 1285 euros

Remarque : voir photo du plan croquis, chambre 2 et 3 en enfilade.

Une visite donnera sans doute lieu à un coup de coeur!
Cette annonce référence 306422 vous est présentée par votre agent commercial BSK Immobilier CYRILLE MADAVANE (EI) immatriculé au RSAC de NANTEUIL-LES-MEAUX (77100) sous le numéro 88174449400033.

Prix du bien : 345 000,00 €
Les honoraires d'agence sont à la charge du vendeur.

A propos des performances énergétiques :
Date de réalisation du diagnostic énergétique : 18/06/2025
Score DPE : 106 kWhEP/m²/an
Score GES : 12 kgepCO2/m²/an
Montant estimé des dépenses annuelles d'énergie pour un usage standard : entre 1070.00 € et 1500.00 € par an. Prix moyens des énergies indexés sur l'année 2021 (abonnements compris).

Les informations sur les risques auxquels ce bien est exposé sont disponibles sur le site Géorisques : www.georisques.gouv.fr


  • 5 pièces
  • 117 m²
  • 4 chambres
  • Parking

106 kWhEP/m².an
C
12 kgepCO2/m².an
C

Prix : 345 000 €


  • Année de construction : 1975
Maison de 117 m² - 1000093144.jpg Maison de 117 m² - 1000093140.jpg
Maison de 117 m² - Photo 4 (2).jpg
CYRILLE MADAVANE
CYRILLE MADAVANE
Paris - Banlieue Est
11 biens en vente

Autres biens qui pourraient vous plaîre

  • FLORIAN ROGER - 250619045550_photo_en_situation_professionnelle
    77500 Chelles
    • 3 pièces
    • 55 m²
    • 2 chambres
  • LUDOVIC MOREL - 250717081059_photo_en_situation_professionnelle
    77500 Chelles
    • 3 pièces
    • 50 m²
    • 2 chambres
    • 500 m² de terrain
  • MELANIE SIMOES - simoes_melanie
    77500 Chelles
    • 4 pièces
    • 85,86 m²
    • 3 chambres
  • LUDOVIC MOREL - 250717081059_photo_en_situation_professionnelle
    77500 Chelles
    • 5 pièces
    • 134 m²
    • 3 chambres
    • 630 m² de terrain