SYLVAIN SCHRAMM
Appeler Email
Retour
Terrain de 650 m² - ChatGPT Image 31 janv. 2026, 19_33_43.png

Terrain de 650 m² à Colmar

136 400 €
68000 Colmar
Ref. 316148

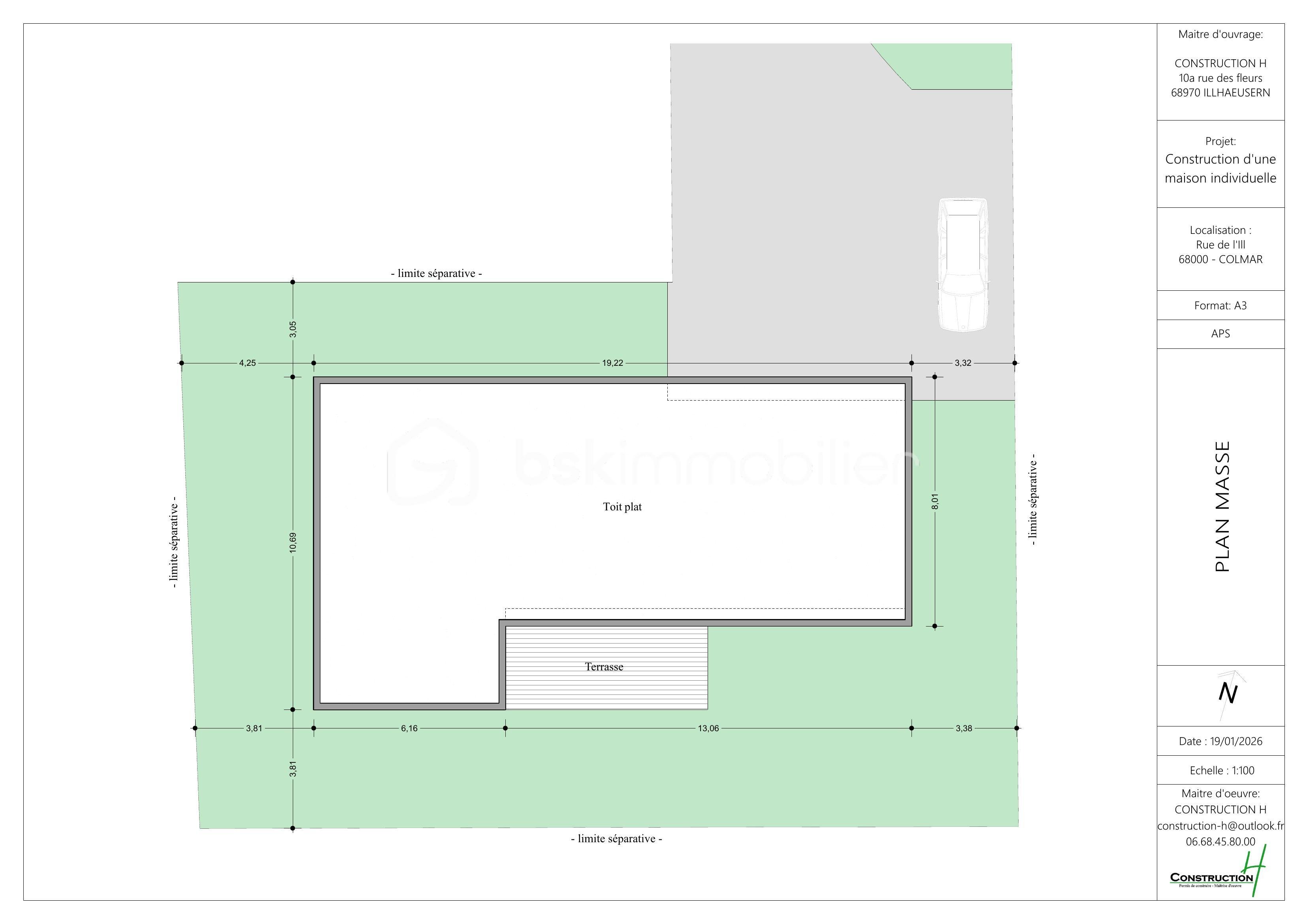
À proximité du centre commercial Leclerc à Colmar, découvrez ce terrain constructible hors lotissement, situé dans un environnement calme et recherché.

D’une superficie de 6,50 ares, il est libre d’architecte, offrant une totale liberté pour votre projet de construction.

✨ Possibilité d’acquérir en supplément 3,64 ares constructibles, portant la surface totale à plus de 10 ares, pour un prix additionnel de 77 000 €.

📍 Emplacement idéal : proche des commodités tout en bénéficiant d’un cadre paisible.

⚠️ À savoir : le PLU impose une construction de type maison plain-pied (voir exemple de projet en photo).

Les informations sur les risques auxquels ce bien est exposé sont disponibles sur le site Géorisques : www.georisques.gouv.fr
Cette annonce référence 316148 vous est présentée par votre agent commercial BSK Immobilier SYLVAIN SCHRAMM (EI) immatriculé au RSAC de COLMAR (68000) sous le numéro 42192329300029.

Prix du bien : 136 400,00 €
Les honoraires d'agence sont à la charge du vendeur.

Non soumis au DPE.

Les informations sur les risques auxquels ce bien est exposé sont disponibles sur le site Géorisques : www.georisques.gouv.fr


  • 650 m²
  • Calme

NS
NS

Prix : 136 400 €


  • Constructible
Terrain de 650 m² - Image1.png Terrain de 650 m² - Image2.png
Terrain de 650 m² - ChatGPT Image 31 janv. 2026, 19_33_43.png
SYLVAIN SCHRAMM
SYLVAIN SCHRAMM
12 biens en vente

Autres biens qui pourraient vous plaîre

  • 68000 Colmar
    • 3 pièces
    • 67,02 m²
    • 2 chambres
  • SYLVAIN SCHRAMM - Zzy6TURYZGL7jK75676PFj
    68000 Colmar
    • 50 pièces
    • 1 383,22 m²
  • JEAN-LUC SEISSER - Dauphin - 2024-04-09T161515.122
    68000 Colmar
    • 5 pièces
    • 93,21 m²
    • 3 chambres
  • 68320 Jebsheim
    • 5 pièces
    • 110 m²
    • 3 chambres
    • 356 m² de terrain