SANDRINE CALMET
Appeler Email

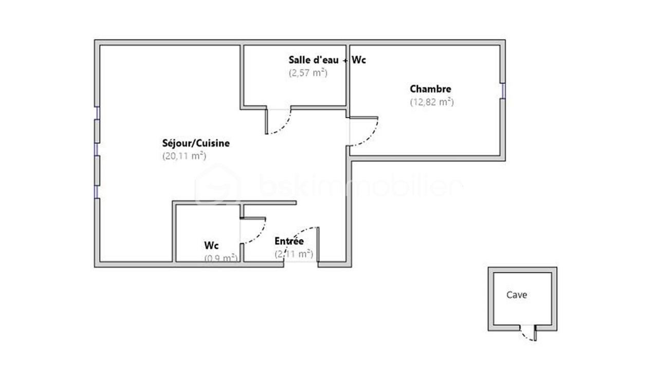
Appartement de 39 m² à Colombes

243 000 €
92700 Colombes
Ref. 303911

Appartement prêt à vivre, idéal pied à terre ou investissement locatif :

Appartement entièrement refait à neuf en 2020 avec isolation :
✅ Entrée / Séjour avec cuisine équipée
✅ Chambre avec placard et bureau
✅ Salle de douche
✅ Wc séparé
✅ Cave

Vous apprécierez :
- Double vitrage
- Climatisation réversible
- Vendu avec les meubles
- Cave

DPE : F dû principalement au chauffage collectif au fuel - Participation du vendeur aux frais de changement de chaudière

- Petite copropriété: 11 appartements - Cage escalier rénovée
- 3ème étage sans ascenseur
- Secteur calme: rue des écoles
- Taxe Foncière : 400 euros / an
- Charges de copropriété : 180 euros / mois environ (incluant le chauffage)
- Commodités : Moins de 10 min à pieds de la gare, du centre ville et des commerces, marché à 5 min à pieds

Découvrez le charme de l'ancien combiné au confort du neuf.
➡️ Contactez-nous dès maintenant pour organiser une visite.

*************
Cette annonce référence 303911 vous est présentée par votre agent commercial BSK Immobilier SANDRINE CALMET (EI) immatriculé au RSAC de NANTERRE (92000) sous le numéro 94933249800011.

Prix du bien : 243 000,00 €
Les honoraires d'agence sont à la charge du vendeur.

A propos de la copropriété :
Pas de procédure en cours.
Nombre de lots : 11
Charges prévisionnelles annuelles : 2 260,00 €

A propos des performances énergétiques :
Date de réalisation du diagnostic énergétique : 21/07/2025
Score DPE : 373 kWhEP/m²/an
Score GES : 54 kgepCO2/m²/an
Montant estimé des dépenses annuelles d'énergie pour un usage standard : entre 1440.00 € et 2010.00 € par an. Prix moyens des énergies indexés sur l'année 2021 (abonnements compris).

Les informations sur les risques auxquels ce bien est exposé sont disponibles sur le site Géorisques : www.georisques.gouv.fr


  • 2 pièces
  • 39 m²
  • Exposition Est-Ouest
  • 1 chambre
  • Calme
  • Refait à neuf

373 kWhEP/m².an
F
54 kgepCO2/m².an
D

Prix : 243 000 €
Quote-part : 2 260 €


Accédez à la visite

  • Année de construction : 1930
  • Transport / Ligne
  • Transport / Station
  • Climatisation
Appartement de 39 m² - IMG-20250706-WA0025.jpg Appartement de 39 m² - IMG-20250721-WA0044.jpg
Appartement de 39 m² - IMG-20250721-WA0062.jpg
SANDRINE CALMET
SANDRINE CALMET
Conseiller en immobilier et architecte d'intérieur
2 biens en vente

Autres biens qui pourraient vous plaîre

  • 92700 Colombes
    • 1 pièce
    • 20 m²
    • 1 chambre
  • MARINE ANTOINE - 55Bs5l1U4AYxTEm1Z2iWzh
    92700 Colombes
    • 1 pièce
    • 14 m²
  • HALLA SANAA ABDOOL RASSOOL - 0wP47GaztDnXffEKj03Z6W
    92700 Colombes
    • 2 pièces
    • 36 m²
    • 1 chambre
  • SAMIRA KAID - B8gmoYGv8Wu5A1IHU70eZh
    92700 Colombes
    • 5 pièces
    • 92 m²
    • 4 chambres