Découvrez la Villa « Les Hirondelles », une magnifique maison en meulière du début du XXème siècle, nichée dans le quartier résidentiel et recherché de Bel Air.
Profitez d'un faible vis-à-vis et d'une grande parcelle d'angle qui s'ouvre sur une petite place arborée, offrant un cadre de vie paisible et privilégié.
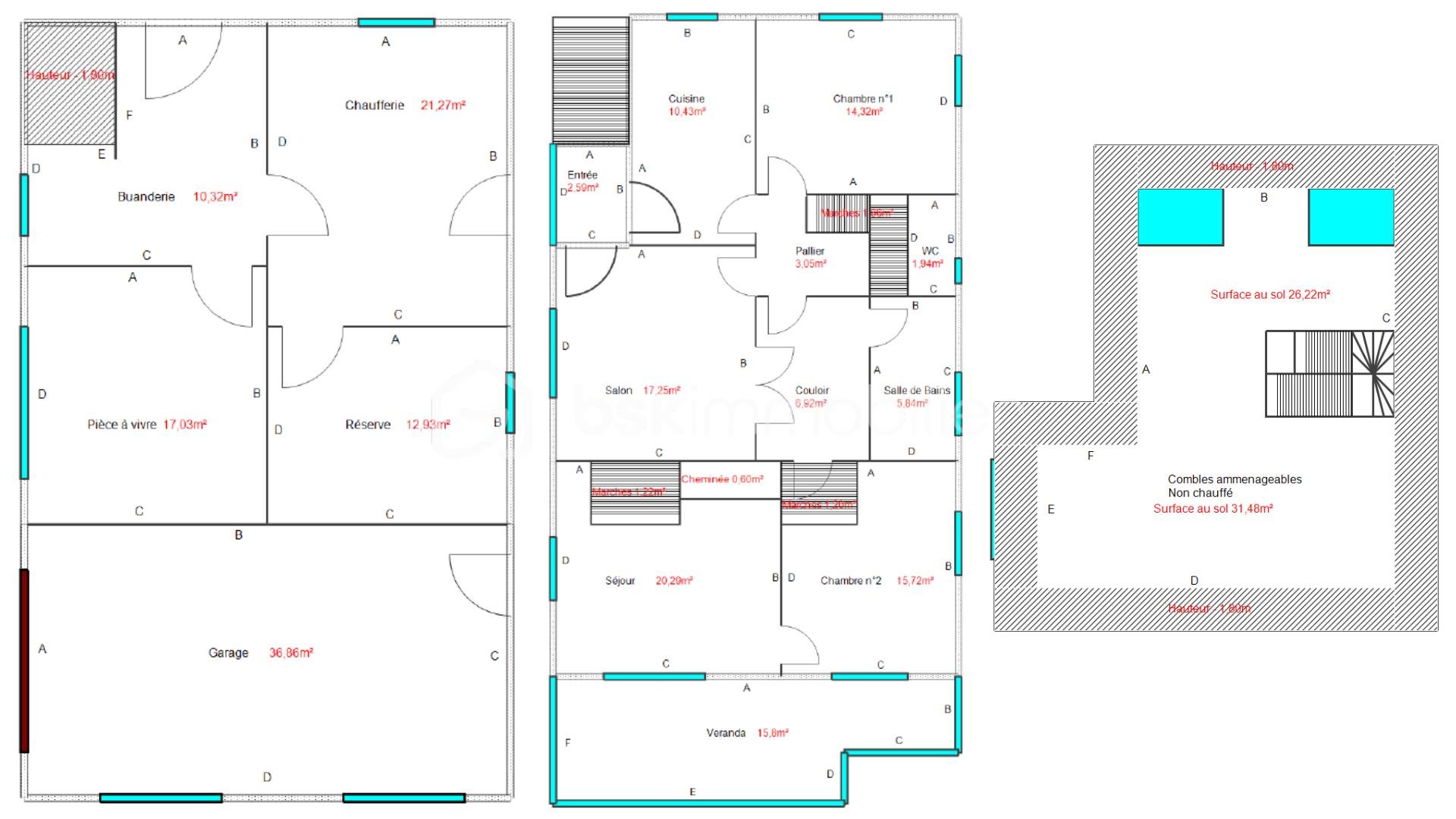
Cette villa offre des volumes impressionnants et un cachet d'antan, répartis sur trois niveaux :
➡ Niveau Principal : L'Élégance de l'Ancien
Laissez-vous séduire par des hauteurs sous plafond généreuses (2,80/2,95 m), des pièces lumineuses et un charme préservé.
L'entrée vitrée distribue l'espace vers une cuisine avec son garde-manger d'époque et vers une vaste salle à manger.
Un salon chaleureux avec une cheminée en état de fonctionnement pour des soirées cocooning.
Deux grandes chambres, dont une avec un WC.
Une salle de bains (avec possibilité de transformer en cuisine ouverte grâce à un mur non porteur).
Accès direct depuis le salon et une chambre à une terrasse-véranda de 15 m, idéale pour vos moments de détente.
➡ Niveau Sous Combles : Un Plateau à Rêver
Un vaste plateau de 57 m (dont 29 m habitables avec une HSP >1,80 m) n'attend que votre imagination pour être divisé et aménagé selon vos envies. Bénéficiez d'une hauteur sous plafond culminant à 2,97 m, éclairé par des fenêtres à l'anglo-normande et des vélux.
➡ Rez-de-Jardin (environ 60 m) : Fonctionnalité et Accès Direct
Ce niveau offre quatre pièces pratiques, incluant un espace chaufferie et une chambre s'ouvrant directement sur le jardin par une baie vitrée. Les hauteurs sous plafond sont variables (2 m à 2,67 m).
➡ Les Plus
Garage fermé de 30 m, abri sous terrasse et dépendance (8 m2, ancien clapier).
➡ Potentiel Rare : Possibilité d’acquérir une parcelle constructible adjacente (450 m), divisible et comprenant un garage existant.
➡ Proximité et Commodités
L'emplacement de cette villa conjugue calme et accessibilité. Tout est à portée de main pour simplifier votre quotidien :
Supermarché Franprix - 0,04 km
Épicerie fine Picard - 0,65 km
Courses Carrefour Contact / Drive - 0,84 km
Loisirs / Commerces Lidl, Grand Frais, Intermarché (dans un rayon de 2 km) - 0,87 km à 1,94 km
Transports Gare RER D de Combs-la-Ville - Quincy - 1,4 km (environ 18 min à pied, Bus à proximité)
Le Coup de Cœur vous Attend ! 🗝️
Cette villa est bien plus qu'une maison : c'est une page d'histoire, un espace à personnaliser et un investissement d'avenir. Son beau jardin et son emplacement idéal vous offrent une qualité de vie incomparable.
N'attendez plus pour découvrir le charme de cette propriété unique !
Contactez-moi dès aujourd'hui pour organiser une visite et vous projeter dans votre futur chez-vous.
Cette annonce référence 305672 vous est présentée par votre agent commercial BSK Immobilier YOHANN THOMAS (EI) immatriculé au RSAC de MELUN (77000) sous le numéro 52810818600016.
Prix du bien : 390 000,00 €
Prix du bien hors honoraires : 375 000,00 €
Honoraires TTC : 4,00 %
Les honoraires d'agence sont à la charge de l'acquéreur.
Les informations sur les risques auxquels ce bien est exposé sont disponibles sur le site Géorisques : www.georisques.gouv.fr