VALERIE DELION
Appeler Email
Retour
Maison ancienne de 144 m² - 1743578807953.jpg

Maison ancienne de 144 m² à Conde-Sur-Sarthe

233 000 €
61250 Conde-Sur-Sarthe
Ref. 280865

Cette belle maison offre un cadre de vie agréable alliant espace et confort située dans un environnement paisible. Elle se trouve à proximité immédiate du centre d'Alençon et de toutes commodités.

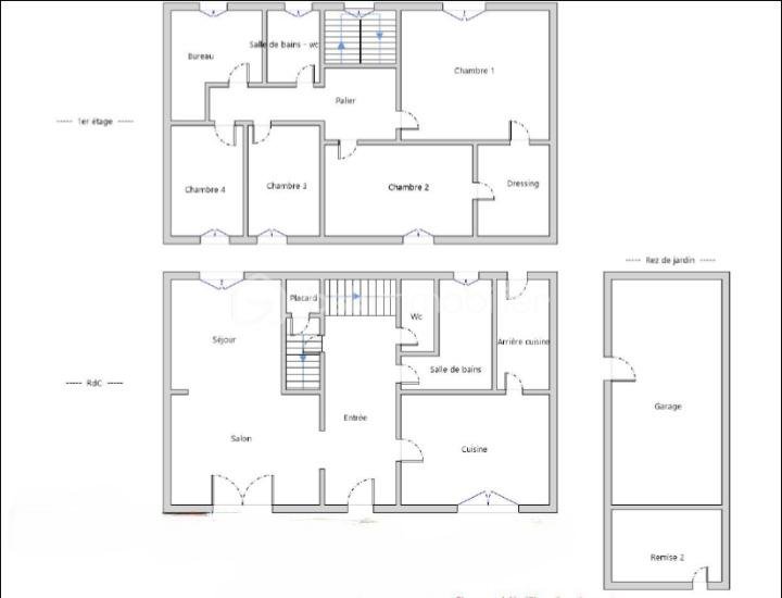
Dès l'entrée, vous serez séduit par une cuisine aménagée et équipée avec un accès à la buanderie et la chaufferie. Un salon lumineux avec son poêle à bois et son coin séjour s'ouvre sur une agréable terrasse. Le rez-de-chaussée dispose également d'une salle d'eau et de WC indépendant.

A l'étage, un palier dessert quatre chambres, dont deux bénéficient d'un dressing commun offrant un bel espace de rangement, un bureau et une salle d'eau supplémentaire avec WC complète cet étage.

Le confort est assuré par un chauffage au gaz de ville et des fenêtres en aluminium à double vitrage.

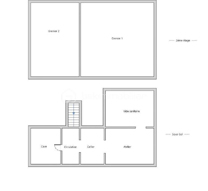
L'extérieur est tout aussi attrayant avec un jardin arboré à l'avant et à l'arrière de la maison. Le sous-sol offre un espace de stockage avec une cave voûtée, un atelier et une buanderie. Plusieurs petites dépendances ainsi qu'un garage à vélo viennent compléter ce bien. Plusieurs places de parking sont également disponible.

Cette maison pleine de charme n'attend plus que vous ! Contactez moi pour plus d'informations et organiser une visite.
Cette annonce référence 280865 vous est présentée par votre agent commercial BSK Immobilier VALERIE DELION (EI) immatriculé au RSAC de LAVAL (53000) sous le numéro 79806671800023.

Prix du bien : 233 000,00 €
Les honoraires d'agence sont à la charge du vendeur.

A propos des performances énergétiques :
Date de réalisation du diagnostic énergétique : 03/04/2025
Score DPE : 240 kWhEP/m²/an
Score GES : 39 kgepCO2/m²/an
Montant estimé des dépenses annuelles d'énergie pour un usage standard : entre 2540.00 € et 3480.00 € par an. Prix moyens des énergies indexés sur l'année 2023 (abonnements compris).

Les informations sur les risques auxquels ce bien est exposé sont disponibles sur le site Géorisques : www.georisques.gouv.fr


  • 7 pièces
  • 144 m²
  • 4 chambres
  • Terrasse
  • De plain-pied

240 kWhEP/m².an
D
39 kgepCO2/m².an
D

Prix : 233 000 €


  • Année de construction : 1949
Maison ancienne de 144 m² - IMG_20250401_162332.jpg Maison ancienne de 144 m² - IMG_20250401_162034.jpg
Maison ancienne de 144 m² - 1743578807953.jpg
VALERIE DELION
VALERIE DELION
42 biens en vente

Autres biens qui pourraient vous plaîre

  • CÉLINE VAN DE WALLE - 240428101414_photo_en_situation_professionnelle
    61000 Alencon
    • 5 pièces
    • 150 m²
    • 3 chambres
  • PAUL CARBONELL - yAMPv2Wj641cbsMp28xnJn
    61000 Alencon
    • 5 pièces
    • 97 m²
    • 4 chambres
    • 599 m² de terrain
  • JULIE LEGENTIL - 231214_photo_en_situation_professionnelle_0
    61000 Alencon
    • 6 pièces
    • 152 m²
    • 4 chambres
  • VALERIE DELION - 241112113312_photo_en_situation_professionnelle
    61000 Alencon
    • 6 pièces
    • 100 m²
    • 2 chambres
    • 253 m² de terrain