Immeuble de caractère – 400 m² – Restaurant – Centre bourg Coray
Situé au cœur de la commune de Coray, cet immeuble de caractère datant de 1910 développe environ 400 m² sur plusieurs niveaux.
Le bien est actuellement exploité en restaurant, offrant une lecture immédiate de son potentiel d’exploitation.
Implanté en centre-bourg, à proximité immédiate des commerces et services, il bénéficie d’un environnement accessible avec stationnement public à proximité.
Composition du bien :
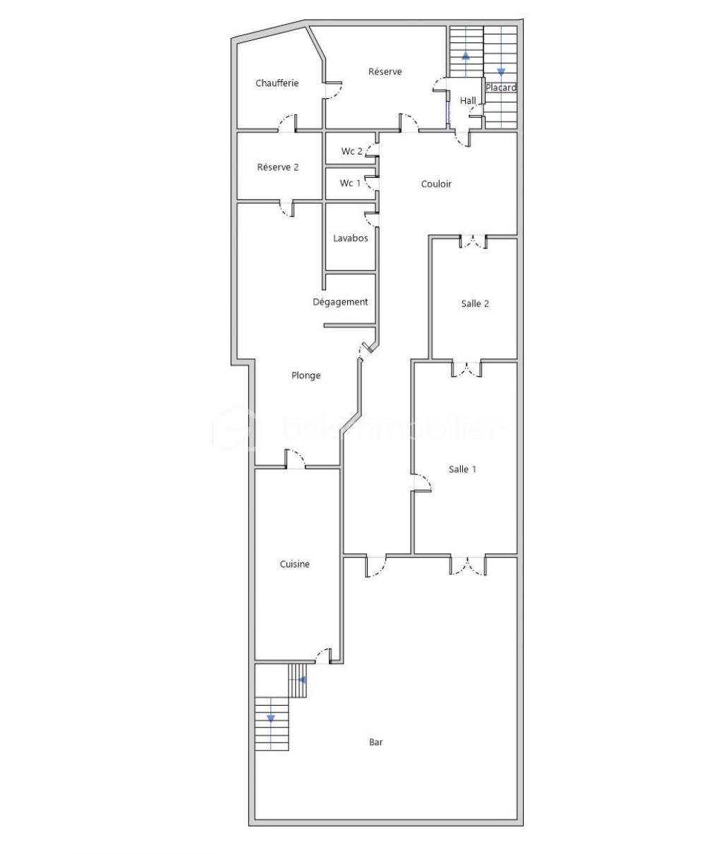
Au rez-de-chaussée :
Entrée avec cheminée, pierres apparentes et poutres
Espace bar
Plusieurs salles de restauration en enfilade
Cuisine professionnelle, laboratoire, réserves
Sanitaires
Espace technique (chaufferie / stockage)
Au 1er étage :
Une pièce pouvant faire office de bureau ou une ou 2 chambres ...
Salle d’eau avec WC
Une grande salle de réception d’environ 150 m² avec belle hauteur sous plafond
Au 2ème étage :
Espace bureau ou chambre ...
Salle de bain avec WC
Caractéristiques techniques :
Chauffage fioul
Toiture principale refaite en bac acier
Une partie de la couverture reste à reprendre (photos drone sur demande)
Absence de jardin, garage ou parking privatif.
Analyse & potentiel :
Actuellement exploité en restaurant cet ensemble immobilier peut convenir à une poursuite d’activité ou à un projet de transformation (division, changement de destination, projet mixte…), sous réserve des autorisations d’urbanisme.
Les volumes, la configuration et l’emplacement en cœur de bourg constituent une base solide pour un projet à valoriser, nécessitant des travaux de modernisation.
- - - Visite uniquement sur rendez-vous - - -
Contact : Gino DUPUY - BSK Immobilier
_________________________________________________
VENTE IMMOBILIÈRE – QUIMPER & Alentours
Échangeons sur votre projet, sans engagement, pour définir la meilleure stratégie de vente.
APPORTEURS D'AFFAIRES
Vous connaissez quelqu'un qui souhaite vendre ou acheter ?
Un simple message suffit pour initier un contact, je m'occupe du reste. Rémunération attractive.
COLLABORATION INTERCABINET
Discutons volontiers d'un partage de mandat ou d'un acheteur en recherche.
_________________________________________________
Honoraires charge vendeur : aucun frais d'agence supplémentaires pour vous.
Le prix affiché est votre prix final hors frais de notaire.
Cette annonce référence 326331 vous est présentée par votre agent commercial BSK Immobilier GINO DUPUY (EI) immatriculé au RSAC de QUIMPER (29000) sous le numéro 92500926800010.
Prix du bien : 129 900,00 €
Les honoraires d'agence sont à la charge du vendeur.
DPE vierge.
Les informations sur les risques auxquels ce bien est exposé sont disponibles sur le site Géorisques : www.georisques.gouv.fr