LUDOVIC MOREL
Appeler Email
Retour
Maison de 151 m² - a.jpg

Maison de 151 m² à Coubron

599 000 €
93470 Coubron
Ref. 317304

Les chevaux comme voisins ! Vue imprenable sur les champs et la forêt !

Quartier pavillonnaire, entre les chevaux et les écoles maternelle et primaire, ce pavillon de plain pied édifié sur sous-sol en 1980 de 151m² habitable, 216m² utile, permet de vivre de PLAIN PIED et de profiter du terrain de 420m². Finitions incroyable !

Futur métro ligne 16 à 5 min :
• A 30 min de la Défense
• A 45 min de la gare du Nord
• A 15 min de la gare RER B du Vert Galant

Agencement
De plain-pied
• Entrée
• Séjour triple (44m²)
• Terrasse avec pergola (25m²)
• Cuisine aménagée et équipée (9m²)
• Chambre (11m²)
• Salle d'eau (2m²)
• WC avec lave-main

Etage
• Palier
• Chambre (9,5m²)
• Chambre (11m²)
• Suite parentale : chambre (10,5m²), dressing (11m²), salle d’eau (5m²)
• Salle d’eau (2,6m²)
• WC

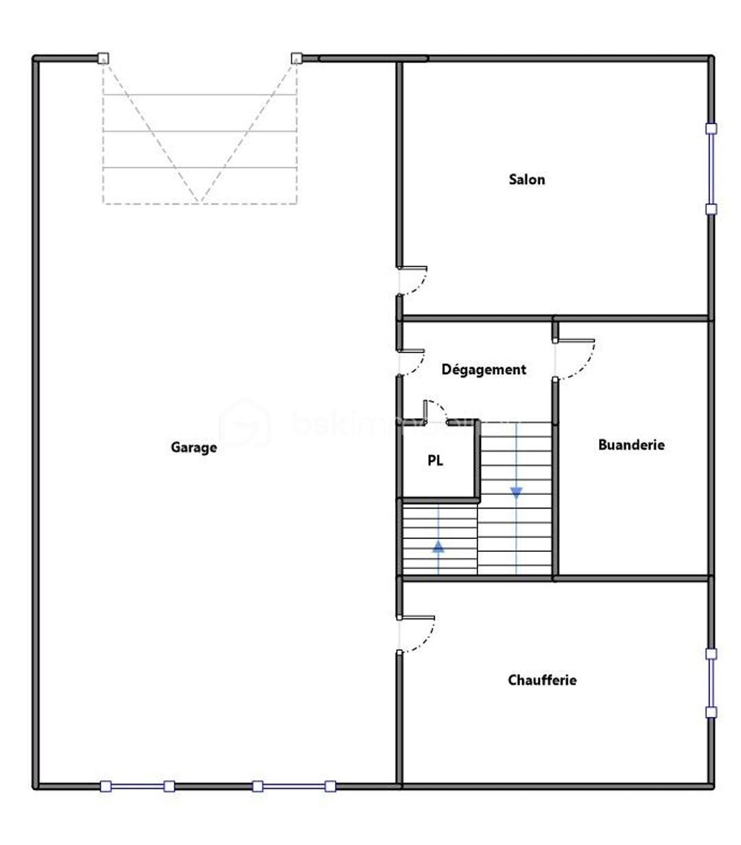
Sous-sol (HSP 2,10m)
• Garage double (43m²)
• Salon (14m²)
• Buanderie
• Chaufferie
• Cave

Jardin sans vis-à-vis, de la place pour 4 véhicules, 2 bateaux, 2 portails

Prestations
• Double vitrage PVC, volets roulant électrique (2020)
• Isolation intérieure et extérieure (2023)
• Chauffage au gaz, chaudière récente
• DPE performant en C
• Chambre et salle d'eau au rez-de-chaussée (idéal pour une vie sans escaliers)
• PRESTATIONS EXCEPTIONNELLES

Informations financières
• Prix de vente : 599 000 €
• Taxe foncière : 2 200 €

Ludovic MOREL
Votre Partenaire Immobilier
Depuis 2010

•••
Cette annonce référence 317304 vous est présentée par votre agent commercial BSK Immobilier LUDOVIC MOREL (EI) immatriculé au RSAC de BOBIGNY (93000) sous le numéro 91259345600029.

Prix du bien : 599 000,00 €
Les honoraires d'agence sont à la charge du vendeur.

A propos des performances énergétiques :
Date de réalisation du diagnostic énergétique : 19/06/2025
Score DPE : 95 kWhEP/m²/an
Score GES : 18 kgepCO2/m²/an
Montant estimé des dépenses annuelles d'énergie pour un usage standard : entre 1400.00 € et 1940.00 € par an. Prix moyens des énergies indexés sur l'année 2021 (abonnements compris).

Les informations sur les risques auxquels ce bien est exposé sont disponibles sur le site Géorisques : www.georisques.gouv.fr


  • 7 pièces
  • 151 m²
  • Exposition Sud-Ouest
  • 4 chambres
  • Parking
  • Terrasse
  • Calme
  • Refait à neuf

95 kWhEP/m².an
C
18 kgepCO2/m².an
C

Prix : 599 000 €


  • Année de construction : 1980
  • Cheminée
Maison de 151 m² - b.jpg Maison de 151 m² - c.jpg
Maison de 151 m² - a.jpg
LUDOVIC MOREL
LUDOVIC MOREL
30 biens en vente

Autres biens qui pourraient vous plaîre

  • LUDOVIC MOREL - 250717081059_photo_en_situation_professionnelle
    93470 Coubron
    • 5 pièces
    • 100 m²
    • 3 chambres
    • 535 m² de terrain
  • LUDOVIC MOREL - 250717081059_photo_en_situation_professionnelle
    93470 Coubron
    • 6 pièces
    • 100 m²
    • 4 chambres
    • 450 m² de terrain
  • LUDOVIC MOREL - 250717081059_photo_en_situation_professionnelle
    93470 Coubron
    • 6 pièces
    • 110 m²
    • 4 chambres
    • 562 m² de terrain
  • LUDOVIC MOREL - 250717081059_photo_en_situation_professionnelle
    93470 Coubron
    • 6 pièces
    • 220 m²
    • 4 chambres
    • 715 m² de terrain