Située dans un quartier pavillonnaire paisible de Couzeix, cette maison construite en 1974, implantée sur une parcelle entièrement clôturée de 700 m², offre un cadre de vie agréable.
Édifiée sur vide sanitaire, elle bénéficie d’un bon entretien général et d’améliorations récentes.
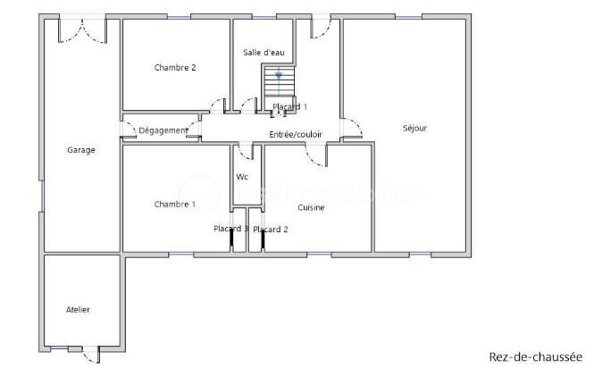
✨ Agencement intérieur
Au rez-de-chaussée :
• Couloir d’environ 8 m² desservant les pièces
• Salon / salle à manger lumineux (deux portes-fenêtres) d’environ 27 m² avec cheminée
• Cuisine aménagée et équipée (plaque à gaz, four et hotte aspirante) d’environ 11 m²
• WC indépendant
• Deux chambres d’environ 10 m² chacune avec placard intégré
• Salle d’eau récente avec douche à l’italienne, meuble sous-vasque, sèche serviette et fenêtre
À l’étage :
• Deux chambres mansardées de 15 m² et 16 m² environ
✨ Caractéristiques techniques
• Maison sur vide sanitaire
• VMC
• Double vitrage intégral
• Chaudière gaz FRISQUET à condensation avec production d’eau chaude
• Chauffage gaz au rez-de-chaussée - Chauffage électrique à l’étage
• Toiture nettoyée
• Façade et avant-toits récemment repeints
• Volets électriques
• Portail récent
✨ Extérieurs
Vous profiterez d’une terrasse (orientée sud ouest) faisant le tour de la maison équipée d’un store banne. Le jardin entièrement clôturé, comprend un abri de jardin maçonné et un BBQ.
📞 Je reste à votre disposition pour toute information complémentaire ou pour organiser une visite.
Cette annonce référence 323500 vous est présentée par votre agent commercial BSK Immobilier RUI FERNANDES CAMACHO (EI) immatriculé au RSAC de LIMOGES (87000) sous le numéro 84178207100036.
Prix du bien : 195 000,00 €
Prix du bien hors honoraires : 187 000,00 €
Honoraires TTC : 4,28 %
Les honoraires d'agence sont à la charge de l'acquéreur.
A propos des performances énergétiques :
Date de réalisation du diagnostic énergétique : 02/03/2026
Score DPE : 313 kWhEP/m²/an
Score GES : 51 kgepCO2/m²/an
Montant estimé des dépenses annuelles d'énergie pour un usage standard : entre 2920.00 € et 4010.00 € par an. Prix moyens des énergies indexés sur l'année 2021 (abonnements compris).
Les informations sur les risques auxquels ce bien est exposé sont disponibles sur le site Géorisques : www.georisques.gouv.fr