Venez découvrir cette grande maison de 152 m², située dans la paisible commune de Curzay-sur-Vonne. Construite en 1900 et partiellement rénovée, elles offrent de beaux volumes et un caractère unique. Toutefois, un rafraîchissement important est à prévoir pour révéler tout son potentiel.
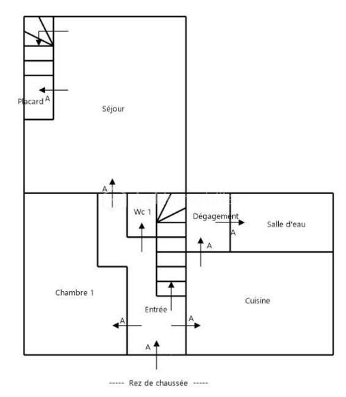
Cette maison réunie deux anciennes parties avec un accès aux étages avec deux escaliers.
Description :
1ère Partie :
Sous-sol : une grande cave avec la chaudière
Rez-de-chaussée :
Entrée, Cuisine spacieuse,Une salle d'eau, Wc ainsi qu'une chambre..
À l'étage :
2 grandes chambres offrant de belles surfaces.
2ème Partie :
Rez-de-chaussée :
Un grand salon/salle à manger (35m²)
A l'étage:
1 très grande chambre (25m²), une grande salle de bain, un wc séparé et un cellier.
Extérieurs :
Une cour intérieure, un garage et une ancienne écurie agrémentent ce bien permettant du stockage.
Deux terrains situés de l'autre côté de la route (270 et 311 m²) , pouvant être aménagés en potager ou en espaces de stationnement/garage avec accès direct à la rivière.
Points forts :
Beaux volumes et luminosité.
Beaucoup de potentiel pour les amateurs de rénovation.
Cadre calme et verdoyant, idéal pour une vie de village sereine.
La maison est raccordée au tout à l'égout, système de chauffage central au fioul agrémenté par un insert à bois souflant.
Le plus de cet ensemble immobilier c'est de pouvoir soit habiter la totalité ou séparer les 2 biens afin de faire deux locatifs.
A visiter rapidement!
Cette annonce référence 262175 vous est présentée par votre agent commercial BSK Immobilier JULIEN SABATIER (EI) immatriculé au RSAC de POITIERS (86000) sous le numéro 91786954700021.
Prix du bien : 65 000,00 €
Prix du bien hors honoraires : 60 000,00 €
Honoraires TTC : 8,33 %
Les honoraires d'agence sont à la charge de l'acquéreur.
A propos des performances énergétiques :
Date de réalisation du diagnostic énergétique : 19/11/2024
Score DPE : 250 kWhEP/m²/an
Score GES : 58 kgepCO2/m²/an
Montant estimé des dépenses annuelles d'énergie pour un usage standard : entre 3810.00 € et 5210.00 € par an. Prix moyens des énergies indexés sur l'année 2023 (abonnements compris).
Les informations sur les risques auxquels ce bien est exposé sont disponibles sur le site Géorisques : www.georisques.gouv.fr