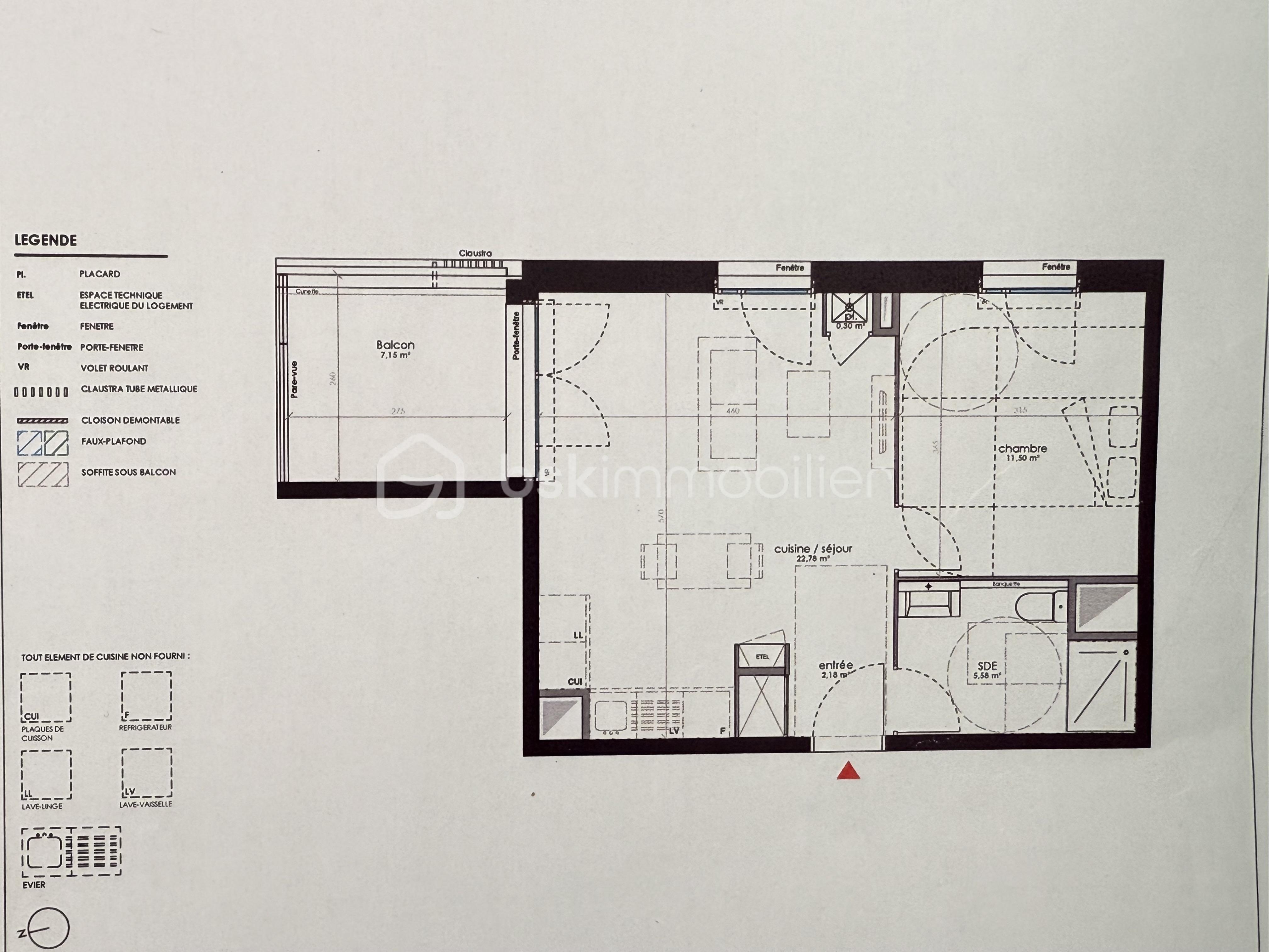
Venez découvrir ce magnifique appartement de 42 m² situé dans une résidence neuve livrée en 2024. Idéal tant pour un premier achat que pour un investissement, il allie confort et modernité.
Il se compose d’un grand séjour lumineux de 23 m² ouvert sur la cuisine (à aménager selon vos goûts), donnant accès à un balcon de 7 m² exposé Est.
La chambre de plus de 11 m² bénéficie d’une belle luminosité naturelle. La salle d’eau avec WC complète ce bien pratique et fonctionnel.
Une cave de plus de 3 m² est incluse dans le prix et la résidence répond aux normes PMR
Possibilité d'acquérir un garage en supplément.
L’immeuble est idéalement situé à proximité des commerces, des transports en commun et des espaces verts. Possibilité d’acquérir un garage en supplément.
Logement récent jamais habité : il pourrait potentiellement ouvrir droit au PTZ ( sous conditions de ressources et selon la réglementation en vigueur).
Ne manquez pas cette opportunité exceptionnelle de vivre dans un appartement moderne et personnalisable. Contactez-moi dès aujourd’hui pour organiser une visite !
Cette annonce référence 311714 vous est présentée par votre agent commercial BSK Immobilier SABINE PETITCLERC (EI) immatriculé au RSAC de GRENOBLE (38000) sous le numéro 79269767400010.
Prix du bien : 112 000,00 €
Les honoraires d'agence sont à la charge du vendeur.
A propos de la copropriété :
Pas de procédure en cours.
Nombre de lots : 2
Charges prévisionnelles annuelles : 700,00 €
A propos des performances énergétiques :
Date de réalisation du diagnostic énergétique : 13/06/2024
Score DPE : 76 kWhEP/m²/an
Score GES : 15 kgepCO2/m²/an
Montant estimé des dépenses annuelles d'énergie pour un usage standard : entre 311.00 € et 421.00 € par an. Prix moyens des énergies indexés sur l'année 2024 (abonnements compris).
Les informations sur les risques auxquels ce bien est exposé sont disponibles sur le site Géorisques : www.georisques.gouv.fr