XAVIER PEROT
Appeler Email
Retour
Maison de village de 103 m² - 14.jpg

Maison de village de 103 m² à Guilliers

149 900 €
56490 Guilliers
Ref. 316011

Maison en pierre avec dépendance et grand jardin – Guilliers (56490)

Située dans un charmant petit village, à seulement 1,5 km du Centre-Bourg de Guilliers, cette maison en pierre mitoyenne offre un cadre de vie paisible et verdoyant.
Une surface habitable chauffée d’environ 103 m², elle bénéficie d’un excellent classement énergétique en B, résultat de nombreux travaux récents d’amélioration énergétique.

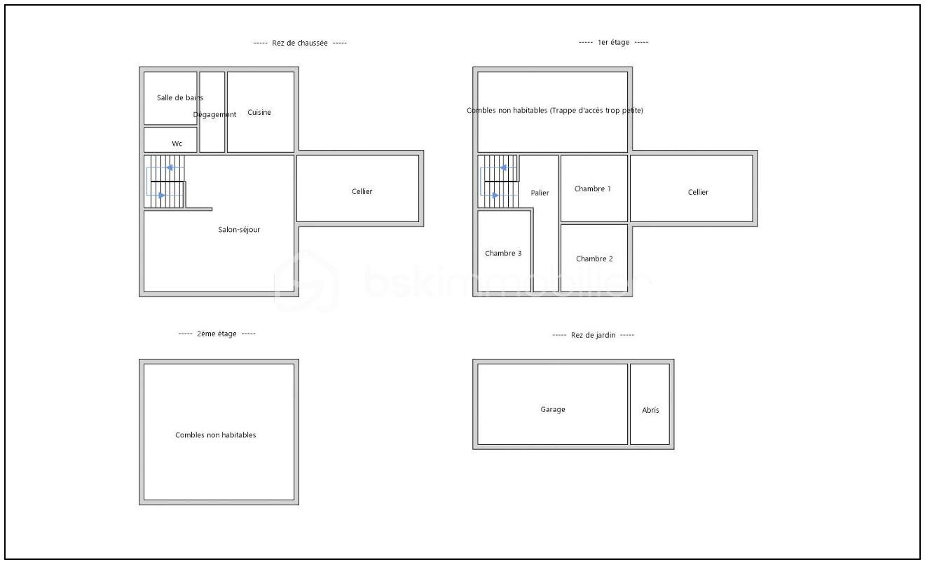
La maison se compose au rez-de-chaussée :
-Une cuisine ouverte, aménagée et équipée,
-Un salon / séjour lumineux,
-Une salle de bain et un WC indépendant,
-Un couloir donnant accès à l’arrière de la maison.

À l’étage :
-Un couloir desservant trois chambres spacieuses.

Les extérieurs :
-Une dépendance avec garage,
-Un premier terrain attenant au garage de 410 m².
-À l’arrière de la maison, un superbe terrain arboré et entièrement clos d’environ 850 m², agrémenté d’un jardin avec pergolas, idéal pour profiter des beaux jours.

Prestations et équipements récents :
-Classement Energétique en B selon les nouvelles normes 2026
-Pompe à chaleur installée en 2022, en parfait état de fonctionnement,
-Poêle à granulés en complément du système de chauffage en place,
-Panneaux solaires installés en novembre 2023 sur la toiture du cellier avec une économie annuelle sur le chauffage estimée entre 600 € et 700 €,
-Egalement une Revente d’électricité générant environ 1 200 € par an,
-Ballon d’eau chaude thermodynamique, installé en novembre 2023.

Taxe Foncière de 300€
Ouverture PVC sur la partie RDC , bois à l'étage ( Prévoir le changement de quatre ouvertures).
Toiture en ardoise Naturelle.

Ce bien allie authenticité, confort moderne et performance énergétique, le tout dans un environnement calme et agréable.

De mon point de vue , une Opportunité à Saisir…

Informations complémentaires , me contacter au 06.31.01.31.98
Cette annonce référence 316011 vous est présentée par votre agent commercial BSK Immobilier XAVIER PEROT (EI) immatriculé au RSAC de VANNES (56000) sous le numéro 87961045900015.

Prix du bien : 149 900,00 €
Les honoraires d'agence sont à la charge du vendeur.

A propos des performances énergétiques :
Date de réalisation du diagnostic énergétique : 22/07/2025
Score DPE : 105 kWhEP/m²/an
Score GES : 3 kgepCO2/m²/an
Montant estimé des dépenses annuelles d'énergie pour un usage standard : entre 1030.00 € et 1440.00 € par an. Prix moyens des énergies indexés sur l'année 2025 (abonnements compris).

Les informations sur les risques auxquels ce bien est exposé sont disponibles sur le site Géorisques : www.georisques.gouv.fr


  • 4 pièces
  • 103 m²
  • 3 chambres
  • Parking
  • Terrasse
  • Situé en campagne
  • Refait à neuf
  • De plain-pied

105 kWhEP/m².an
B
3 kgepCO2/m².an
A

Prix : 149 900 €


  • Année de construction : 1949
  • Cheminée
Maison de village de 103 m² - 16.jpg Maison de village de 103 m² - 15.jpg
Maison de village de 103 m² - 14.jpg
XAVIER PEROT
XAVIER PEROT
16 biens en vente

Autres biens qui pourraient vous plaîre

  • XAVIER PEROT - perot_xavier
    56490 Guilliers
    • 7 pièces
    • 140 m²
    • 4 chambres
    • 2 196 m² de terrain
  • XAVIER PEROT - perot_xavier
    56490 Guilliers
    • 4 pièces
    • 2 675 m²
    • 3 chambres
  • XAVIER PEROT - perot_xavier
    56490 Guilliers
    • 5 pièces
    • 64 m²
    • 3 chambres
  • XAVIER PEROT - perot_xavier
    56490 Guilliers
    • 1 050 m²