COUP DE CŒUR – Maison en pierre avec dépendance – 700 m² de terrain – Houtteville, près de Picauville
Amoureux de l’authenticité et de la tranquillité ? Cette charmante maison en pierre d’environ 73 m² nichée dans un petit hameau de Houtteville, à quelques minutes de Picauville, est faite pour vous.
Derrière son cachet traditionnel se cache une maison offrant un beau potentiel, implantée sur un agréable terrain de 700 m², idéal pour profiter du calme de la campagne.
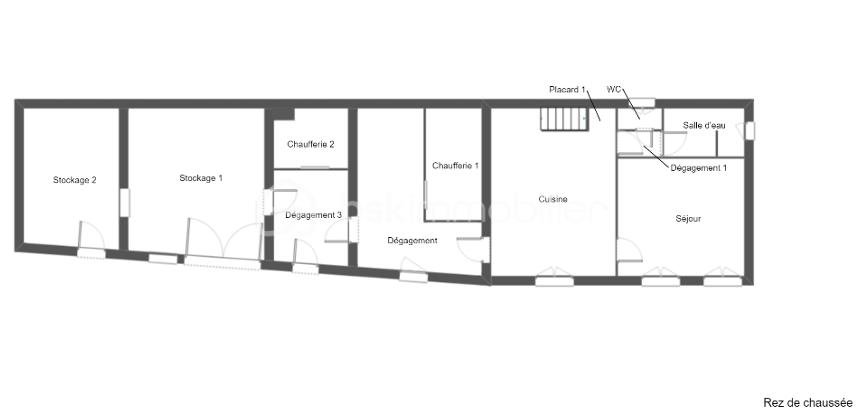
Au rez-de-chaussée :Une entrée sur cuisine, un séjour, une salle d’eau, des WC séparés, un local technique ainsi qu’un accès direct à la dépendance — parfait pour un atelier, du stockage ou un futur projet d’aménagement.
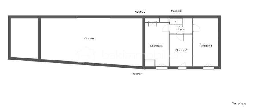
À l’étage :Un palier dessert trois chambres, idéales pour accueillir famille, amis ou aménager un espace bureau.
Ses atouts majeurs :
Le charme authentique de la pierre
Toiture récente
Menuiseries neuves
Pompe à chaleur installée il y a seulement 2 ans : confort moderne et économies d’énergie
Dépendance aux multiples possibilités
Terrain de 700 m² facile à entretenir
Environnement paisible dans le un cadre champêtre
⚒️ Des travaux sont à prévoir offrant l’opportunité de personnaliser la maison selon vos goûts et vos envies et de révéler tout son potentiel.
Une maison pleine de charme, idéale pour un projet de rénovation dans un cadre calme et recherché.
Une belle opportunité à saisir rapidement !
Cette annonce référence 322213 vous est présentée par votre agent commercial BSK Immobilier SABRINA LARCHEVESQUE (EI) immatriculé au RSAC de CHERBOURG-EN-COTENTIN (50100) sous le numéro 89838722000012.
Prix du bien : 117 000,00 €
Les honoraires d'agence sont à la charge du vendeur.
A propos des performances énergétiques :
Date de réalisation du diagnostic énergétique : 12/03/2025
Score DPE : 170 kWhEP/m²/an
Score GES : 6 kgepCO2/m²/an
Montant estimé des dépenses annuelles d'énergie pour un usage standard : entre 1180.00 € et 1640.00 € par an. Prix moyens des énergies indexés sur l'année 2021 (abonnements compris).
Les informations sur les risques auxquels ce bien est exposé sont disponibles sur le site Géorisques : www.georisques.gouv.fr