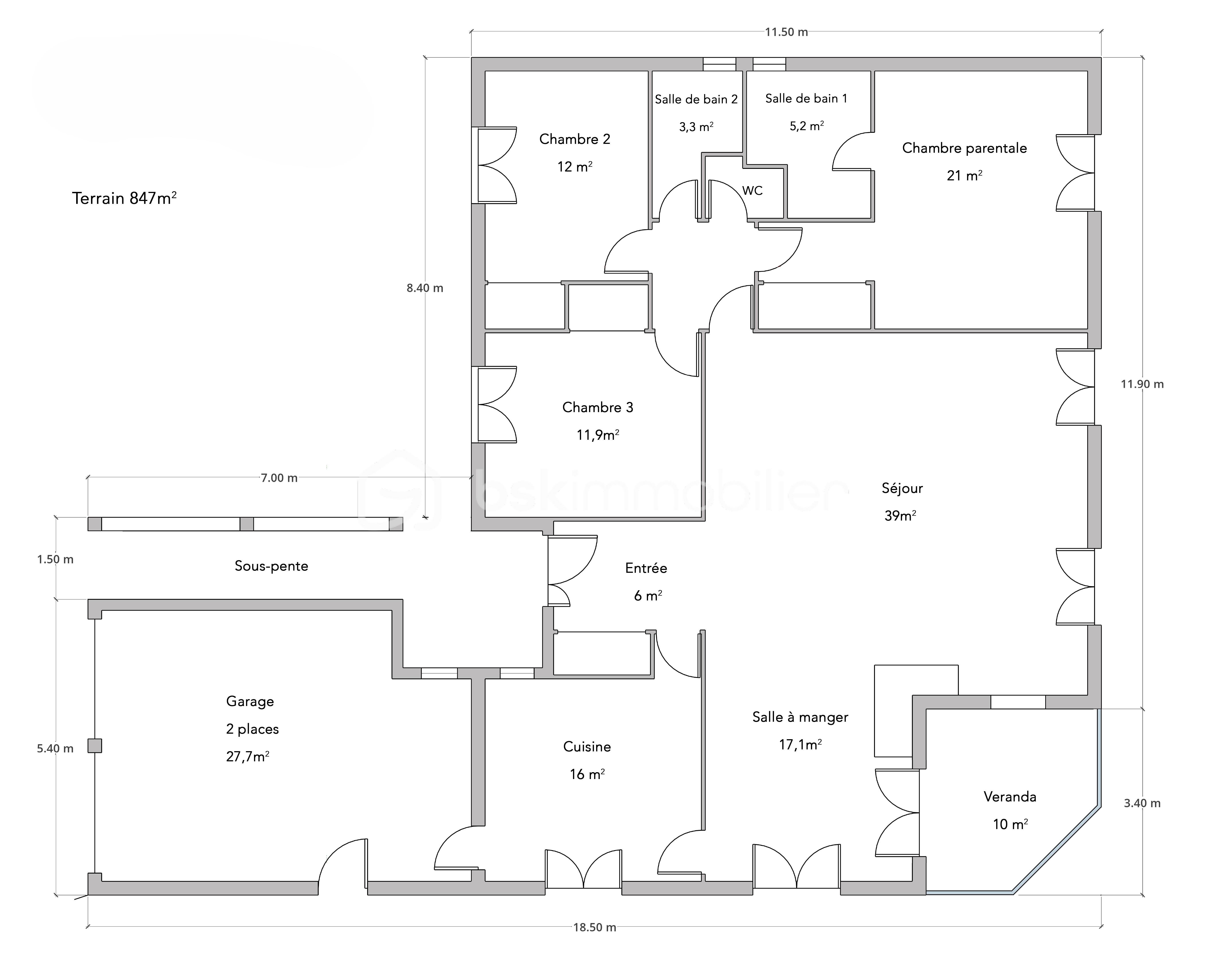
Dans un cadre calme et paisible de Le Port-Marly, venez découvrir cette belle maison de plain-pied de 151 m², implantée au cœur d'un jardin d'environ 849 m², sans vis-à-vis ni mitoyenneté.
Dès l'entrée avec placard, le spacieux salon-séjour de 56 m² s'ouvre généreusement sur le jardin et une véranda, tout comme la cuisine indépendante de 16 m², avec possibilité d'ouverture. L'espace nuit comprend trois chambres spacieuses, dont une suite parentale avec salle d'eau et WC privatifs, ainsi qu'une seconde salle d'eau et un WC séparé. Toutes les pièces bénéficient d'ouvertures sur le jardin, offrant une vue dégagée sur la verdure. Un garage double complète ce bien. Consultez le plan détaillé de la maison à la suite de la galerie photos
Transports à quelques pas - Gare de Marly-le-Roi à environ 20 min à pied
Sectorisation : groupe scolaire Alexandre Dumas (maternelle & élémentaire) — Collège Jean Moulin au Pecq
Cette annonce référence 322958 vous est présentée par votre agent commercial BSK Immobilier CHRISTINE MILLIET (EI) immatriculé au RSAC de VERSAILLES (78000) sous le numéro 82349475200012.
Prix du bien : 749 000,00 €
Les honoraires d'agence sont à la charge du vendeur.
A propos de la copropriété :
Pas de procédure en cours.
Nombre de lots : 124
Charges prévisionnelles annuelles : 600,00 €
A propos des performances énergétiques :
Date de réalisation du diagnostic énergétique : 11/03/2022
Score DPE : 121 kWhEP/m²/an
Score GES : 8 kgepCO2/m²/an
Montant estimé des dépenses annuelles d'énergie pour un usage standard : entre 1340.00 € et 1870.00 € par an. Prix moyens des énergies indexés sur l'année 2022 (abonnements compris).
Les informations sur les risques auxquels ce bien est exposé sont disponibles sur le site Géorisques : www.georisques.gouv.fr