NESRINE FONTAINE
Appeler Email
Retour
Immeuble de 254 m² - 20251016_144804.jpg

Immeuble de 254 m² à Le Teil

274 000 €
07400 Le Teil
Ref. 309633

Propriété familiale sur 3 parcelles – deux maisons et terrain – Le Teil

Située au Teil, cette propriété familiale rare offre un grand potentiel pour un projet de rénovation, d’investissement locatif ou pour accueillir plusieurs générations.
L’ensemble se compose de trois parcelles distinctes, comprenant deux habitations indépendantes et un terrain attenant.

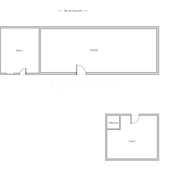
🏠 Maison n°1 – environ 79 m² (indépendante)
Implantée sur sa propre parcelle, cette maison est indépendante, mitoyenne par les garages, mais sans communication directe avec la grande maison.
Elle se compose de :

une terrasse avec une cave en dessous,

un garage et une chambre au sous-sol,

à l’étage : trois pièces, une cuisine et une salle d’eau.

👉 Rénovation complète à prévoir, idéal pour un logement locatif, une maison d’amis ou un projet familial indépendant.

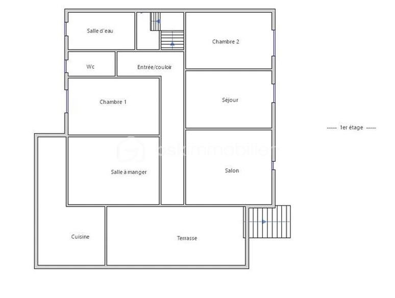
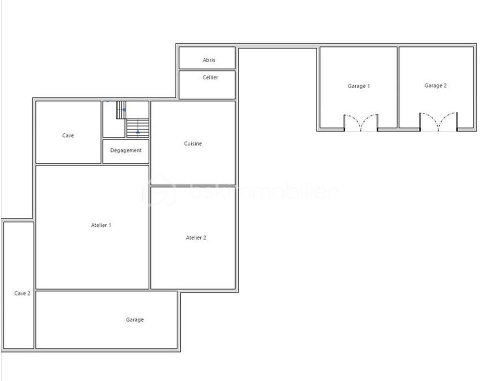
🏡 Maison principale – environ 175 m²
Spacieuse et lumineuse, cette grande maison offre de nombreuses possibilités d’aménagement :

Sous-sol complet comprenant plusieurs caves et deux garages,

Premier étage : une cuisine, cinq pièces (salon, chambres, bureau...), une salle de bain et toilettes séparées,

Deuxième étage mansardé : un vaste salon, trois chambres et une salle d’eau.

👉 À rénover au goût du jour, cette maison offre un beau potentiel pour créer une grande demeure familiale.

🌳 Le terrain (3ᵉ parcelle)
Une troisième parcelle complète la propriété, offrant un espace extérieur supplémentaire idéal pour un jardin, un potager, ou un projet d’aménagement futur.

💡 Les points forts
Ensemble composé de 3 parcelles distinctes

Deux habitations indépendantes

Des garages + caves spacieuses

Beaux volumes et nombreuses possibilités d’aménagement

Projet idéal pour une famille, un investisseur ou un artisan

Proche des commodités du Teil

Contactez moi – fort potentiel !
Cette annonce référence 309633 vous est présentée par votre agent commercial BSK Immobilier NESRINE FONTAINE (EI) immatriculé au RSAC de AUBENAS (07200) sous le numéro 88987251100015.

Prix du bien : 274 000,00 €
Prix du bien hors honoraires : 264 000,00 €
Honoraires TTC : 3,79 %
Les honoraires d'agence sont à la charge de l'acquéreur.

A propos de la copropriété :
Pas de procédure en cours.
Nombre de lots : 2
Charges prévisionnelles annuelles : 0,00 €

DPE vierge.

Les informations sur les risques auxquels ce bien est exposé sont disponibles sur le site Géorisques : www.georisques.gouv.fr


  • 13 pièces
  • 254 m²

VI
VI

Prix : 274 000 €


  • Année de construction : 1926
  • Cheminée
Immeuble de 254 m² - 20251016_145232.jpg Immeuble de 254 m² - 20251016_145336.jpg
Immeuble de 254 m² - 20251016_144804.jpg
NESRINE FONTAINE
NESRINE FONTAINE
Le Teil et alentours
6 biens en vente

Autres biens qui pourraient vous plaîre

  • YOANN CHARRE - 240129083742_photo_en_situation_professionnelle
    07400 Le Teil
    • 6 pièces
    • 150 m²
    • 3 chambres
    • 1 000 m² de terrain
  • EMILIE BOUDRANDI - 240514102844_photo_en_situation_professionnelle
    07400 Le Teil
    • 9 pièces
    • 179 m²
    • 4 chambres
  • NESRINE FONTAINE - RGZkbPO4fpBGFecVxnIyDU
    07400 Le Teil
    • 5 pièces
    • 107,55 m²
    • 3 chambres
  • CELINE PASCAL - lbs6D7zEAlfSujf6Lgnfe4
    07400 Le Teil
    • 6 pièces
    • 150 m²
    • 3 chambres
    • 722 m² de terrain