BSKIMMOBILIER VALERIE BARBIERI vous propose à la vente en exclusivité,
🔑 Un bien rare sur le marché !
🏡 Cette superbe maison de construction traditionnelle de 2011 avec vue sur le Massif des Maures, offrant 150 m² de superficie habitable, implantée sur un terrain clos et paysagé de 1 268 m², dans un secteur résidentiel calme et recherché. Un bien alliant confort, modernité, élégance et fort potentiel locatif !
Exposition Sud!
🌿 Composition du bien:
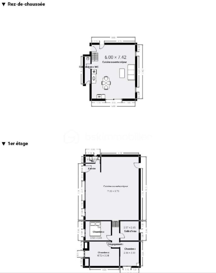
👉 Au rez-de-chaussée : Belle entrée avec WC indépendant et lave-mains, vaste pièce de vie lumineuse d'environ 64 m², avec cuisine ouverte entièrement aménagée et équipée, trois chambres, dont une suite parentale avec salle d’eau privative et dressing, une seconde salle d’eau indépendante.
👉 En rez-de-jardin : Loft indépendant d’environ 45 m², entièrement aménagé, Idéal pour recevoir, créer un second logement, ou profiter d’un excellent rendement locatif (saisonnier ou annuel)
☀️ Extérieurs & équipements : Piscine au sel chauffée 10 x 3,5 m, en carrelage style balinais, pool house: cuisine d’été équipée, douche, WC, espace détente,
Portail automatique avec vidéo surveillance et visiophone,
Carport + stationnement pour 6 à 7 véhicules
Les prestations: Adoucisseur d’eau, poêle à bois, climatisation réversible, baie à galandage, double vitrage, plusieurs terrasses, …
Façade récemment refaite
💰 Les plus : Loft avec entrée totalement indépendante, prestations intérieures et extérieures de qualité, environnement très calme et recherché, aucun vis-à-vis!
Bien idéal pour grande famille, télétravail, investissement locatif ou résidence secondaire!
PEUT ÊTRE VENDU MEUBLE!
À visiter sans tarder!
Me contacter pour de plus amples informations …
Visite possible tous les jours, weekend et jours fériés!
Cette annonce référence 311244 vous est présentée par votre agent commercial BSK Immobilier VALERIE BARBIERI (EI) immatriculé au RSAC de DRAGUIGNAN (83300) sous le numéro 88029666000017.
Prix du bien : 799 000,00 €
Les honoraires d'agence sont à la charge du vendeur.
A propos des performances énergétiques :
Date de réalisation du diagnostic énergétique : 24/07/2025
Score DPE : 126 kWhEP/m²/an
Score GES : 4 kgepCO2/m²/an
Montant estimé des dépenses annuelles d'énergie pour un usage standard : entre 1350.00 € et 1890.00 € par an. Prix moyens des énergies indexés sur l'année 2025 (abonnements compris).
Les informations sur les risques auxquels ce bien est exposé sont disponibles sur le site Géorisques : www.georisques.gouv.fr