CASSANDRA GUIDUCCI
Appeler Email
Retour
Appartement de 53 m² - IMG_4790.jpg

Appartement de 53 m² à Marseille-7E-Arrondissement

240 000 €
13007 Marseille-7E-Arrondissement
Ref. 310456

Découvrez ce bel appartement de type 2, idéalement situé en plein cœur du quartier Saint-Victor, à deux pas de la célèbre Abbaye Saint-Victor et du Vieux-Port.

Ce bien coup de cœur séduit dès l’entrée par sa décoration réalisée avec goût et son ambiance chaleureuse.
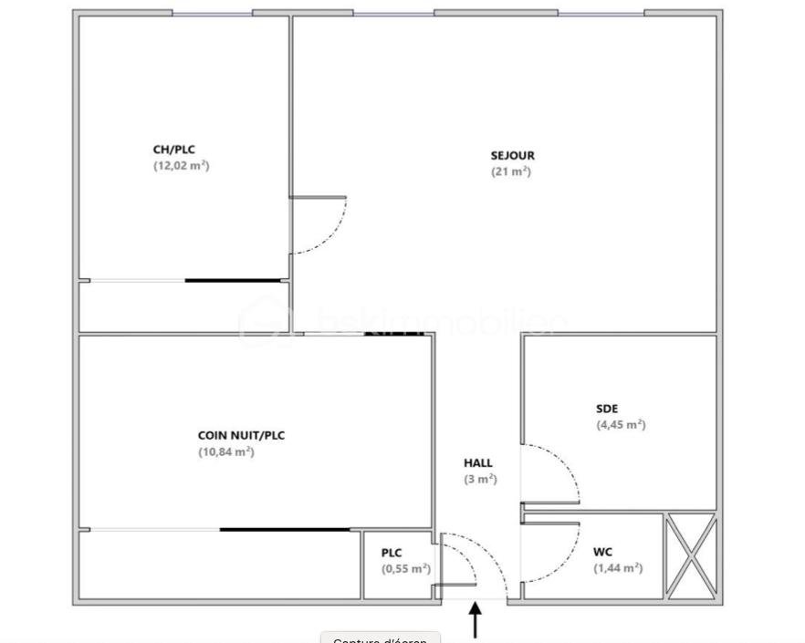
Il se compose d’une pièce de vie lumineuse avec une cuisine entièrement équipée, d’une chambre confortable avec de nombreux rangements, ainsi qu’un bureau aménagé en seconde chambre — parfait pour accueillir un proche ou télétravailler sereinement.

L’appartement est vendu meublé et dispose de tout le nécessaire pour s’y installer immédiatement, y compris la climatisation pour un confort optimal toute l’année.

Les + :

-Emplacement recherché, proche du Vieux-Port et des commerces
-Décoration élégante et équipements de qualité
-Climatisation
-Vendu meublé, prêt à vivre ou à louer

Un bien rare sur le secteur, idéal pour un pied-à-terre, un premier achat ou un investissement locatif réussi.
Cette annonce référence 310456 vous est présentée par votre agent commercial BSK Immobilier CASSANDRA GUIDUCCI (EI) immatriculé au RSAC de MARSEILLE-3E-ARRONDISSEMENT (13003) sous le numéro 88490808800021.

Prix du bien : 240 000,00 €
Les honoraires d'agence sont à la charge du vendeur.

A propos de la copropriété :
Pas de procédure en cours.
Nombre de lots : 1
Charges prévisionnelles annuelles : 884,00 €

A propos des performances énergétiques :
Date de réalisation du diagnostic énergétique : 28/12/2022
Score DPE : 339 kWhEP/m²/an
Score GES : 11 kgepCO2/m²/an
Montant estimé des dépenses annuelles d'énergie pour un usage standard : entre 1100.00 € et 1540.00 € par an. Prix moyens des énergies indexés sur l'année 2021 (abonnements compris).

Les informations sur les risques auxquels ce bien est exposé sont disponibles sur le site Géorisques : www.georisques.gouv.fr


  • 2 pièces
  • 53 m²
  • 1 chambre
  • Dernier étage

339 kWhEP/m².an
F
11 kgepCO2/m².an
C

Prix : 240 000 €
Quote-part : 884 €


  • Année de construction : 1930
  • Climatisation
Appartement de 53 m² - IMG_4788.jpg Appartement de 53 m² - IMG_4799.jpg
Appartement de 53 m² - IMG_4790.jpg
CASSANDRA GUIDUCCI
CASSANDRA GUIDUCCI
MARSEILLE
4 biens en vente

Autres biens qui pourraient vous plaîre

  • 13007 Marseille-7E-Arrondissement
    • 3 pièces
    • 56,83 m²
    • 2 chambres
  • MARC-OLIVIER GOURET - 240705032229_photo_en_situation_professionnelle
    13006 Marseille-6E-Arrondissement
    • 3 pièces
    • 65 m²
    • 2 chambres
  • MARC-OLIVIER GOURET - 240705032229_photo_en_situation_professionnelle
    13006 Marseille-6E-Arrondissement
    • 8 pièces
    • 175 m²
    • 3 chambres
  • VIRGINIE PARRAMON - 231127_photo_en_situation_professionnelle
    13001 Marseille-1Er-Arrondissement
    • 1 pièce
    • 19,55 m²
    • 1 chambre