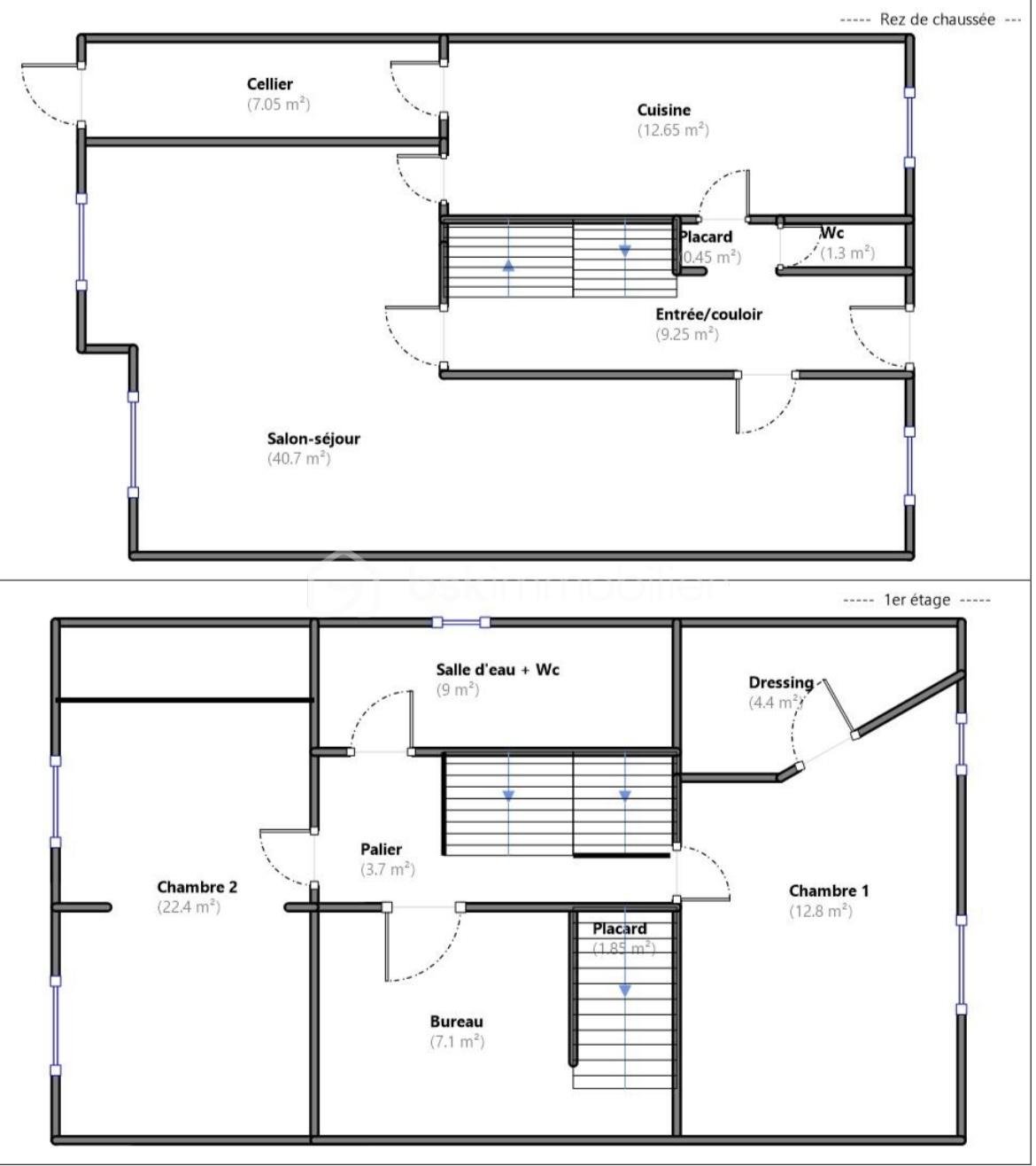
Située à Méry-sur-Oise, au sein de la résidence très recherchée Les Toits, cette maison familiale de 137 m² habitables et 169m2 au sol, offre un cadre de vie rare, calme et sécurisé, au cœur d’un environnement verdoyant.
La résidence est entièrement piétonne, avec un accès véhicules limité aux déposes, garantissant un environnement particulièrement sécurisé, idéal pour les familles.
Une école primaire est située directement dans la résidence, un atout majeur au quotidien et la gare ainsi que les bus sont accessibles à pied en quelques minutes
LA MAISON SE COMPOSE DE :
• Entrée d’environ 6 m²
• Double séjour d’environ 40 m² ouvrant sur le jardin, vue forêt sans vis-à-vis
• Cuisine indépendante de 12 m² entièrement équipée
• Climatisation réversible chaud/froid dans le séjour et toutes les chambres
• Poêle à bois apportant un confort complémentaire
CÔTÉ NUIT :
• 3 chambres spacieuses, dont :
• Suite parentale d’environ 30 m² avec dressing + salle d’eau privative
• Chambre d’environ 20 m²
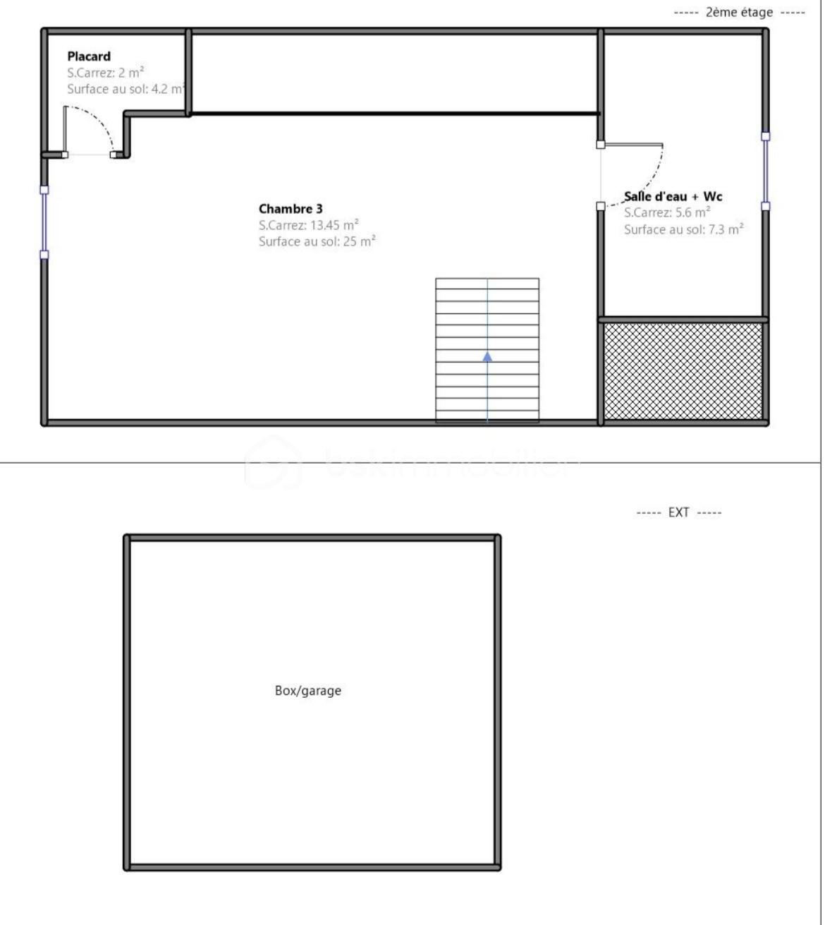
• Chambre d’environ 15 m²
• Seconde salle d’eau d’environ 7 m²
• 3 WC, dont un indépendant
• Rangements intégrés dans toutes les chambres
Toutes les chambres disposent de rangements intégrés.
VOUS Y TROUVEREZ AUSSI :
• Une buanderie au RDC d’environ 6 m²
• Un bureau au 1er étage d’environ 7 m²
EXTÉRIEURS - UN CADRE PRIVILÉGIÉ
• Jardin d’environ 120 m², sans vis-à-vis, vue forêt
• Terrasse pavée (≈40 m²) avec store banne
• Accès direct forêt à quelques mètres
• Environnement calme, préservé, propice aux balades
PRESTATION & TRAVAUX RÉCENTS
• DPE classé B (performance énergétique rare)
• Fenêtres et porte d’entrée neuves (double vitrage – 2024)
• Climatisation réversible dans toutes les pièces (2023)
• Volets roulants électriques centralisés (2024)
• Poêle à bois
• Ballon eau chaude 200 L
• Toiture refaite il y a 3 ans + entretien réalisé en novembre 2025.
Aucun travaux à prévoir.
STATIONNEMENT
• Garage box fermé équipé pour borne de recharge de véhicule électrique situé à environ 30 mètres de la maison
LES ATOUTS DU BIEN
✔ Résidence recherchée & sécurisée
✔ Vue forêt sans vis-à-vis
✔ Jardin + terrasse
✔ Maison clé en main
✔ École dans la résidence
✔ Prestations récentes & qualitatives
✔ DPE B + clim réversible
✔ Distribution idéale pour une vie familiale
Cette annonce référence 316535 vous est présentée par votre agent commercial BSK Immobilier PAULINE RUBLY (EI) immatriculé au RSAC de PONTOISE (95300) sous le numéro 92195140600013.
Prix du bien : 445 000,00 €
Les honoraires d'agence sont à la charge du vendeur.
A propos de la copropriété :
Pas de procédure en cours.
Nombre de lots : 2
Charges prévisionnelles annuelles : 2 000,00 €
A propos des performances énergétiques :
Date de réalisation du diagnostic énergétique : 10/01/2026
Score DPE : 109 kWhEP/m²/an
Score GES : 4 kgepCO2/m²/an
Montant estimé des dépenses annuelles d'énergie pour un usage standard : entre 1340.00 € et 1900.00 € par an. Prix moyens des énergies indexés sur l'année 2026 (abonnements compris).
Les informations sur les risques auxquels ce bien est exposé sont disponibles sur le site Géorisques : www.georisques.gouv.fr