*** Exclusivité sur la commune de MONTBAZIN ***
Mes chers confrères, j'accepte l'inter-agence.
- Idéalement située sur la commune de MONTBAZIN à proximité directe du coeur de village, des commerces et transports.
MONTBAZIN est un village très agréable et pourvu de toutes commodités : épicerie, boulangerie, médecins, pharmacie, écoles, transports, à 10min seulement de l'autoroute, 15 min des PLAGES, 20 min de MONTPELLIER et SETE.
- N'attendez pas pour venir découvrir cette BELLE MAISON COSSUE ET BAIGNEE DE LUMIERE de 156 m2, dont un APPARTEMENT INDÉPENDANT de 46 m2 situé au RDC.
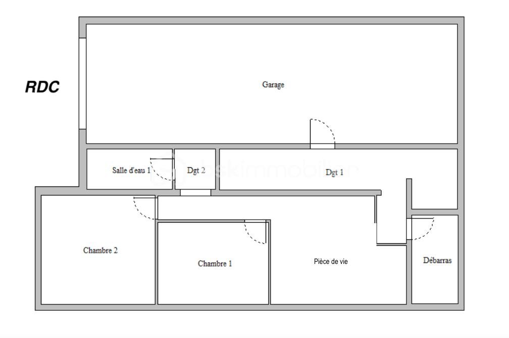
Vous apprécierez également son spacieux GARAGE de 48 m2.
Le tout édifié sur une belle PARCELLE de 809 m2
Cette MAISON ENTRETENUE DE 4 FACE, en position dominante avec vue dégagée, allie confort, sérénité et environnement agréable.
Elle se compose comme suit:
A l'étage, vous découvrirez la maison principale de 110 m2, composée d' une belle pièce de vie avec cheminée, grande terrasse et son espace barbecue.
Une spacieuse cuisine équipée et aménagée suivie d' un espace nuit composé de 3 belles chambres et une salle d'eau avec WC indépendant.
Et, un appartement indépendant au RDC vous accueil par un écrin de verdure arboré et sans vis à vis.
Une pièce de vie avec cuisine équipée, un espace nuit composé de 2 chambres et une salle d'eau avec WC.
Idéal pour ....
* Projet familial avec 2 appartements
* Résidence principal avec revenu locatif saisonnier ou à l'année.
* Accueil famille, amis, parents, enfants jeunes-indépendants
* Profession libérale au RDC ou artisanal avec son immense garage
* Possibilité de relier cet appartement à l'étage ou de l'agrandir car il est attaché au garage. ( nombreux stationnement sur la parcelle).
La toiture est neuve ( 2024 ) avec garantie décennale et peintures refaites.
PRESTATIONS:
- Menuiseries doubles vitrages avec isolation phoniques et thermiques
- Climatisation réversible dans toutes les pièces et volets roulants.
- Cheminée avec insert.
- Facade en piolite
- Puit
- Terrasse couverte de 20m2 .
Le terrain est piscinable.
Je suis à votre disposition pour échanger et organiser une visite.
Vous pouvez me joindre au : 06 99 16 72 10
Mélinda Milliat
Cette annonce référence 247797 vous est présentée par votre agent commercial BSK Immobilier MÉLINDA MILLIAT (EI) immatriculé au RSAC de MONTPELLIER (34000) sous le numéro 51374572900089.
Prix du bien : 497 000,00 €
Les honoraires d'agence sont à la charge du vendeur.
A propos des performances énergétiques :
Date de réalisation du diagnostic énergétique : 12/08/2024
Score DPE : 236 kWhEP/m²/an
Score GES : 7 kgepCO2/m²/an
Montant estimé des dépenses annuelles d'énergie pour un usage standard : entre 2520.00 € et 3470.00 € par an. Prix moyens des énergies indexés sur l'année 2021 (abonnements compris).
Les informations sur les risques auxquels ce bien est exposé sont disponibles sur le site Géorisques : www.georisques.gouv.fr