NATHALIE BRESSON
Appeler Email
Retour
Mas de 210 m² - terrasse ext + cour.jpg

Mas de 210 m² à Montdardier

349 000 €
30120 Montdardier
Ref. 304249

Découvrez ce mas rénové avec goût, niché au cœur de la campagne paisible de Montdardier, sur le causse de Blandas.
L'intégralité du causse de Blandas est inclus dans le périmètre des Causses et Cévennes inscrit au patrimoine mondial de l'UNESCO en juin 2011 et à tout juste 1 h de Montpellier ou de l'A75.
Véritable havre de paix, 3 entrées indépendantes, une première maison tout confort avec 4 chambres, 2eme maison tout confort avec 2 chambres (possible location), une chambre indépendante avec sde et wc, cet ensemble immobilier donne sur la cour avec également un accès différent à l'arrière.
L'eau, un trésor sur ce plateau calcaire, une réserve de 25 m3 a été installée et profite d'une faille calcaire pour récupérer les eaux de pluies, (pompe à eau installée et en fonctionnement).
Avec ses 210 m² habitables sur trois niveaux, cette demeure réunit dix pièces, dont six belles chambres. Le charme authentique se mêle à la modernité, garantissant confort et élégance.
Les intérieurs confortables présentent de beaux séjours, deux cuisines conviviales, trois salles d'eau modernes, deux grands ateliers et de nombreuses caves pratiques. Les maisons sont en parfait état, équipées de menuiseries de belle qualité et d'un vitrage double performant.
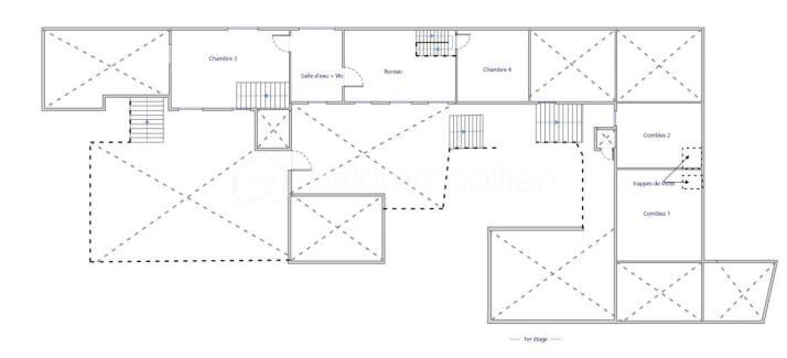
Entièrement rénovée, cette propriété offre un espace de vie hors du commun (voir schémas)
Chauffage bois (inserts et cheminée), climatisation réversible (chaud/froid), double vitrage, exposition sud.
Toiture bon état en partie refaite - habitable immédiatement (possible meublée en partie).
À l'extérieur, vous allez apprécier trois terrasses ombragées, offrant une vue dégagée sans vis-à-vis sur un terrain de 385 m²,
parfait pour profiter des beaux jours dans un cadre calme et ressourçant.
Assainissement collectif fiable.
Le tout à seulement quelques minutes des commodités : écoles, commerces, et infrastructures routières, avec une taxe foncière avantageuse de 950€.

Ce mas est un véritable coup de cœur, prêt à accueillir ses nouveaux propriétaires sans travaux à prévoir.
Contactez Nathalie BRESSON pour plus d’informations - Mandat Exclusif -
Cette annonce référence 304249 vous est présentée par votre agent commercial BSK Immobilier NATHALIE BRESSON (EI) immatriculé au RSAC de NIMES (30000) sous le numéro 75221232400020.

Prix du bien : 349 000,00 €
Les honoraires d'agence sont à la charge du vendeur.

A propos des performances énergétiques :
Date de réalisation du diagnostic énergétique : 18/10/2024
Score DPE : 248 kWhEP/m²/an
Score GES : 8 kgepCO2/m²/an
Montant estimé des dépenses annuelles d'énergie pour un usage standard : entre 3580.00 € et 4910.00 € par an. Prix moyens des énergies indexés sur l'année 2023 (abonnements compris).

Les informations sur les risques auxquels ce bien est exposé sont disponibles sur le site Géorisques : www.georisques.gouv.fr


  • 10 pièces
  • 210 m²
  • Exposition Sud
  • 6 chambres
  • Terrasse
  • Calme
  • Situé en campagne
  • Refait à neuf

248 kWhEP/m².an
D
8 kgepCO2/m².an
B

Prix : 349 000 €


  • Année de construction : 1940
Mas de 210 m² - maison vue 1.jpg Mas de 210 m² - salon.jpg
Mas de 210 m² - terrasse ext + cour.jpg
NATHALIE BRESSON
NATHALIE BRESSON
6 biens en vente

Autres biens qui pourraient vous plaîre

  • PAUL HERREROS - 250128031712_photo_en_situation_professionnelle
    30120 Montdardier
    • 1 200 m²
  • PAUL HERREROS - 250128031712_photo_en_situation_professionnelle
    30770 Blandas
    • 846 m²
  • 30120 Bez-Et-Esparon
    • 6 pièces
    • 144 m²
    • 4 chambres
    • 203 m² de terrain
  • NATHALIE BRESSON - 60c0a43e70242d42c3b59c9aefd3155a53f1136fd98cb
    30120 Le Vigan
    • 14 pièces
    • 285 m²
    • 9 chambres
    • 2,50 hectares de terrain