LAURENT JOUARY
Appeler Email
Retour
Demeure de 240,38 m² - X.png

Demeure de 240,38 m² à Montereau-Fault-Yonne

399 000 €
77130 Montereau-Fault-Yonne
Ref. 320760

7 Pièces · 240 m² ·
Montereau-Fault-Yonne 77130
· Quartier Ville basse
À Proximité du centre ville et à 5 minutes à pied de la Gare de Montereau-Fault-Yonne desservant la Gare de Paris Gare de Lyon en 55 minutes.
Élégante maison de ville d'une surface habitable de 240m², s'ouvrant sur un perron couvert menant à un dressing chauffé.
Elle se compose d'une entrée principale, d'un grand et lumineux séjour/salle à manger avec moulures au plafond, cheminées anciennes et parquet point de Hongrie, d'une cuisine indépendante, équipée et aménagée, d'un WC avec lave mains et d'un magnifique escalier d'époque conduisant aux étages.
Au premier étage:
Une grande salle d'eau entièrement carrelée avec WC séparé et coin lavabo, trois chambres spacieuses et lumineuses.
Au deuxième étage:
Une salle de bain avec WC, un dressing, une buanderie, deux chambres et une salle de billard.
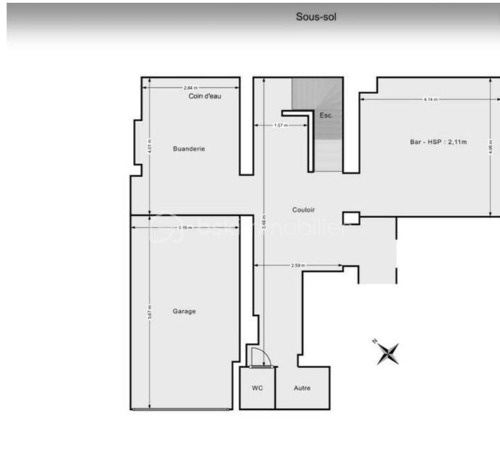
Au sous-sol:
Grand garage, buanderie avec coin d'eau, WC, espace bar/salle de jeux.
Nombreux rangements et placards.
Cave.
Terrasse/balcon
Cour extérieure de 100m2
Toiture en ardoises refaite en 2017
Chauffage au gaz.
Double vitrage.
Classe énergétique : E
Taxe foncière: 3221€.
Montereau
La Grande Paroisse
Vernou-sur-Seine
Une Visite s'impose contacter nous !!!!
Cette annonce référence 320760 vous est présentée par votre agent commercial BSK Immobilier LAURENT JOUARY (EI) immatriculé au RSAC de PARIS-1ER-ARRONDISSEMENT (75001) sous le numéro 91245775100010.

Prix du bien : 399 000,00 €
Les honoraires d'agence sont à la charge du vendeur.

A propos des performances énergétiques :
Date de réalisation du diagnostic énergétique : 03/07/2024
Score DPE : 284 kWhEP/m²/an
Score GES : 60 kgepCO2/m²/an
Montant estimé des dépenses annuelles d'énergie pour un usage standard : entre 4920.00 € et 6730.00 € par an. Prix moyens des énergies indexés sur l'année 2024 (abonnements compris).

Les informations sur les risques auxquels ce bien est exposé sont disponibles sur le site Géorisques : www.georisques.gouv.fr


  • 7 pièces
  • 240,38 m²
  • 2 salles de bains
  • Exposition Sud
  • 6 chambres
  • Parking
  • Terrasse
  • Calme

284 kWhEP/m².an
E
60 kgepCO2/m².an
E

Prix : 399 000 €


  • Année de construction : 1948
  • Transport / Station
  • Cheminée
Demeure de 240,38 m² - a.png Demeure de 240,38 m² - devant.JPG
Demeure de 240,38 m² - X.png
LAURENT JOUARY
LAURENT JOUARY
EST Parisien -
14 biens en vente

Autres biens qui pourraient vous plaîre

  • CAMILLE KRAFT WOIRRET - FrqulJTj7jbH26pUFeZbOc
    77130 Montereau-Fault-Yonne
    • 6 pièces
    • 130 m²
    • 4 chambres
  • DAVID JAKSIC - dauphin_44
    77130 Montereau-Fault-Yonne
    • 4 pièces
    • 64,25 m²
    • 3 chambres
  • VANESSA LOURENÇO - 240319111653_photo_en_situation_professionnelle
    77130 Montereau-Fault-Yonne
    • 2 pièces
    • 54,23 m²
    • 1 chambre
  • THIERRY CHEVALIER - 6jFtA8jQsNLq278REkJb1x
    77130 Montereau-Fault-Yonne
    • 6 pièces
    • 115 m²
    • 4 chambres
    • 300 m² de terrain