SANDRINE ZIDANI
Appeler Email

Maison de 92 m² à Montivilliers

243 000 €
76290 Montivilliers
Ref. 303383

***MONTIVILLIERS***
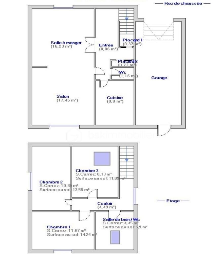
Maison de 5 pièces de 92m² à proximité des transports dans un quartier calme et résidentiel
En rez de chaussée, vous disposerez d'une entrée avec placards donnant accès au GARAGE, une cuisine aménagée et équipée et un séjour- salon de 34m² avec poêle et accès à la terrasse et au JARDIN ; ainsi qu'un wc.
A l'étage, 3 chambres et une belle salle de douches avec wc.
Pour tous renseignements complémentaires, contactez moi
Sandrine ZIDANI 06 02 07 00 37
Cette annonce référence 303383 vous est présentée par votre agent commercial BSK Immobilier SANDRINE ZIDANI (EI) immatriculé au RSAC de LE HAVRE (76600) sous le numéro 50855550500025.

Prix du bien : 243 000,00 €
Prix du bien hors honoraires : 235 000,00 €
Honoraires TTC : 3,40 %
Les honoraires d'agence sont à la charge de l'acquéreur.

A propos des performances énergétiques :
Date de réalisation du diagnostic énergétique : 11/09/2025
Score DPE : 299 kWhEP/m²/an
Score GES : 9 kgepCO2/m²/an
Montant estimé des dépenses annuelles d'énergie pour un usage standard : entre 2150.00 € et 2950.00 € par an. Prix moyens des énergies indexés sur l'année 2021 (abonnements compris).

Les informations sur les risques auxquels ce bien est exposé sont disponibles sur le site Géorisques : www.georisques.gouv.fr


  • 5 pièces
  • 92 m²
  • 3 chambres
  • Garage
  • Parking
  • Terrasse
  • Calme
  • De plain-pied

299 kWhEP/m².an
E
9 kgepCO2/m².an
B

Prix : 243 000 €


  • Année de construction : 1980
Maison de 92 m² - 20250915_142403.jpg Maison de 92 m² - 20250915_142441.jpg
Maison de 92 m² - 20250915_142611.jpg
SANDRINE ZIDANI
SANDRINE ZIDANI
17 biens en vente

Autres biens qui pourraient vous plaîre

  • SABRINA DIALLO - diallo_sabrina
    76290 Montivilliers
    • 6 pièces
    • 130,33 m²
    • 4 chambres
    • 740 m² de terrain
  • ENZO FERRO - blNPjGpIceo0pEdh8Db3Be
    76290 Montivilliers
  • VIRGINIE DONNET - 240402031058_photo_en_situation_professionnelle
    76290 Montivilliers
    • 7 pièces
    • 175 m²
    • 5 chambres
    • 630 m² de terrain
  • JULIE BERTOLUCCI - bertolucci_julie
    76290 Montivilliers
    • 7 pièces
    • 160 m²
    • 5 chambres