CHARLES GLOCKNER
Appeler Email

Appartement de 85 m² à Montpellier

299 000 €
34070 Montpellier
Ref. 313193

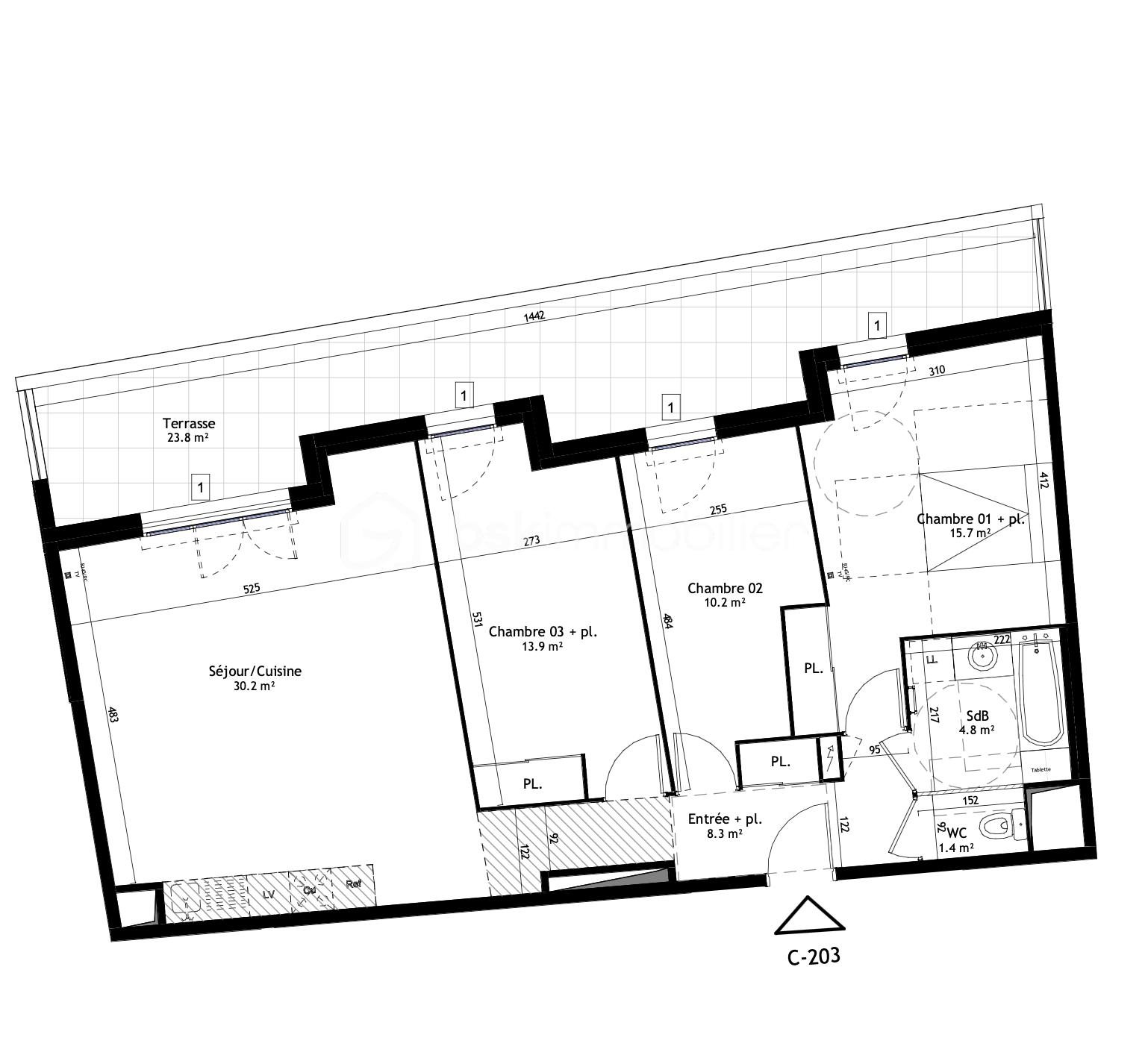
Situé dans le quartier de Prés d’Arènes, cet appartement avec terrasse et parking T4 de 85 m² prend place au sein d’une résidence neuve de standing signée Helenis.

L’appartement séduit par ses volumes généreux, un environnement lumineux et un agencement fonctionnel.
Le séjour cuisine s’ouvre sur une terrasse traversante de 24 m² orienté ouest, avec trois chambre ou la possibilité d’en faire un bureau, une salle de bain et WC séparés ainsi que de nombreux placards.

Construit avec des prestations de qualité, l’immeuble offre un cadre de vie moderne et sécurisé. Vous disposerez en effet d’une des parties communes soignées, d’une place de stationnement privative en sous-sol, accessible par ascenseur ainsi que d’un local poubelle

A quelques mètres du tramway et des commerces, ce bien rare allie qualité de vie et qualité de construction
Cette annonce référence 313193 vous est présentée par votre agent commercial BSK Immobilier CHARLES GLOCKNER (EI) immatriculé au RSAC de MONTPELLIER (34000) sous le numéro 93404785300015.

Prix du bien : 299 000,00 €
Les honoraires d'agence sont à la charge du vendeur.

A propos de la copropriété :
Pas de procédure en cours.
Nombre de lots : 159
Charges prévisionnelles annuelles : 1 800,00 €

A propos des performances énergétiques :
Date de réalisation du diagnostic énergétique : 06/12/2024
Score DPE : 39 kWhEP/m²/an
Score GES : 1 kgepCO2/m²/an
Montant estimé des dépenses annuelles d'énergie pour un usage standard : entre 397.00 € et 538.00 € par an. Prix moyens des énergies indexés sur l'année 2022 (abonnements compris).

Les informations sur les risques auxquels ce bien est exposé sont disponibles sur le site Géorisques : www.georisques.gouv.fr


  • 4 pièces
  • 85 m²
  • 3 chambres
  • Parking
  • Terrasse
  • Refait à neuf

39 kWhEP/m².an
A
1 kgepCO2/m².an
A

Prix : 299 000 €
Quote-part : 1 800 €


  • Année de construction : 2024
  • Accès handicapés
Appartement de 85 m² - Salon.png Appartement de 85 m² - Chambre 1.png
Appartement de 85 m² - Salon été.jpg
CHARLES GLOCKNER
CHARLES GLOCKNER
2 biens en vente

Autres biens qui pourraient vous plaîre

  • DOMINIQUE CAILLE - 240404030010_photo_en_situation_professionnelle
    34070 Montpellier
    • 4 pièces
    • 91 m²
    • 3 chambres
  • JONATHAN DENIAU - dauphin_23
    34000 Montpellier
    • 3 pièces
    • 62 m²
    • 2 chambres
  • FLORENCE DELPECH - sam_1414_2
    34070 Montpellier
    • 4 pièces
    • 67,32 m²
    • 2 chambres
  • KÉVIN LARCHER - 1
    34070 Montpellier
    • 3 pièces
    • 70 m²
    • 2 chambres
    • 440 m² de terrain