Cet appartement spacieux et lumineux se déploie sur deux étages(aucune mansarde);il saura vous charmer par son originalité.
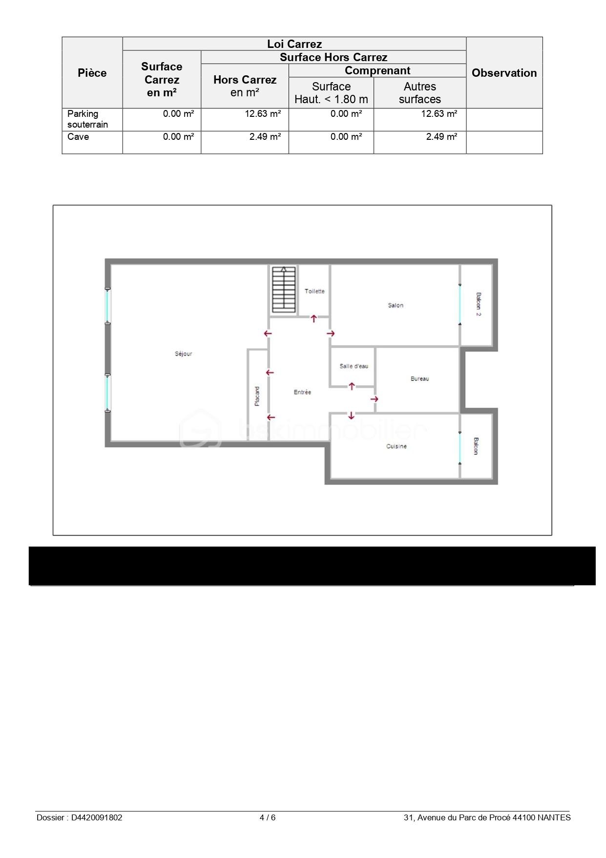
Traversant, son premier niveau est composé d'un hall d'entrée avec placards, d'une cuisine, de deux chambres, d'une salle d'eau avec wc et d'un wc indépendant.
Le salon séjour spacieux s'ouvre sur une grande terrasse et sur le jardin où vous pourrez admirer de grands arbres( aucun vis à vis)
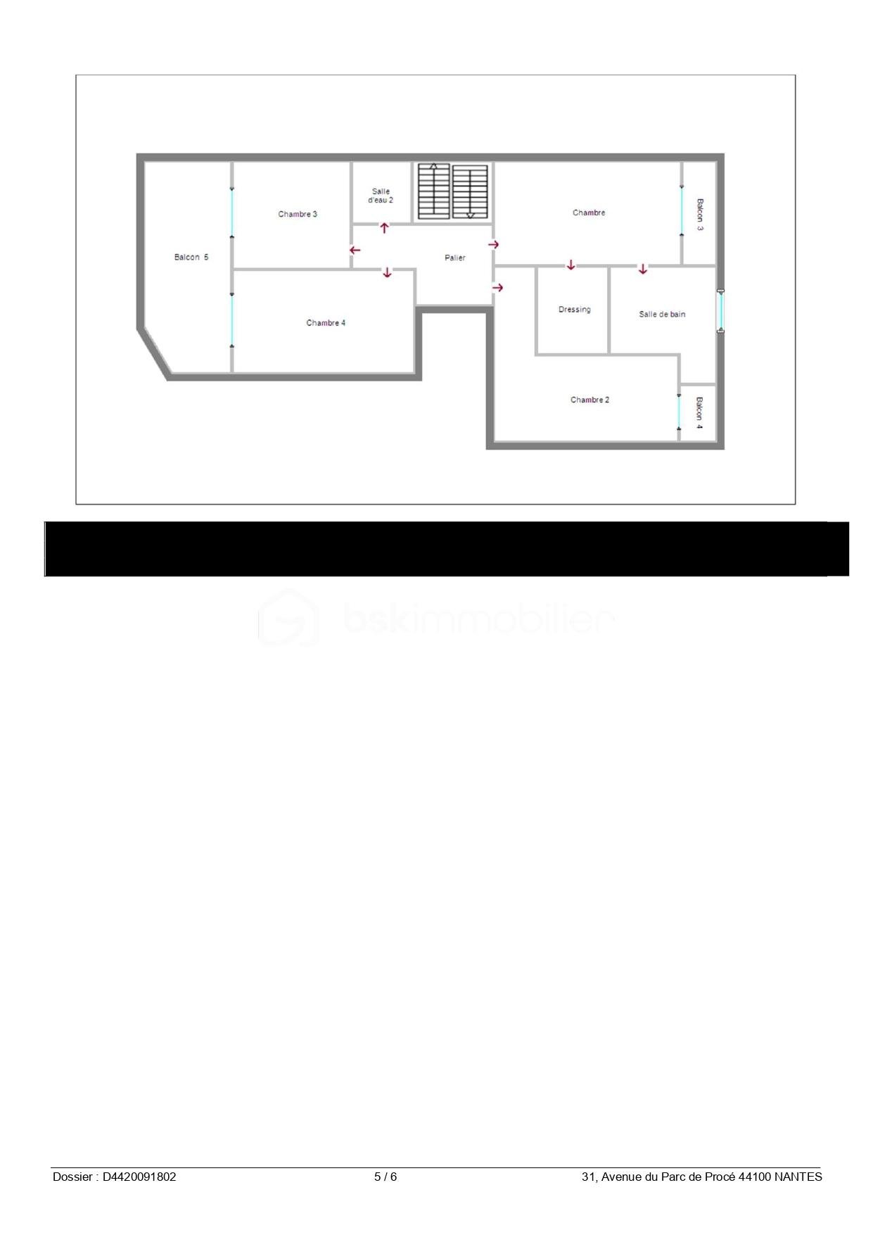
Par l'escalier vous accéderez à l'étage où vous découvrirez 3 chambres, une salle d'eau plus une suite parentale avec dressing et salle de bain.
Atypique avec une passerelle surplombant l'entrée, cet appartement attend son décorateur où sa décoratrice pour une remise au gout du jour.
Cet appartement est idéal pour une vie de famille, l'espace nuit et l'espace jour bien distincts offriront à chacun un cocon agréable.
Situé près du parc de Procé, vous aimerez l'environnement calme et verdoyant tout en étant proche du centre ville. Le quartier Procé est calme, chic et résidentiel.
Une cave et une place de parking en sous sol(possibilité d'une deuxième en sus) complètent ce bien.
Pour les commodités, une ligne de bus dessert Nantes centre.
De très bonnes écoles, collèges et lycées parmi les plus réputés de Nantes sont à deux pas.
Contactez moi pour venir découvrir ce bien a fort potentiel et laissez vous séduire par cet appartement unique.
Certaines photos ont été générées avec l'IA pour une suggestion de décoration.
Cette annonce référence 307280 vous est présentée par votre agent commercial BSK Immobilier MARIE-CLAUDE TENDERO (EI) immatriculé au RSAC de LA ROCHE-SUR-YON (85000) sous le numéro 85032433600021.
Prix du bien : 542 500,00 €
Prix du bien hors honoraires : 520 000,00 €
Honoraires TTC : 4,33 %
Les honoraires d'agence sont à la charge de l'acquéreur.
A propos de la copropriété :
Pas de procédure en cours.
Nombre de lots : 31
Charges prévisionnelles annuelles : 3 265,00 €
A propos des performances énergétiques :
Date de réalisation du diagnostic énergétique : 18/09/2020
Score DPE : 108 kWhEP/m²/an
Score GES : 25 kgepCO2/m²/an
Les informations sur les risques auxquels ce bien est exposé sont disponibles sur le site Géorisques : www.georisques.gouv.fr