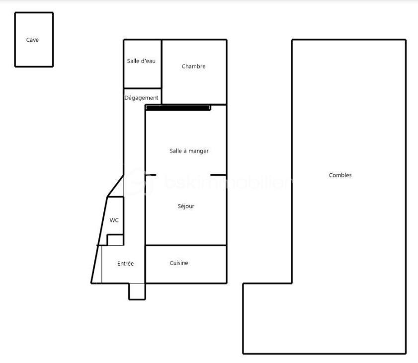
Découvrez ce spacieux appartement de 81 m²environ, situé au dernier étage d’un immeuble de 3 étages, offrant un POTENTIEL EXCEPTIONNEL d’aménagement.
Dès l’entrée, vous trouverez un placard intégré ainsi que des toilettes indépendants, avec la possibilité de les transformer en salle d'eau complète.
L'appartement se compose également d'une cuisine séparée et d'un double séjour lumineux. Ce dernier peut facilement être réagencé pour créer une chambre supplémentaire selon vos besoins.
Un long couloir mène à l’espace nuit, composé d'une chambre spacieuse, d'une grande salle d’eau avec la possibilité de la transformer en 3ème chambre.
Le véritable atout de cet appartement réside dans ses combles de 100 m² au sol et mansardé (non comptabilisés dans la surface habitable), offrant de nombreuses possibilités d’aménagement : espaces de rangement, de stockage ou de salle de jeux.
Une cave complète ce bien.
Travaux à prévoir, offrant l’opportunité de façonner cet espace selon votre goût et vos besoins.
Très faibles charges de 135€.
(1ère photo non contractuelle)
Pour plus d'informations ou une visite ? Je suis disponible 7j/7 au 06.52.05.15.94
Cette annonce référence 324832 vous est présentée par votre agent commercial BSK Immobilier BARIZA BOUDISSA (EI) immatriculé au RSAC de BOBIGNY (93000) sous le numéro 90143555200012.
Prix du bien : 212 000,00 €
Les honoraires d'agence sont à la charge du vendeur.
A propos de la copropriété :
Pas de procédure en cours.
Nombre de lots : 8
Charges prévisionnelles annuelles : 1 620,00 €
A propos des performances énergétiques :
Date de réalisation du diagnostic énergétique : 10/11/2022
Score DPE : 512 kWhEP/m²/an
Score GES : 112 kgepCO2/m²/an
Montant estimé des dépenses annuelles d'énergie pour un usage standard : entre 2520.00 € et 3470.00 € par an. Prix moyens des énergies indexés sur l'année 2021 (abonnements compris).
Les informations sur les risques auxquels ce bien est exposé sont disponibles sur le site Géorisques : www.georisques.gouv.fr