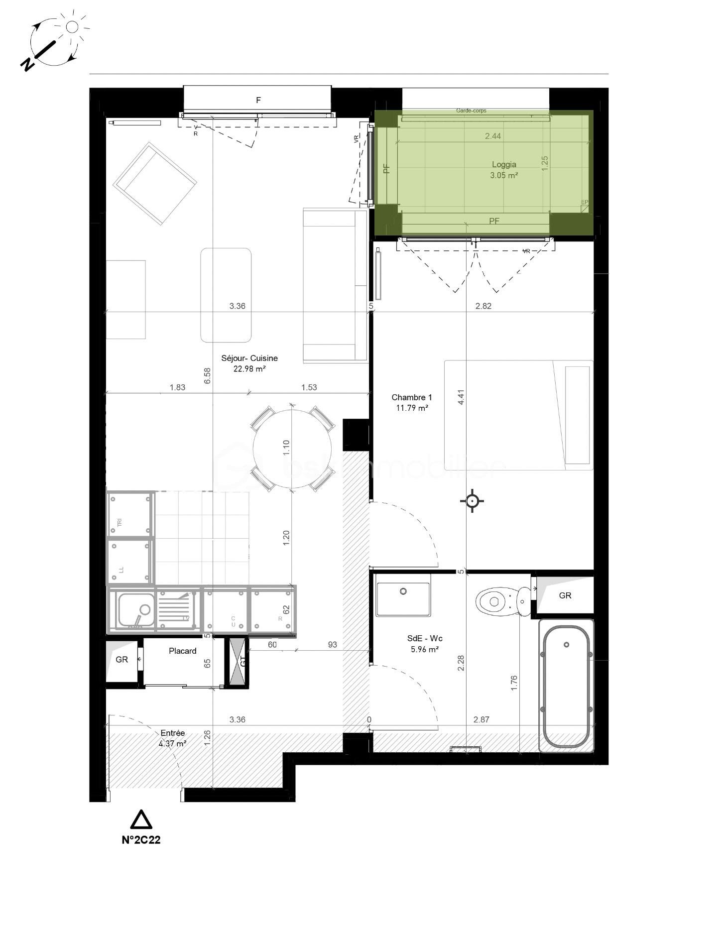
Au 2ième étage sur 5 d’une résidence récente Woodeum (2021), reconnue pour ses constructions en bois à haute performance environnementale, ce 2 pièces de 45 m² offre un cadre de vie à la fois moderne, confortable et durable.
L’appartement, en état comme neuf, s’organise autour d’une belle pièce de vie de 23 m² avec une jolie cuisine ouverte toute équipée.
Lumineuse et bien agencée, elle s’ouvre sur une loggia de 3 m² orientée Sud-Est, avec vue sur un jardin.
La distribution est optimisée : chambre confortable de 12 m2, salle de bain avec baignoire, entrée avec placards, double vitrage.
* Confort & performance
* Construction bois Woodeum (2021) – conception écologique et durable
* DPE B et A
* Eau chaude collective par pompe à chaleur
* Chauffage électrique
* Normes PMR
* Ascenseur, local vélo
* Résidence récente et bien entretenue
Localisation
À 500 m du métro Fort d’Aubervilliers (ligne 7) et de la future ligne 15 du Grand Paris, du théatre Zingaro.
Commerces et services à proximité.
Un bien clé en main, idéal pour une première acquisition ou un investissement dans un secteur en pleine évolution.
Cette annonce référence 322374 vous est présentée par votre agent commercial BSK Immobilier Jocelyne PRINCET (EI) immatriculé au RSAC de NANTERRE (92000) sous le numéro 44201255500029.
Prix du bien : 270 000,00 €
Les honoraires d'agence sont à la charge du vendeur.
A propos de la copropriété :
Pas de procédure en cours.
Nombre de lots : 98
Charges prévisionnelles annuelles : 1 200,00 €
A propos des performances énergétiques :
Date de réalisation du diagnostic énergétique : 06/02/2026
Score DPE : 101 kWhEP/m²/an
Score GES : 3 kgepCO2/m²/an
Montant estimé des dépenses annuelles d'énergie pour un usage standard : entre 490.00 € et 710.00 € par an. Prix moyens des énergies indexés sur l'année 2026 (abonnements compris).
Les informations sur les risques auxquels ce bien est exposé sont disponibles sur le site Géorisques : www.georisques.gouv.fr