Local professionnel – environ 40 m² – (Ergué-Gabéric)
SOUS OFFRE ACCEPTEE
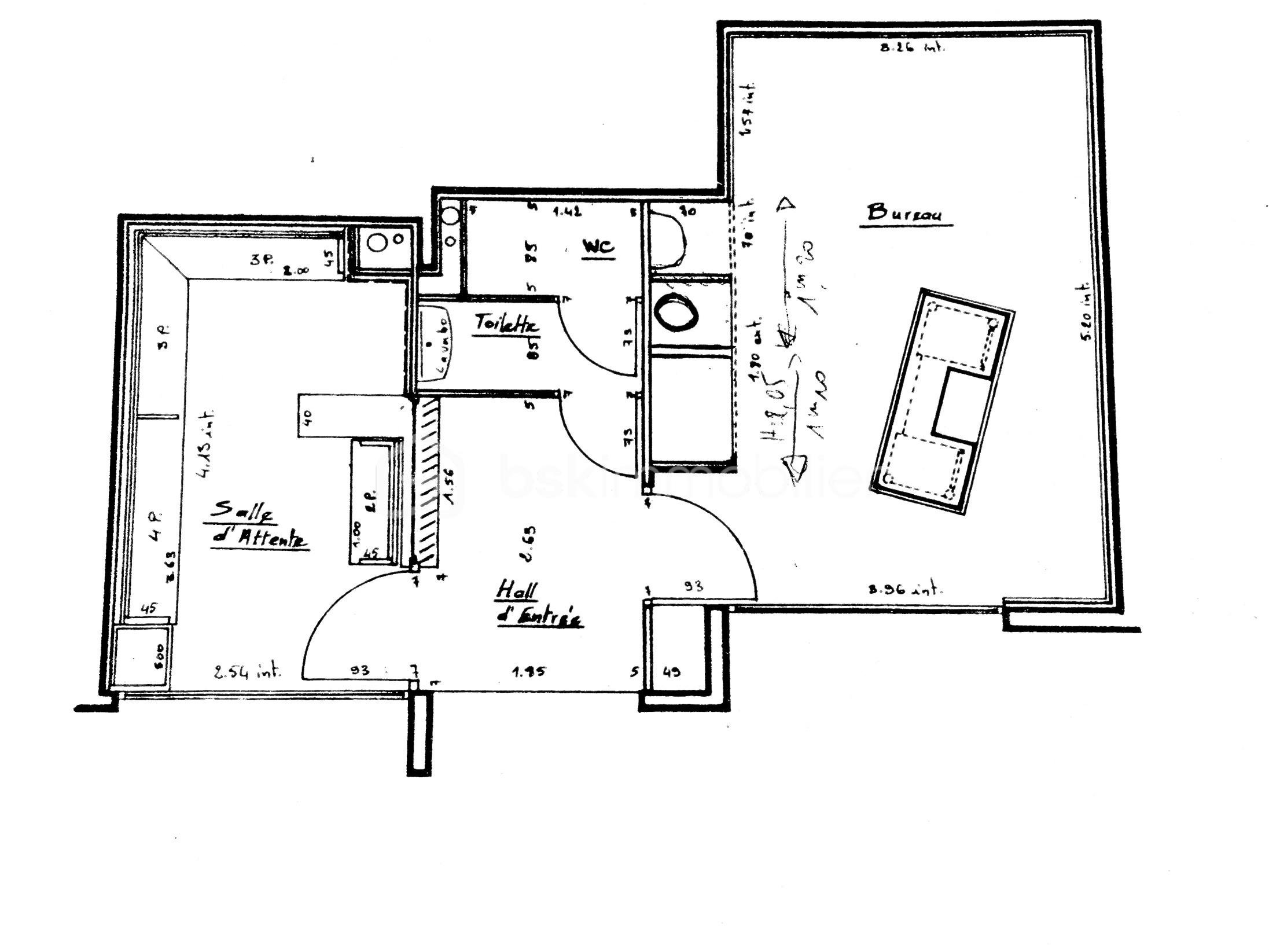
Au rez-de-chaussée d’un immeuble entretenu, ce local professionnel d’environ 40 m² bénéficie d’un positionnement particulièrement stratégique.
L’axe principal voisin enregistre entre 15 000 et 18 000 véhicules par jour, garantissant un flux naturel de clientèle.
À proximité immédiate de la RN165, l’emplacement est idéal pour une activité nécessitant une facilité d’accès.
La configuration interne est claire et opérationnelle : espace d’accueil, salle d’attente indépendante, sanitaires, ainsi qu’un grand bureau lumineux équipé d’un point d’eau. Le local est propre, fonctionnel et immédiatement exploitable.
Le secteur offre un équilibre intéressant : environnement calme côté bâtiment, mais proximité directe des axes majeurs et des services.
Un cadre de travail agréable, avec un parking gratuit à quelques mètres seulement.
Atouts :
- Trafic important : 15 000 à 18 000 véhicules/jour
- Accès RN165
- Local de plain-pied, facile d’accès et aux normes PMR
- Parking immédiat et gratuit
- Bureau lumineux avec point d’eau
- Accueil + salle d’attente + sanitaires
- Ensemble propre et prêt à l’emploi
- Secteur professionnel dynamique et recherché
Un emplacement solide et performant, idéal pour une installation rapide dans un cadre visible, pratique et durable.
- - - Visite uniquement sur rendez-vous - - -
Contact : Gino DUPUY - BSK Immobilier
_________________________________________________
ACCOMPAGNEMENT SUR MESURE A L' ACHAT
Contactez-moi avant votre prochaine visite pour un accompagnement global et sans frais supplémentaires.
VENTE IMMOBILIÈRE – QUIMPER & Alentours
Échangeons sur votre projet, sans engagement, pour définir la meilleure stratégie de vente.
APPORTEURS D'AFFAIRES
Vous connaissez quelqu'un qui souhaite vendre ou acheter ?
Un simple message suffit pour initier un contact, je m'occupe du reste. Rémunération attractive.
COLLABORATION INTERCABINET
Discutons volontiers d'un partage de mandat ou d'un acheteur en recherche.
_________________________________________________
Honoraires charge vendeur : aucun frais d'agence pour vous.
Le prix affiché est votre prix final hors frais de notaire.
Cette annonce référence 317287 vous est présentée par votre agent commercial BSK Immobilier GINO DUPUY (EI) immatriculé au RSAC de QUIMPER (29000) sous le numéro 92500926800010.
Prix du bien : 69 900,00 €
Les honoraires d'agence sont à la charge du vendeur.
A propos des performances énergétiques :
Date de réalisation du diagnostic énergétique : 30/10/2025
Score DPE : 114 kWhEP/m²/an
Score GES : 3 kgepCO2/m²/an
Montant estimé des dépenses annuelles d'énergie pour un usage standard : entre 700.00 € et 960.00 € par an. Prix moyens des énergies indexés sur l'année 2025 (abonnements compris).
Les informations sur les risques auxquels ce bien est exposé sont disponibles sur le site Géorisques : www.georisques.gouv.fr