BSK Immobilier
BSK Immobilier
BSK Immobilier
CHRISTOPHER BADETS
Appeler Email

Maison de 96 m² à Quincy-Sous-Senart

254 000 €
91480 Quincy-Sous-Senart
Ref. 322832

🏡 À 5 minutes à pied de la gare de Boussy-Saint-Antoine !

Idéalement située à deux pas de la gare de Gare de Boussy-Saint-Antoine, cette maison 5 pièces parfaitement entretenue vous séduira par son agencement fonctionnel et son environnement pratique au quotidien.

Au rez-de-chaussée :

✨ Une entrée accueillante
✨ Un séjour lumineux avec accès direct à la véranda
✨ Accès jardin depuis la véranda, idéal pour profiter des beaux jours
✨ Une cuisine indépendante
✨ WC séparés
✨ Chaufferie / buanderie avec lavabo

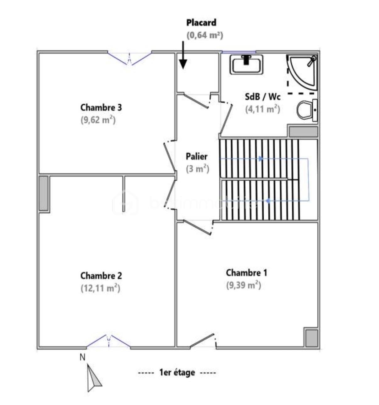
À l’étage :

🛏️ Trois chambres confortables

🚿 Une salle d’eau avec WC

🚗 Un garage complète ce bien.

Maison soignée, idéale pour une famille recherchant le confort, la proximité des transports et un cadre de vie agréable.

📍 Situation privilégiée, à proximité immédiate des commodités et des axes principaux. visites 7/7
Cette annonce référence 322832 vous est présentée par votre agent commercial BSK Immobilier CHRISTOPHER BADETS (EI) immatriculé au RSAC de MELUN (77000) sous le numéro 89075944200019.

Prix du bien : 254 000,00 €
Les honoraires d'agence sont à la charge du vendeur.

A propos des performances énergétiques :
Date de réalisation du diagnostic énergétique : 26/02/2026
Score DPE : 201 kWhEP/m²/an
Score GES : 44 kgepCO2/m²/an
Montant estimé des dépenses annuelles d'énergie pour un usage standard : entre 1760.00 € et 2420.00 € par an. Prix moyens des énergies indexés sur l'année 2023 (abonnements compris).

Les informations sur les risques auxquels ce bien est exposé sont disponibles sur le site Géorisques : www.georisques.gouv.fr


  • 5 pièces
  • 96 m²
  • 3 chambres
  • Terrasse

201 kWhEP/m².an
D
44 kgepCO2/m².an
D

Prix : 254 000 €


  • Année de construction : 1967
1e42f5bc-aca0-4fe3-995a-2676acb7c6a0.jpg 7b01e5b2-b0e9-4293-927c-379c675219a4.jpg
481a0a9b-d541-4795-942c-a733ff9be093.jpg
CHRISTOPHER BADETS
CHRISTOPHER BADETS
26 biens en vente

Autres biens qui pourraient vous plaîre

  • QUENTIN PÊCHEUR - 240703124226_photo_en_situation_professionnelle
    91480 Quincy-Sous-Senart
    • 4 pièces
    • 74 m²
    • 2 chambres
  • ALEXANDRE MATHIEU - mathieu
    91480 Quincy-Sous-Senart
    • 4 pièces
    • 91 m²
    • 3 chambres
    • 83 m² de terrain
  • MICKAEL LACROIX - lacroix_mickael
    91480 Quincy-Sous-Senart
    • 2 pièces
    • 41,38 m²
    • 1 chambre
  • FABIEN VIGNON - vignon_fabien
    91480 Quincy-Sous-Senart
    • 405 m²