BSK Immobilier
BSK Immobilier
BSK Immobilier
PRISCILLA ROLLOT
Appeler Email

Appartement de 62 m² à Royan

215 000 €
17200 Royan
Ref. 314605

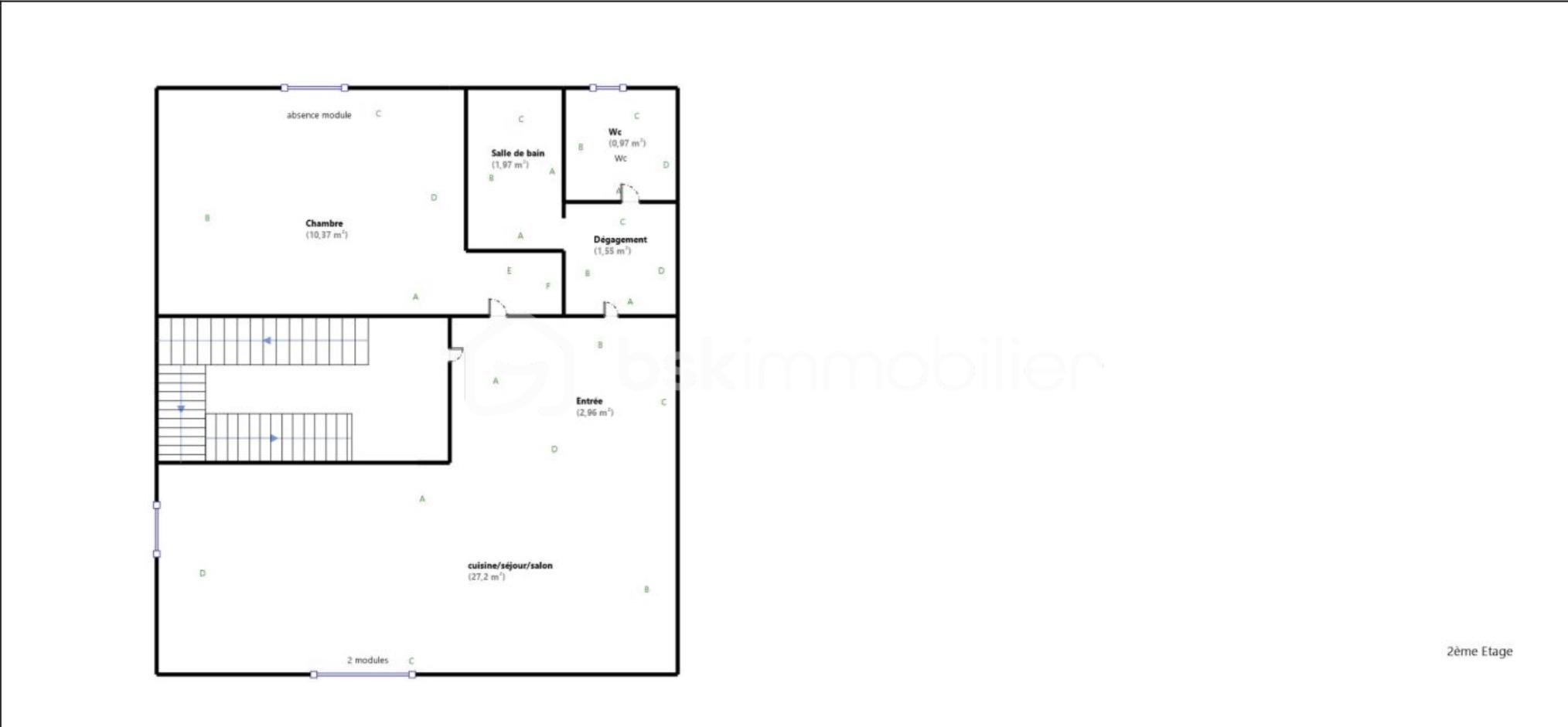
Nous avons le plaisir de vous présenter ce superbe appartement de 62 m² idéalement situé au cœur de Royan ! Niché dans une résidence sécurisée et parfaitement entretenue, ce bien saura vous séduire par ses nombreux atouts.

🏠 Un espace de vie pensé pour votre confort
L’appartement vous offre :
• Un salon lumineux avec accès direct à un balcon, parfait pour vos moments de détente.
• Deux chambres de 15 et 10m², dont l'une d'entre elle bénéficie d’un accès balcon privatif.
• Une cuisine aménagée et chaleureuse.
• Une buanderie idéale pour un petit coin rangement.
• Une salle de bain fonctionnelle ainsi que des toilettes séparés.

🎁 Des plus qui font la différence !
Ce bien se distingue par ses équipements particulièrement appréciés :
• Un garage privé de 17 m², véritable atout pour stationner en toute sérénité
• Une cave de 3 m² offrant un espace de rangement supplémentaire toujours bienvenu
• Ce bien se situe au coeur d'une résidence sécurisée avec portail et digicode pour votre tranquillité d’esprit

📍 Un emplacement EXCEPTIONNEL !
Tout à portée de main ! Commerces, services, transports… Vous apprécierez la proximité immédiate de toutes les commodités qui facilitent votre quotidien. La localisation idéale pour profiter pleinement de la vie royannaise !

N'hésitez pas à nous contacter pour tout renseignement ou organiser une visite !
Cette annonce référence 314605 vous est présentée par votre agent commercial BSK Immobilier PRISCILLA ROLLOT (EI) immatriculé au RSAC de SAINTES (17100) sous le numéro 98434892000013.

Prix du bien : 215 000,00 €
Les honoraires d'agence sont à la charge du vendeur.

A propos des performances énergétiques :
Date de réalisation du diagnostic énergétique : 28/02/2025
Score DPE : 222 kWhEP/m²/an
Score GES : 7 kgepCO2/m²/an
Montant estimé des dépenses annuelles d'énergie pour un usage standard : entre 1109.00 € et 1501.00 € par an. Prix moyens des énergies indexés sur l'année 2021 (abonnements compris).

Les informations sur les risques auxquels ce bien est exposé sont disponibles sur le site Géorisques : www.georisques.gouv.fr


  • 3 pièces
  • 62 m²
  • 2 chambres
  • Parking

222 kWhEP/m².an
D
7 kgepCO2/m².an
B

Prix : 215 000 €


  • Année de construction : 1977
tempImageYkOAe4.png tempImageZbZxqL.png
IMG_5786.jpeg
PRISCILLA ROLLOT
PRISCILLA ROLLOT
3 biens en vente

Autres biens qui pourraient vous plaîre

  • JULIEN DELETRE - 240719113945_photo_en_situation_professionnelle
    17200 Royan
    • 2 pièces
    • 45,02 m²
    • 1 chambre
  • JULIEN DELETRE - 240719113945_photo_en_situation_professionnelle
    17200 Royan
    • 2 pièces
    • 46,60 m²
    • 1 chambre
  • JULIEN DELETRE - 240719113945_photo_en_situation_professionnelle
    17200 Royan
    • 3 pièces
    • 59 m²
    • 2 chambres
  • CÉCILE PELAUD - 250102043052_photo_en_situation_professionnelle
    17200 Royan
    • 3 pièces
    • 69 m²
    • 2 chambres