LAURENT JACQUET
Appeler Email

Maison de 170 m² à Sailly-Flibeaucourt

166 900 €
80970 Sailly-Flibeaucourt
Ref. 307395

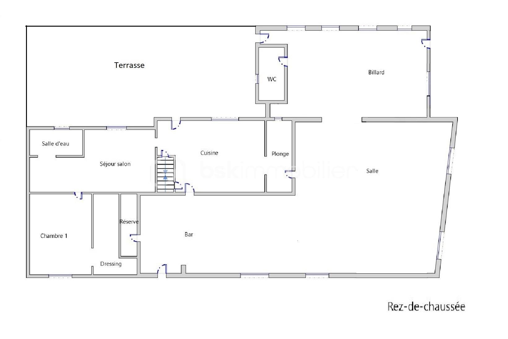
Laurent Jacquet (06.86.41.88.12) propose à la vente une maison atypique (ancien café) dans l’arrière-pays de la Baie de Somme, à 15 minutes d’Abbeville, à 6 km de la gare de Noyelles-sur-Mer et à 10 minutes des accès autoroutiers A16/A28

Elle se compose :

- Un espace bar/ salle avec cheminée insert à bois, salle de billard, cuisine, réserve, plonge, WC PMR

- Un salon, une chambre avec dressing, 1 salle de douches avec WC

- A l’étage un palier desservant une deuxième chambre et un grand grenier aménageable.

Cette habitation dispose également d’une cave, de dépendances, garage et atelier, Cour à l’avant avec terrasse et à l’arrière, mais pas de jardin

Confort assuré avec un chauffage par insert bois et radiateurs électriques, huisseries PVC double vitrage et volets roulants électriques. Le tout sur une parcelle de 421 m².
Cette annonce référence 307395 vous est présentée par votre agent commercial BSK Immobilier LAURENT JACQUET (EI) immatriculé au RSAC de AMIENS (80000) sous le numéro 95248501900014.

Prix du bien : 166 900,00 €
Les honoraires d'agence sont à la charge du vendeur.

A propos des performances énergétiques :
Date de réalisation du diagnostic énergétique : 26/07/2021
Score DPE : 305 kWhEP/m²/an
Score GES : 9 kgepCO2/m²/an
Montant estimé des dépenses annuelles d'énergie pour un usage standard : entre 1050.00 € et 1490.00 € par an. Prix moyens des énergies indexés sur l'année 2022 (abonnements compris).

Les informations sur les risques auxquels ce bien est exposé sont disponibles sur le site Géorisques : www.georisques.gouv.fr


  • 6 pièces
  • 170 m²
  • 6 chambres

305 kWhEP/m².an
E
9 kgepCO2/m².an
B

Prix : 166 900 €


  • Année de construction : 1940
Maison de 170 m² - 20251002_160122.jpg Maison de 170 m² - 20251002_160155.jpg
Maison de 170 m² - 20251002_160327.jpg
LAURENT JACQUET
LAURENT JACQUET
26 biens en vente

Autres biens qui pourraient vous plaîre

  • 80860 Ponthoile
    • 4 pièces
    • 103,40 m²
    • 3 chambres
    • 1 214 m² de terrain
  • 80132 Drucat
    • 5 pièces
    • 115 m²
    • 4 chambres
    • 6 612 m² de terrain
  • 80132 Cambron
    • 1 000 m²
  • MATHIEU LEFEBVRE - Photos mandataires (18)
    80100 Abbeville
    • 5 pièces
    • 100 m²