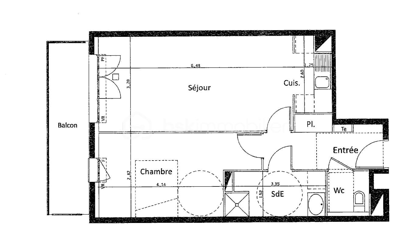
Proche du centre-ville situé dans la Résidence LES JARDINS D'OPALE, venez découvrir cet appartement de 2014. Il est composé d'une entrée avec placard, une salle d'eau, un WC indépendant, une belle chambre de 13m² environ, un séjour avec cuisine de 23m² environ donnant sur un balcon de près de 9m² exposé SUD.
Une place de parking en sous-sol vient compléter le bien.
Chauffage et eau chaude comprises dans les charges (tantièmes)
Sa localisation idéale vous permet d'accéder à la gare de Sarcelles- Saint Brice en 7 minutes à pied.
Cette annonce référence 329416 vous est présentée par votre agent commercial BSK Immobilier ROSAYA CAZAU (EI) immatriculé au RSAC de NANTEUIL-LES-MEAUX (77100) sous le numéro 88392779000013.
Prix du bien : 185 000,00 €
Les honoraires d'agence sont à la charge du vendeur.
A propos de la copropriété :
Pas de procédure en cours.
Nombre de lots : 2
Charges prévisionnelles annuelles : 2 240,00 €
A propos des performances énergétiques :
Date de réalisation du diagnostic énergétique : 04/02/2026
Score DPE : 88 kWhEP/m²/an
Score GES : 17 kgepCO2/m²/an
Montant estimé des dépenses annuelles d'énergie pour un usage standard : entre 350.00 € et 530.00 € par an. Prix moyens des énergies indexés sur l'année 2023 (abonnements compris).
Les informations sur les risques auxquels ce bien est exposé sont disponibles sur le site Géorisques : www.georisques.gouv.fr