GÉRALD GUILLAUD
Appeler Email

Immeuble de 210 m² à Saint-Bueil

115 000 €
38620 Saint-Bueil
Ref. 308670

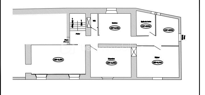
SAINT BUEIL, À VENDRE UN IMMEUBLE, À RÉNOVER ENTIÈREMENT, AU CENTRE DE SAINT BUEIL. UN PROJET DE 3 APPARTEMENTS AVAIT ÉTÉ ENVISAGÉ ( PLANS CI JOINTS ) UN COMPTEUR ÉLECTRIQUE ÉTAIT PRÉSENT AINSI QU'UN COMPTEUR D' EAU MAIS IL Y A DE NOMBREUSES ANNÉES, PAR CONTRE LE BÂTIMENT N' EST PAS RACCORDÉ AU TOUT À L' ÉGOUT, À PRÉVOIR. IDÉAL POUR UN INVESTISSEUR OU AUTRE
Cette annonce référence 308670 vous est présentée par votre agent commercial BSK Immobilier GÉRALD GUILLAUD (EI) immatriculé au RSAC de VIENNE (38200) sous le numéro 39172014100020.

Prix du bien : 115 000,00 €
Les honoraires d'agence sont à la charge du vendeur.

Les informations sur les risques auxquels ce bien est exposé sont disponibles sur le site Géorisques : www.georisques.gouv.fr


  • 9 pièces
  • 210 m²

Prix : 115 000 €


Immeuble de 210 m² - Screenshot_20250724-203616~2.png Immeuble de 210 m² - Screenshot_20250724-202040~2.png
Immeuble de 210 m² - Screenshot_20250724-203623~2.png
GÉRALD GUILLAUD
GÉRALD GUILLAUD
16 biens en vente

Autres biens qui pourraient vous plaîre

  • 38620 Saint-Geoire-En-Valdaine
    • 4 pièces
    • 90 m²
    • 3 chambres
    • 956 m² de terrain
  • CEDRIC CANNILLO - Photo_reseau_BSK
    38620 Saint-Geoire-En-Valdaine
    • 17 pièces
    • 300 m²
    • 10 chambres
  • 38620 Saint-Geoire-En-Valdaine
    • 956 m²
  • ANAËL GÉRIN - ZpND0zEoZr1vLNnaQhoM7m
    73520 Saint-Beron
    • 862 m²