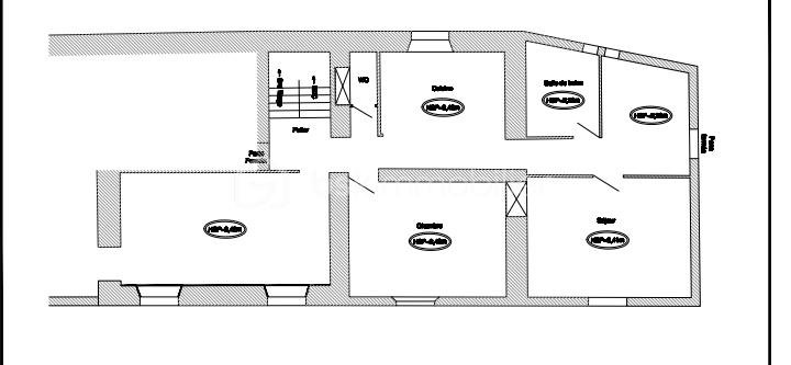
SAINT BUEIL, À VENDRE UN IMMEUBLE, À RÉNOVER ENTIÈREMENT, AU CENTRE DE SAINT BUEIL. UN PROJET DE 3 APPARTEMENTS AVAIT ÉTÉ ENVISAGÉ ( PLANS CI JOINTS ) UN COMPTEUR ÉLECTRIQUE ÉTAIT PRÉSENT AINSI QU'UN COMPTEUR D' EAU MAIS IL Y A DE NOMBREUSES ANNÉES, PAR CONTRE LE BÂTIMENT N' EST PAS RACCORDÉ AU TOUT À L' ÉGOUT, À PRÉVOIR. IDÉAL POUR UN INVESTISSEUR OU AUTRE
Cette annonce référence 312414 vous est présentée par votre agent commercial BSK Immobilier GÉRALD GUILLAUD (EI) immatriculé au RSAC de VIENNE (38200) sous le numéro 39172014100020.
Prix du bien : 108 000,00 €
Les honoraires d'agence sont à la charge du vendeur.
Les informations sur les risques auxquels ce bien est exposé sont disponibles sur le site Géorisques : www.georisques.gouv.fr