Appartement de style bourgeois avec moulures en staff, cheminées décoratives et parquet -79m2
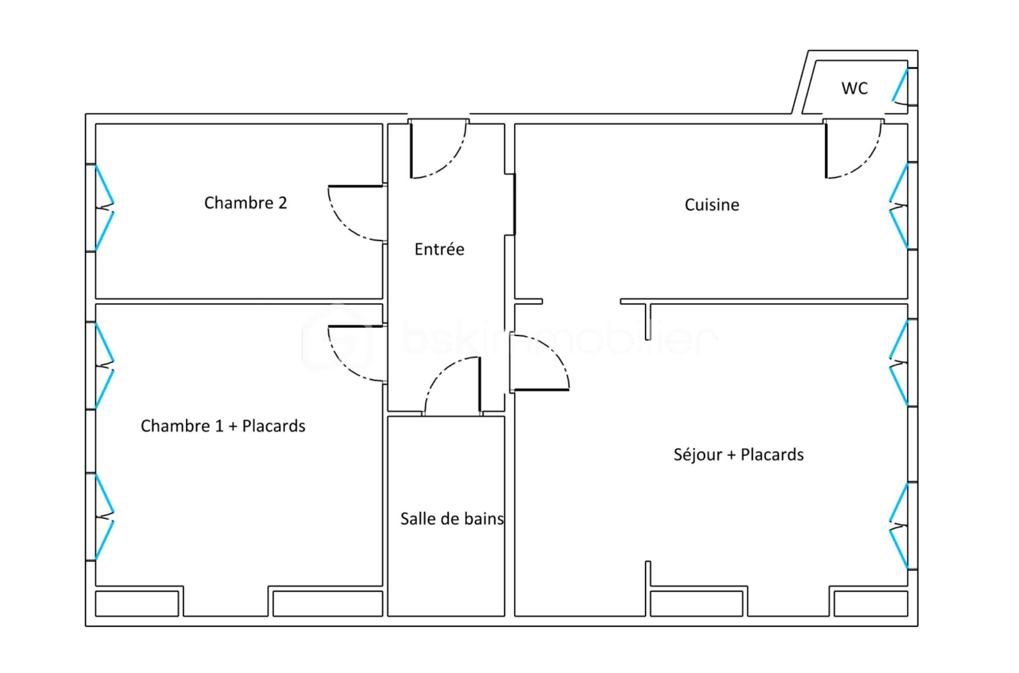
Le hall d'entrée distribue :
l'espace jour composé d'une cuisine ouverte sur le séjour-salle à manger et sa cheminée pour environ 35m2
l'espace nuit est composé de 2 chambres dont une avec cheminée décorative et placards
une salle de bain et des toilettes séparées
Situé au 14 Rue Antoine Durafour, une rue animée de la ville, où vous avez accès rapidement à pieds aux marchés des petits producteurs et aux cafés-restaurants typiques de la place Chavanelle ou du Cours Fauriel.
A proximité immédiate du conservatoire de musique et de théâtre, à 10 minutes à pieds de la faculté Jean Monnet, cet appartement saura vous séduire par ces volumes généreux, son cachet de l'ancien, sa belle hauteur sous plafond et sa double exposition est-ouest
Ce bien est équipé du double vitrage avec fenêtres en PVC, d'une chaudière individuelle au gaz pour le chauffage et l'eau chaude
Au premier étage de l'immeuble mais sans vis à vis direct, ce bien est à rafraichir pour retrouver tout son éclat
Conviendrai aussi pour investisseurs et de la collocation étudiante....
A venir visiter sans tarder !
Actuellement occupé par son locataire qui va bientôt déménager, cet appartement est vendu inoccupé
Cette annonce référence 311885 vous est présentée par votre agent commercial BSK Immobilier JUDICAËL MONTROBERT (EI) immatriculé au RSAC de SAINT-ETIENNE (42000) sous le numéro 94019431900015.
Prix du bien : 74 000,00 €
Les honoraires d'agence sont à la charge du vendeur.
A propos de la copropriété :
Pas de procédure en cours.
Nombre de lots : 36
Charges prévisionnelles annuelles : 1 200,00 €
A propos des performances énergétiques :
Date de réalisation du diagnostic énergétique : 26/04/2023
Score DPE : 181 kWhEP/m²/an
Score GES : 39 kgepCO2/m²/an
Montant estimé des dépenses annuelles d'énergie pour un usage standard : entre 1010.00 € et 1400.00 € par an. Prix moyens des énergies indexés sur l'année 2021 (abonnements compris).
Les informations sur les risques auxquels ce bien est exposé sont disponibles sur le site Géorisques : www.georisques.gouv.fr