Située sur les hauteurs du quartier Ibarron, venez poser vos valises dans cette charmante maison d’une superficie de 86 m² sur un terrain de 370 m².
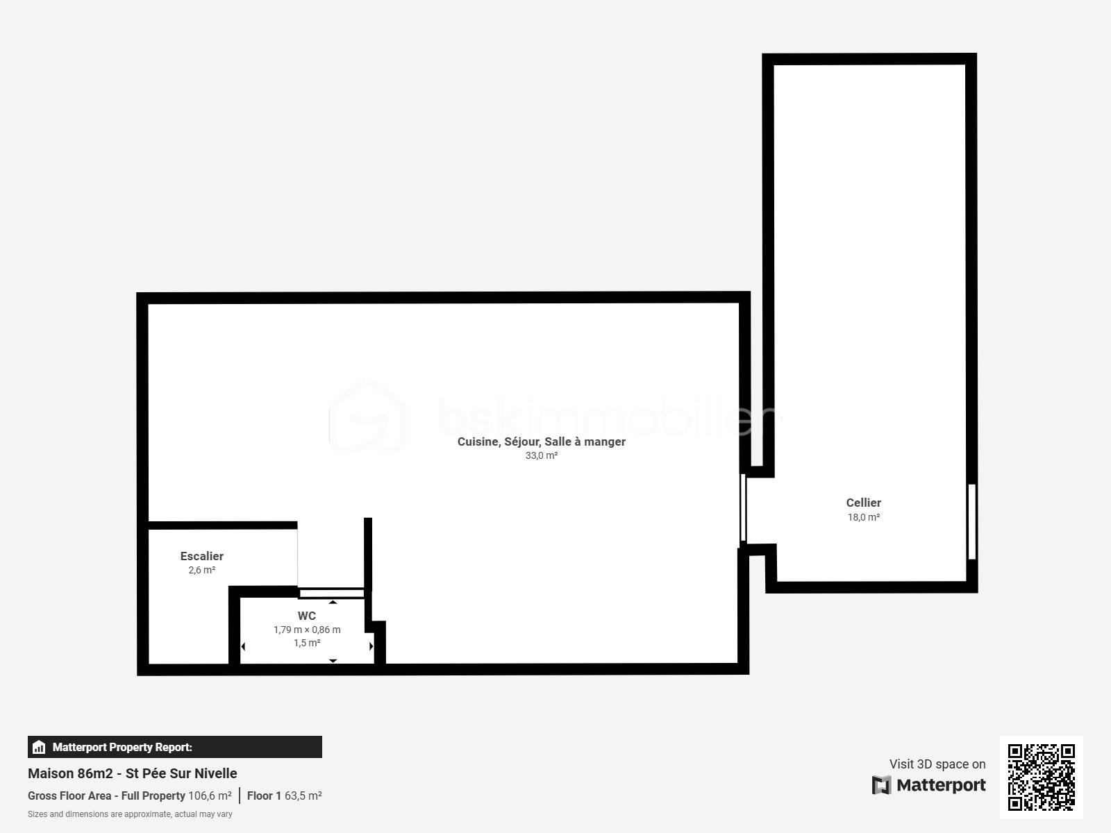
En rez-de-chaussée, vous découvrirez une belle pièce de vie lumineuse avec cuisine ouverte, aménagée et équipée offrant un accès direct à une grande terrasse couverte exposée Sud-Ouest, parfaite pour profiter des journées ensoleillées. Vous y trouverez également un grand cellier pour plus de rangement.
À l’étage, l’espace nuit propose 2 belles chambres, une salle d’eau avec baignoire et douche ainsi qu'un WC séparé pour plus de confort.
Pour compléter ce bien, un abri voiture, deux places de parkings et un cabanon de jardin, idéal pour le rangement.
Côté technique :
Chauffage par plancher chauffant (électrique).
Menuiseries ALU avec double vitrage.
Volets en bois.
Les plus :
Le calme pour profiter du jardin.
Produit rare sur le secteur !
Visite virtuelle haut de gamme disponible sur demande.
Je suis à votre disposition 7 jours/7 pour organiser une visite. Ne tardez pas, cette maison n’attend que vous !
Cette annonce référence 314985 vous est présentée par votre agent commercial BSK Immobilier ARNAUD CUYAUBERE (EI) immatriculé au RSAC de BAYONNE (64100) sous le numéro 84056432200021.
Prix du bien : 380 000,00 €
Les honoraires d'agence sont à la charge du vendeur.
A propos de la copropriété :
Pas de procédure en cours.
Nombre de lots : 4
Charges prévisionnelles annuelles : 0,00 €
A propos des performances énergétiques :
Date de réalisation du diagnostic énergétique : 30/06/2025
Score DPE : 183 kWhEP/m²/an
Score GES : 7 kgepCO2/m²/an
Montant estimé des dépenses annuelles d'énergie pour un usage standard : entre 1180.00 € et 1650.00 € par an. Prix moyens des énergies indexés sur l'année 2023 (abonnements compris).
Les informations sur les risques auxquels ce bien est exposé sont disponibles sur le site Géorisques : www.georisques.gouv.fr