SOLÈNE KOZACZKA
Appeler Email

Local commercial de 4 279 m² à Samazan

3 110 000 €
47250 Samazan
Ref. 304945

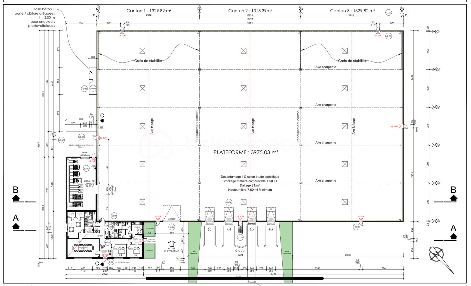
À VENDRE / À LOUER – Bâtiment de Stockage & Plateforme Logistique – 4 279 m²
Localisation : SORTIE D’AUTOROUTE DE MARMANDE (Samazan) à 500m de la sortie du Péage avec une visibilité depuis l’autoroute (voir photos)

Idéalement situé entre Toulouse et Bordeaux

Surface totale : 4 279 m² sur une parcelle de 22 578 m²


Atouts majeurs du site :

Extérieur
• Parcelle totale : 22 500 m² entièrement clôturée
• Aires de manœuvre : 9 500 m² viabilisés en enrobés, double accès poids lourds avec 2 portails électriques permettant une circulation fluide sans croisement
• Sécurité et accessibilité : voie pompier ceinturant le bâtiment
• Accès logistique : 4 quais PL + 1 accès de plain-pied par rideau métallique

Production d’énergie
• Installation photovoltaïque en toiture :
• Puissance : 307 kWc
• Contrat EDF en cours (≈ 17 ans restants)
• Revenus annuels minimum : 35 000 € (≈ 600 000 € sur la durée restante du contrat)


Intérieur
• Surface totale bâtiment : 4 279 m²
• Plateforme de stockage : 3 975 m²
• Local de charge coupe-feu pour chariots-élévateurs
• Bureaux et locaux sociaux :
• Bureaux chauffés et climatisés
• Salle de réunion, salles de pause, sanitaires & vestiaires
• Espace dédié chauffeurs (salle de repas, douches, WC)

Caractéristiques techniques :
• Bâtiment isolé en bardage double peau
• Dallage béton quartzé haute résistance


Un site clé en main pour vos activités logistiques ou industrielles !
Idéal pour plateforme logistique, centre de distribution, stockage longue durée ou activité industrielle nécessitant de grandes surfaces de manœuvre.
Cette annonce référence 304945 vous est présentée par votre agent commercial BSK Immobilier SOLÈNE KOZACZKA (EI) immatriculé au RSAC de AGEN (47000) sous le numéro 94055388600018.

Prix du bien : 3 110 000,00 €
Prix du bien hors honoraires : 2 990 000,00 €
Honoraires TTC : 4,01 %
Les honoraires d'agence sont à la charge de l'acquéreur.

DPE vierge.

Les informations sur les risques auxquels ce bien est exposé sont disponibles sur le site Géorisques : www.georisques.gouv.fr


  • 5 pièces
  • 4 279 m²

VI
VI

Prix : 3 110 000 €


  • Année de construction : 2020
Local commercial de 4 279 m² - ext.jpg Local commercial de 4 279 m² - Plan de situation.jpeg
Local commercial de 4 279 m² - Façade.jpeg
SOLÈNE KOZACZKA
SOLÈNE KOZACZKA
12 biens en vente

Autres biens qui pourraient vous plaîre

  • LAURA DE ZORZI - 251011042459_photo_en_situation_professionnelle
    47430 Caumont-Sur-Garonne
    • 5 pièces
    • 104,84 m²
    • 4 chambres
  • FABIEN DESJARDINS - desjardins_1
    47250 Grezet-Cavagnan
    • 5 000 m²
  • FABIEN DESJARDINS - desjardins_1
    47250 Grezet-Cavagnan
    • 1 000 m²
  • FABIEN DESJARDINS - desjardins_1
    47250 Grezet-Cavagnan
    • 1 000 m²