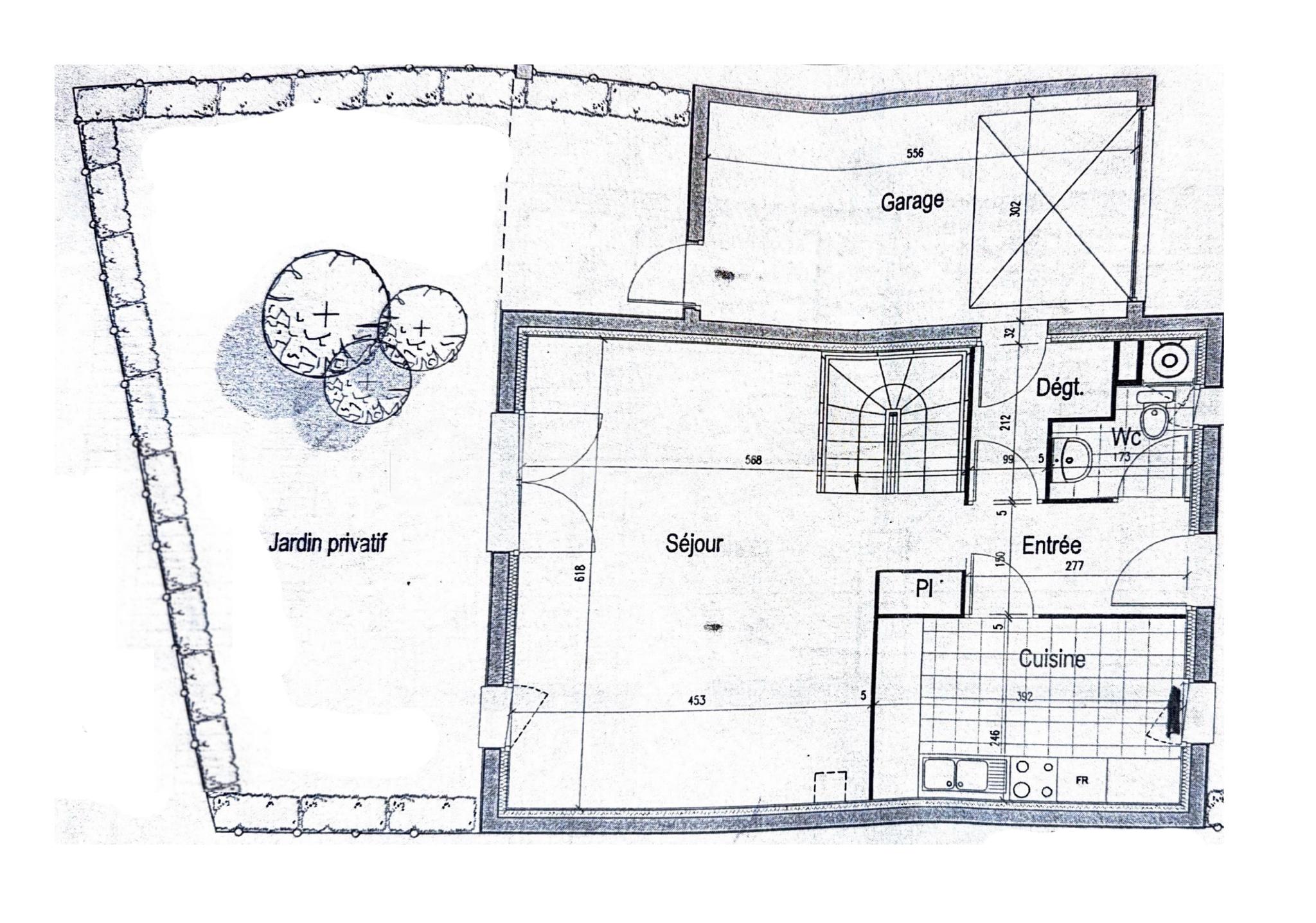
SERRIS BOURG - Venez découvrir cette charmante maison de 85m² (loi carrez) 95m² au sol, située dans une IMPASSE au calme, composée d'une ENTREE, CUISINE séparée pouvant être ouverte sur le SEJOUR LUMINEUX, JARDIN de 77m², dégagement optimisé avec coin BUANDERIE donnant accès au GARAGE (avec mezzanine), WC avec lave-mains, à l'étage TROIS chambres dont deux avec placards, une salle de bains avec WC. Combles aménageables.
LES PLUS :
- Localisation au calme
- 5 min à pied des commerces
- RER A - Val d'Europe : 8 min en voiture / 15 min en bus
- A4 : 4 min en voiture
- Garage + Place de parking devant la maison
- Charges faibles
Cette annonce référence 317617 vous est présentée par votre agent commercial BSK Immobilier ROSAYA CAZAU (EI) immatriculé au RSAC de NANTEUIL-LES-MEAUX (77100) sous le numéro 88392779000013.
Prix du bien : 385 000,00 €
Les honoraires d'agence sont à la charge du vendeur.
A propos de la copropriété :
Pas de procédure en cours.
Nombre de lots : 2
Charges prévisionnelles annuelles : 630,00 €
A propos des performances énergétiques :
Date de réalisation du diagnostic énergétique : 15/01/2026
Score DPE : 248 kWhEP/m²/an
Score GES : 9 kgepCO2/m²/an
Montant estimé des dépenses annuelles d'énergie pour un usage standard : entre 1930.00 € et 2650.00 € par an. Prix moyens des énergies indexés sur l'année 2026 (abonnements compris).
Les informations sur les risques auxquels ce bien est exposé sont disponibles sur le site Géorisques : www.georisques.gouv.fr