BSK Immobilier
BSK Immobilier
BSK Immobilier
SANDRINE PAKULA
Appeler Email
Retour
Maison de 131,18 m² - 1000300175.jpg

Maison de 131,18 m² à Sevran

443 000 €
93270 Sevran
Ref. 309730

À découvrir à Sevran, cette maison familiale de 131 m² habitables, édifiée en 1995 sur un terrain arboré de 1 540 m². Située dans un quartier résidentiel calme, elle offre un cadre de vie agréable alliant confort, espace et praticité au quotidien.

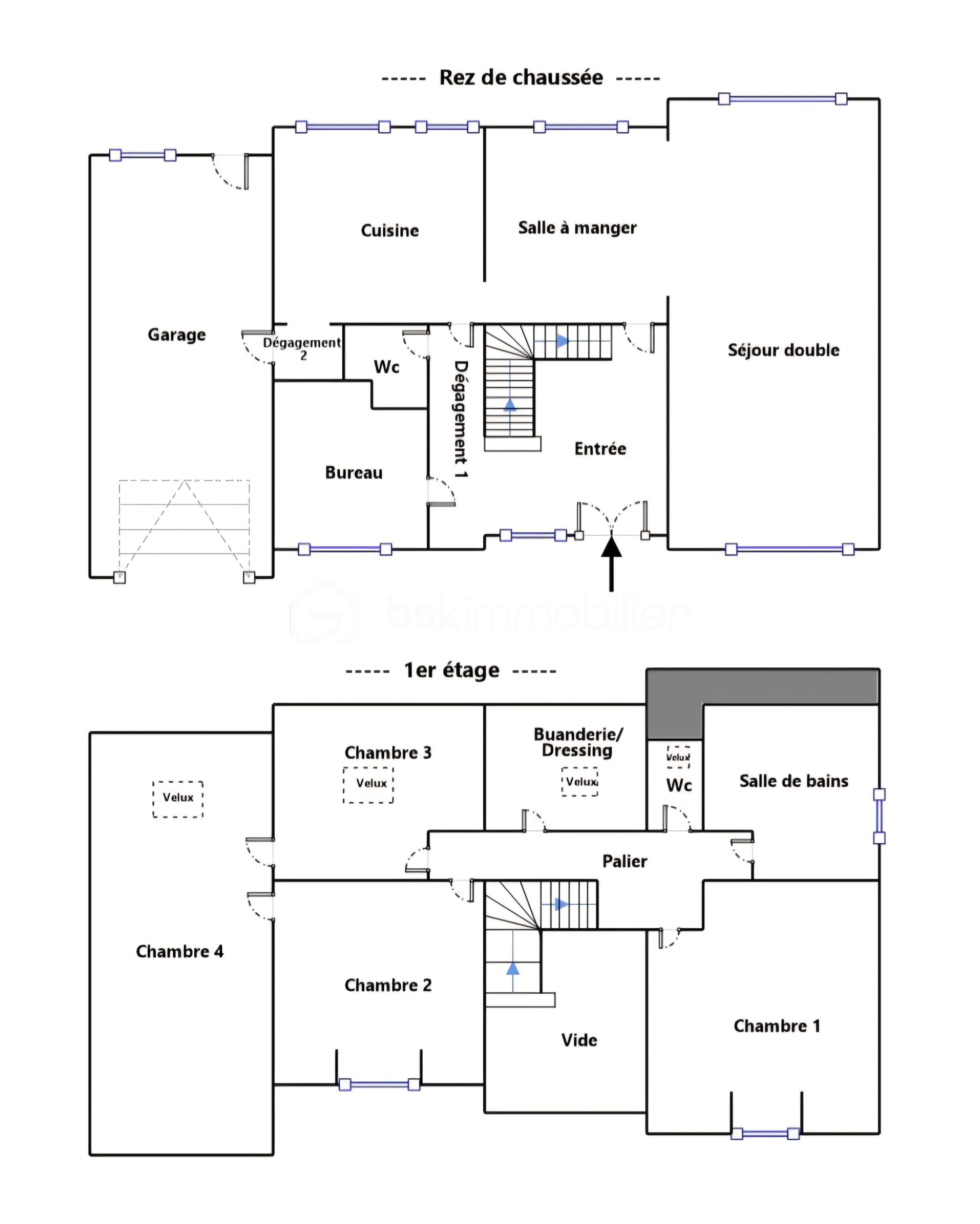
Au rez-de-chaussée, une entrée spacieuse mène vers un séjour double lumineux agrémenté d’une cheminée, une salle à manger attenante à la cuisine, un bureau, un WC et un accès direct au garage. À l’étage, le palier dessert quatre chambres dont 3 communicantes, une salle de bains, un WC indépendant ainsi qu’un espace buanderie/dressing.

Le terrain, entièrement clos et planté de nombreux arbres fruitiers, comprend un puits et des dépendances. Il offre la possibilité de construire une seconde maison, idéale pour un projet d’investissement locatif ou pour créer un logement indépendant. La maison bénéficie également de panneaux solaires, apportant un confort énergétique supplémentaire et des économies au quotidien.

La localisation est un véritable atout pour les familles. À quelques minutes à pied, les arrêts du tramway T4 Freinville-Sevran (environ 500 m, soit 6 minutes à pied) et Rougemont-Chanteloup (environ 350 m, soit 5 minutes à pied) facilitent les déplacements vers les gares RER et les communes voisines. Le canal de l’Ourcq, accessible à pied, offre un cadre verdoyant idéal pour les promenades et les loisirs en plein air.

Côté éducation, plusieurs établissements scolaires se trouvent à proximité immédiate : École maternelle Les Primevères, École maternelle Françoise Dolto, École maternelle Jean Perrin, École élémentaire Anatole France, École élémentaire Lamartine, École élémentaire Marie Curie, ainsi que les collèges de la Pléiade et Évariste Galois, tous situés à moins de 10 minutes en voiture. Cet environnement scolaire complet renforce l’intérêt de ce bien pour une vie de famille sereine.

Taxe foncière 2107e

Pour découvrir l’intégralité des photos et le plan de la maison, rendez-vous directement sur le site BSK Immobilier.
Cette annonce référence 309730 vous est présentée par votre agent commercial BSK Immobilier SANDRINE PAKULA (EI) immatriculé au RSAC de BOBIGNY (93000) sous le numéro 82756608400022.

Prix du bien : 443 000,00 €
Les honoraires d'agence sont à la charge du vendeur.

A propos des performances énergétiques :
Date de réalisation du diagnostic énergétique : 25/07/2025
Score DPE : 220 kWhEP/m²/an
Score GES : 7 kgepCO2/m²/an
Montant estimé des dépenses annuelles d'énergie pour un usage standard : entre 2190.00 € et 3000.00 € par an. Prix moyens des énergies indexés sur l'année 2023 (abonnements compris).

Les informations sur les risques auxquels ce bien est exposé sont disponibles sur le site Géorisques : www.georisques.gouv.fr


  • 6 pièces
  • 131,18 m²
  • 4 chambres
  • Calme

220 kWhEP/m².an
D
7 kgepCO2/m².an
B

Prix : 443 000 €


  • Année de construction : 1995
  • Cheminée
Maison de 131,18 m² - 1000299063.jpg Maison de 131,18 m² - 1000300181.jpg
Maison de 131,18 m² - 1000300175.jpg
SANDRINE PAKULA
SANDRINE PAKULA
15 biens en vente

Autres biens qui pourraient vous plaîre

  • DALILA MALIK - 240708110327_photo_en_situation_professionnelle
    93270 Sevran
    • 20 pièces
    • 1 665 m²
    • 2 500 m² de terrain
  • CYRILLE MADAVANE - Photo Mandataires (8)
    93270 Sevran
    • 4 pièces
    • 90 m²
    • 3 chambres
  • CHRISTELLE AMOR - amor_christelle
    93270 Sevran
    • 4 pièces
    • 80 m²
    • 3 chambres
  • SANDRINE PAKULA - 241004021501_photo_en_situation_professionnelle
    93270 Sevran
    • 4 pièces
    • 81,60 m²
    • 3 chambres