THIERRY MENNECART
Appeler Email
Retour
Maison de 134 m² - Façade.jpg

Maison de 134 m² à Villeneuve-Sur-Verberie

259 000 €
60410 Villeneuve-Sur-Verberie
Ref. 301388

Maison située au centre du village, accès direct A1 vers Roissy CDG en moins de 30 mn.

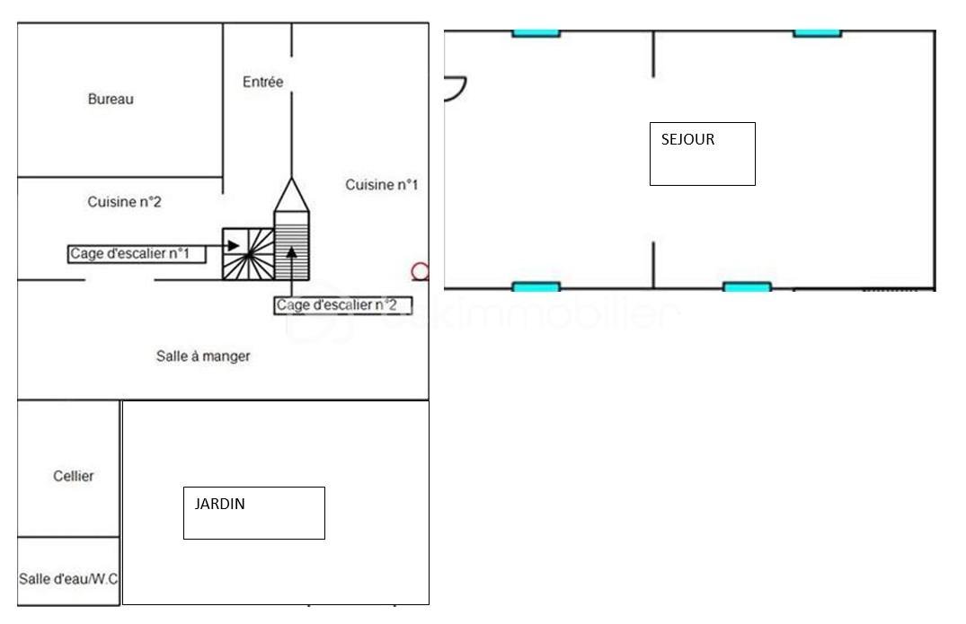
Elle offre au rez-de-chaussée :
Entrée,
Séjour,
Salon avec cheminée,
Cuisine,
Arrière cuisine,
Chambre,
Office avec toilette sèche et douche,
Véranda.

A l'étage :
3 chambres,
Salle de bain
WC.

Grenier aménageable.

Chauffage central fioul. Fibre. Bien orientée au soleil.

A noter : Le séjour et le salon sont situés au rez-de-chaussée de la maison voisine (à gauche sur la photo de la façade, Cf. annonce référence 301390) : possibilité d'acheter les 2 lots pour en faire une très grande maison ou un investissement locatif. Il y a également un 3ème lot situé à droite (annonce référence 311734).

Investisseur : venez visiter les 3 lots afin de vous rendre compte des possibilités sur place.

Bourg avec boulangerie et bar tabac presse, restaurants, tous les autres commerces à 5 minutes.

Zone aéroportuaire de Roissy Charles de Gaulle CDG à 25 minutes par l'autoroute A1.
Cette annonce référence 301388 vous est présentée par votre agent commercial BSK Immobilier THIERRY MENNECART (EI) immatriculé au RSAC de COMPIEGNE (60200) sous le numéro 34779622900065.

Prix du bien : 259 000,00 €
Les honoraires d'agence sont à la charge du vendeur.

A propos des performances énergétiques :
Date de réalisation du diagnostic énergétique : 25/07/2025
Score DPE : 206 kWhEP/m²/an
Score GES : 53 kgepCO2/m²/an
Montant estimé des dépenses annuelles d'énergie pour un usage standard : entre 3313.00 € et 4483.00 € par an. Prix moyens des énergies indexés sur l'année 2023 (abonnements compris).

Les informations sur les risques auxquels ce bien est exposé sont disponibles sur le site Géorisques : www.georisques.gouv.fr


  • 7 pièces
  • 134 m²
  • Exposition Sud
  • 4 chambres

206 kWhEP/m².an
E
53 kgepCO2/m².an
E

Prix : 259 000 €


  • Année de construction : 1960
  • Cheminée
Maison de 134 m² - ETAGE CH1.jpg Maison de 134 m² - ETAGE CH2.jpg
Maison de 134 m² - Façade.jpg
THIERRY MENNECART
THIERRY MENNECART
Pontpoint, Pont Sainte Maxence et tout le Sud Oise
8 biens en vente

Autres biens qui pourraient vous plaîre

  • 60410 Villeneuve-Sur-Verberie
    • 5 pièces
    • 107 m²
    • 4 chambres
  • 60410 Villeneuve-Sur-Verberie
    • 3 pièces
    • 128 m²
    • 1 chambre
  • THIERRY MENNECART - QAC60k3nFVR1c369j3rC7b
    60700 Pontpoint
    • 2 008 m²
  • ALEXANDRE BAILLY - bsk (14).png
    60700 Pontpoint
    • 5 pièces
    • 148 m²
    • 3 chambres