BSK Immobilier
BSK Immobilier
BSK Immobilier
LAURENT ARMANET
Appeler Email
Retour
IMG_E9797 - Copie.JPG

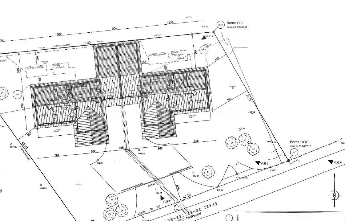
Terrain de 772 m² à Viriville

105 000 €
38980 Viriville
Ref. 307340

Idéal, jeunes couples, ou investisseurs

A vendre terrain constructible comprenant 2 lots identiques d'environ 772m²sur une parcelle totale de 1550m² environ.
Il est munis d'un permis de construire en cours de validité permettant la construction d'une maison mitoyenne.
Des travaux de gros œuvre sont déjà réalisés, à savoir:
_Les fondations
_les vides sanitaires
_les pré-dalles (maison et garage)
_Certains murs d'enceinte et de soutènement (sur 2 côtés)

Sur les hauteurs du centre du village, vous profiterez du calme et de la vue dégagée sur la plaine de la bièvre.

A visiter sans tarder!
Cette annonce référence 307340 vous est présentée par votre agent commercial BSK Immobilier LAURENT ARMANET (EI) immatriculé au RSAC de GRENOBLE (38000) sous le numéro 99162858700016.

Prix du bien : 105 000,00 €
Les honoraires d'agence sont à la charge du vendeur.

Les informations sur les risques auxquels ce bien est exposé sont disponibles sur le site Géorisques : www.georisques.gouv.fr


  • 772 m²
  • Calme
  • Situé en campagne

Prix : 105 000 €


  • Constructible
  • Viabilisé
Façade Sud et Est - Copie.JPG plan de masse.JPG
IMG_E9797 - Copie.JPG
LAURENT ARMANET
LAURENT ARMANET
4 biens en vente

Autres biens qui pourraient vous plaîre

  • CELINE HERRERO - 240310081433_photo_en_situation_professionnelle
    38870 Saint-Simeon-De-Bressieux
    • 3 pièces
    • 68,33 m²
    • 2 chambres
  • JAVIER DONOSO MORETTI - donoso_moretti_javier
    38870 Saint-Simeon-De-Bressieux
    • 6 pièces
    • 183 m²
    • 5 chambres
    • 893 m² de terrain
  • CHRISTIAN DUCLOT - PFAvjWx99YMFXGfgzNugL0
    38940 Roybon
    • 4 pièces
    • 91 m²
    • 3 chambres
    • 99 m² de terrain
  • CELINE HERRERO - 240310081433_photo_en_situation_professionnelle
    38260 Pajay
    • 8 pièces
    • 353 m²
    • 3 chambres
    • 1 437 m² de terrain