BSK Immobilier
BSK Immobilier
BSK Immobilier
GWENAELLE DEFRANCE
Appeler Email
Retour
Maison de 93 m² - 20251021_134147.jpg

Maison de 93 m² à Bouy

194 000 €
51400 Bouy
Ref. 308390

Sur la commune de Bouy (51400), avec la proximité de l'école, à 18 minutes de Châlons en Champagne et 30 minutes de Reims, dans un village où il fait bon vivre.

Venez découvrir cette maison individuelle de 92m² à fort potentiel avec travaux, de confort de plain-pied, érigée sur une parcelle de 1089m² totalement clôturée sur sous sol total.

Vous y découvrirez, une véranda, une cuisine séparée, un salon - séjour, un WC séparé, une salle d'eau et deux chambres.

A l'étage vous bénéficierez d'un palier desservant une chambre, un WC avec un point d'eau et deux parties combles dont une partie pouvant devenir une chambre après travaux.

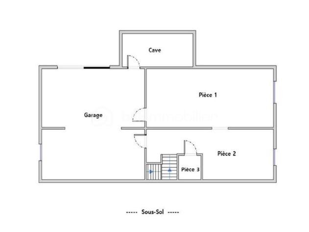
Ce bien est sur sous sol complet divisé en trois parties une partie garage, une partie chaufferie/ Buanderie et une partie atelier. Ce pavillon comprend également une cave.

En extérieur vous profitez d'une jolie parcelle totalement clôturée et d'une dépendance.

Les informations complémentaires:
- cheminée bois
- menuiseries PVC double vitrage + volets motorisés
- VMC SF Auto - réglable
- tout à l'égout

Envie de découvrir ce bien à fort potentiel avec travaux, je vous invite à me contacter dès maintenant afin d'organiser une visite.
Cette annonce référence 308390 vous est présentée par votre agent commercial BSK Immobilier GWENAELLE DEFRANCE (EI) immatriculé au RSAC de CHALONS-EN-CHAMPAGNE (51000) sous le numéro 89130231700021.

Prix du bien : 194 000,00 €
Prix du bien hors honoraires : 185 000,00 €
Honoraires TTC : 4,86 %
Les honoraires d'agence sont à la charge de l'acquéreur.

A propos des performances énergétiques :
Date de réalisation du diagnostic énergétique : 26/05/2025
Score DPE : 425 kWhEP/m²/an
Score GES : 121 kgepCO2/m²/an
Montant estimé des dépenses annuelles d'énergie pour un usage standard : entre 4760.00 € et 6500.00 € par an. Prix moyens des énergies indexés sur l'année 2021 (abonnements compris).

Les informations sur les risques auxquels ce bien est exposé sont disponibles sur le site Géorisques : www.georisques.gouv.fr


  • 5 pièces
  • 93 m²
  • 3 chambres
  • Parking
  • Terrasse
  • Calme
  • Situé en campagne

425 kWhEP/m².an
G
121 kgepCO2/m².an
G

Prix : 194 000 €


  • Année de construction : 1974
  • Cheminée
Maison de 93 m² - 20251021_133848.jpg Maison de 93 m² - 20251021_133818.jpg
Maison de 93 m² - 20251021_134147.jpg
GWENAELLE DEFRANCE
GWENAELLE DEFRANCE
20 biens en vente

Autres biens qui pourraient vous plaîre

  • GWENAELLE DEFRANCE - BJsN4kvbfwyj0DQwPnXAvv
    51400 Bouy
    • 7 pièces
    • 183 m²
    • 5 chambres
    • 1 240 m² de terrain
  • GWENAELLE DEFRANCE - BJsN4kvbfwyj0DQwPnXAvv
    51400 Livry-Louvercy
    • 7 pièces
    • 132 m²
    • 4 chambres
    • 963 m² de terrain
  • GWENAELLE DEFRANCE - BJsN4kvbfwyj0DQwPnXAvv
    51400 Livry-Louvercy
    • 8 pièces
    • 144 m²
    • 6 chambres
    • 768 m² de terrain
  • GWENAELLE DEFRANCE - BJsN4kvbfwyj0DQwPnXAvv
    51400 Mourmelon-Le-Grand
    • 11 pièces
    • 475 m²
    • 638 m² de terrain