GWENAELLE DEFRANCE
Appeler Email
Retour
Maison traditionnelle de 183 m² - Polish_20251130_151554448.jpg

Maison traditionnelle de 183 m² à Bouy

339 000 €
51400 Bouy
Ref. 313436

Sur la commune de Bouy (51400), dans une rue peu passante, avec la proximité de l'école, à 18 minutes de Châlons en Champagne et 30 minutes de Reims, dans un village où il fait bon vivre.

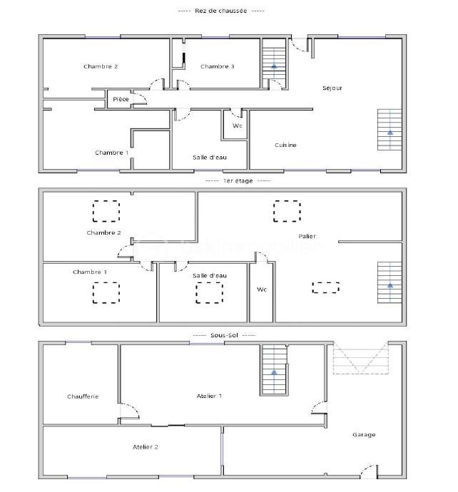
Venez découvrir cette jolie maison familiale individuelle à fort potentiel, sans gros travaux sur sous sol total, d'environ 211m² de surface au sol ( 183m² de surface habitable), bénéficiant du confort d'un plain-pied, érigée sur une parcelle totalement clôturée de 1240m².

Vous y découvrirez une pièce de vie de plus de 50m² avec une cuisine équipée semi ouverte, un WC séparé, une salle de bain comprenant une baignoire d'angle, deux vasques et trois grandes chambres (17,29/ 12,49 et 12.39m²).

A l'étage vous profiterez d'une spacieuse pièce palière (avec le possibilité de créer deux chambres supplémentaires), un WC séparé suspendu, une salle de douche et deux chambres.

Le sous sol total est divisé en quatre parties (une partie stationnement, une buanderie, une chaufferie et un atelier).

Concernant les extérieurs vous apprécierez profiter des longues soirées d'été en terrasse, le bien comprend également une dépendance avec une dalle béton et une pergola.

Les informations complémentaires:
- chaudière à granulés avec programmateur - Décembre 2019
- couverture + vélux - 2018
- VMC auto-réglable
- ballon électrique 300L
- porte du garage + portail motorisés
- terrasse sur pilotis
- taxe foncière 2024 - 1317euros
- tout à l'égout
- piscine hors sol
- bien disponible en Juillet 2026

Envie de découvrir cette jolie maison familiale sans gros travaux je vous invite à me contacter dès maintenant afin d'organiser une visite.
Cette annonce référence 313436 vous est présentée par votre agent commercial BSK Immobilier GWENAELLE DEFRANCE (EI) immatriculé au RSAC de CHALONS-EN-CHAMPAGNE (51000) sous le numéro 89130231700021.

Prix du bien : 339 000,00 €
Les honoraires d'agence sont à la charge du vendeur.

A propos des performances énergétiques :
Date de réalisation du diagnostic énergétique : 26/09/2025
Score DPE : 208 kWhEP/m²/an
Score GES : 6 kgepCO2/m²/an
Montant estimé des dépenses annuelles d'énergie pour un usage standard : entre 3190.00 € et 4360.00 € par an. Prix moyens des énergies indexés sur l'année 2023 (abonnements compris).

Les informations sur les risques auxquels ce bien est exposé sont disponibles sur le site Géorisques : www.georisques.gouv.fr


  • 7 pièces
  • 183 m²
  • 5 chambres
  • Parking
  • Terrasse
  • Calme
  • Situé en campagne

208 kWhEP/m².an
D
6 kgepCO2/m².an
B

Prix : 339 000 €


  • Année de construction : 1968
Maison traditionnelle de 183 m² - Polish_20251130_152555913.jpg Maison traditionnelle de 183 m² - Polish_20251130_152954671.jpg
Maison traditionnelle de 183 m² - Polish_20251130_151554448.jpg
GWENAELLE DEFRANCE
GWENAELLE DEFRANCE
24 biens en vente

Autres biens qui pourraient vous plaîre

  • GWENAELLE DEFRANCE - BJsN4kvbfwyj0DQwPnXAvv
    51400 Bouy
    • 5 pièces
    • 93 m²
    • 3 chambres
    • 1 089 m² de terrain
  • GWENAELLE DEFRANCE - BJsN4kvbfwyj0DQwPnXAvv
    51400 Bouy
    • 5 pièces
    • 100 m²
    • 4 chambres
    • 250 m² de terrain
  • GWENAELLE DEFRANCE - BJsN4kvbfwyj0DQwPnXAvv
    51400 Bouy
    • 5 pièces
    • 93 m²
    • 3 chambres
    • 1 262 m² de terrain
  • GWENAELLE DEFRANCE - BJsN4kvbfwyj0DQwPnXAvv
    51400 Bouy
    • 5 pièces
    • 100 m²
    • 4 chambres
    • 333 m² de terrain