LUDOVIC MOREL
Appeler Email
Retour
Maison de 151 m² - 1.jpg

Maison de 151 m² à Coubron

649 000 €
93470 Coubron
Ref. 310307

Les chevaux comme voisins ! Vue imprenable sur les champs et la forêt !

À quelques pas des écoles maternelle et primaire, ce pavillon de plain pied édifié sur sous-sol en 1980 de 151m² habitable, 216m² utile, permet de vivre de PLAIN PIED et de profiter du terrain de 420m². Finitions incroyable !

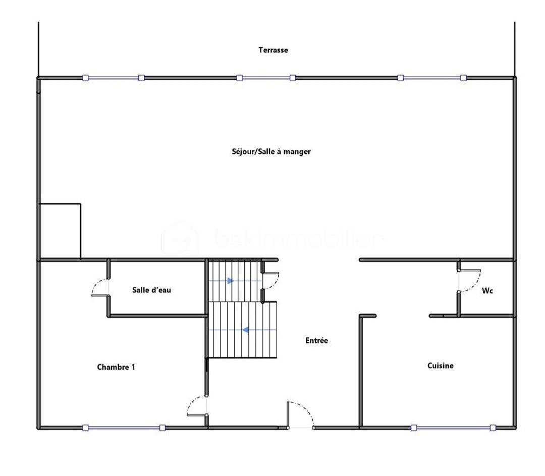
Agencement :
De plain-pied
• Entrée
• Séjour triple (44m²)
• Terrasse avec pergola (25m²)
• Cuisine aménagée et équipée (9m²)
• Chambre (11m²)
• Salle d'eau (2m²)
• WC avec lave-main

Etage
• Palier
• Chambre (9,5m²)
• Chambre (11m²)
• Suite parentale : chambre (10,5m²), dressing (11m²), salle d’eau (5m²)
• Salle d’eau (2,6m²)
• WC

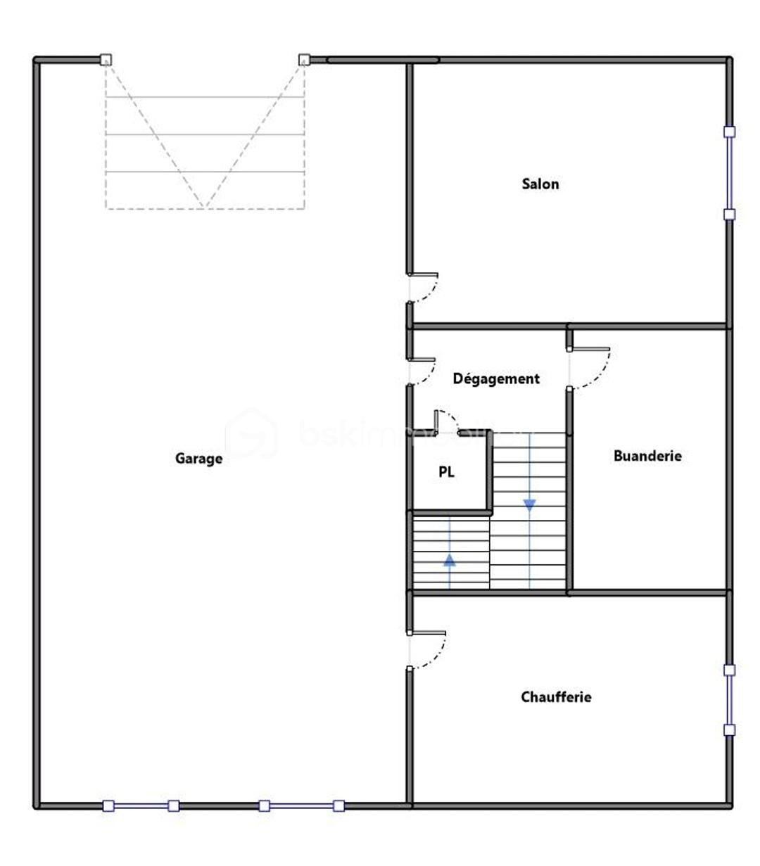
Sous-sol (HSP 2,10m)
• Garage double (43m²)
• Salon (14m²)
• Buanderie
• Chaufferie
• Cave

Jardin sans vis-à-vis, de la place pour 4 véhicules.

Prestations
• Double vitrage PVC, volets roulant électrique (2020)
• Isolation intérieure et extérieure (2023)
• Chauffage au gaz, chaudière récente
• DPE performant en C
• Chambre et salle d'eau au rez-de-chaussée (idéal pour une vie sans escaliers)
• PRESTATIONS EXCEPTIONNELLES

Localisation
• Gare du Nord à 45 min
• Futur métro ligne 16 à 15 min
• Ecoles, commerces à 5 min à pied

Parfait pour famille, profession libérale ou investisseur, ce bien combine emplacement, confort et potentiel.

Une visite s'impose !

Ludovic MOREL
Votre Partenaire Immobilier
Depuis 2010
☎️ 06 66 16 36 52

+++
Cette annonce référence 310307 vous est présentée par votre agent commercial BSK Immobilier LUDOVIC MOREL (EI) immatriculé au RSAC de BOBIGNY (93000) sous le numéro 91259345600029.

Prix du bien : 649 000,00 €
Les honoraires d'agence sont à la charge du vendeur.

A propos des performances énergétiques :
Date de réalisation du diagnostic énergétique : 19/06/2025
Score DPE : 99 kWhEP/m²/an
Score GES : 18 kgepCO2/m²/an
Montant estimé des dépenses annuelles d'énergie pour un usage standard : entre 1400.00 € et 1940.00 € par an. Prix moyens des énergies indexés sur l'année 2021 (abonnements compris).

Les informations sur les risques auxquels ce bien est exposé sont disponibles sur le site Géorisques : www.georisques.gouv.fr


  • 7 pièces
  • 151 m²
  • Exposition Est-Ouest
  • 4 chambres
  • Parking
  • Terrasse
  • Calme
  • Refait à neuf

99 kWhEP/m².an
C
18 kgepCO2/m².an
C

Prix : 649 000 €


  • Année de construction : 1980
Maison de 151 m² - 2.jpg Maison de 151 m² - 3.jpg
Maison de 151 m² - 1.jpg
LUDOVIC MOREL
LUDOVIC MOREL
28 biens en vente

Autres biens qui pourraient vous plaîre

  • LUDOVIC MOREL - 250717081059_photo_en_situation_professionnelle
    93470 Coubron
    • 6 pièces
    • 140 m²
    • 4 chambres
    • 715 m² de terrain
  • LUDOVIC MOREL - 250717081059_photo_en_situation_professionnelle
    93470 Coubron
    • 6 pièces
    • 110 m²
    • 4 chambres
    • 562 m² de terrain
  • LUDOVIC MOREL - 250717081059_photo_en_situation_professionnelle
    93470 Coubron
    • 6 pièces
    • 130 m²
    • 4 chambres
  • LUDOVIC MOREL - 250717081059_photo_en_situation_professionnelle
    93470 Coubron
    • 226 m²