VALERIE BARBIERI
Appeler Email
Retour
Maison traditionnelle de 176 m² - 0b40b663-49b1-4c46-ac8a-b4e834e0aa7b.jpg

Maison traditionnelle de 176 m² à Les Arcs

569 000 €
83460 Les Arcs
Ref. 312131

BSKIMMOBILIER – VALERIE BARBIERI vous présente à la vente,
Une magnifique maison de charme des années 80, nichée au cœur d’un secteur paisible et très prisé du village médiéval des Arcs-sur-Argens.
Édifiée sur un vaste terrain en zone naturelle entièrement clôturé d'environ 7000m², cette propriété séduira les amoureux de nature, de sérénité et de beaux espaces. Un lieu rare, authentique, à façonner selon vos envies !
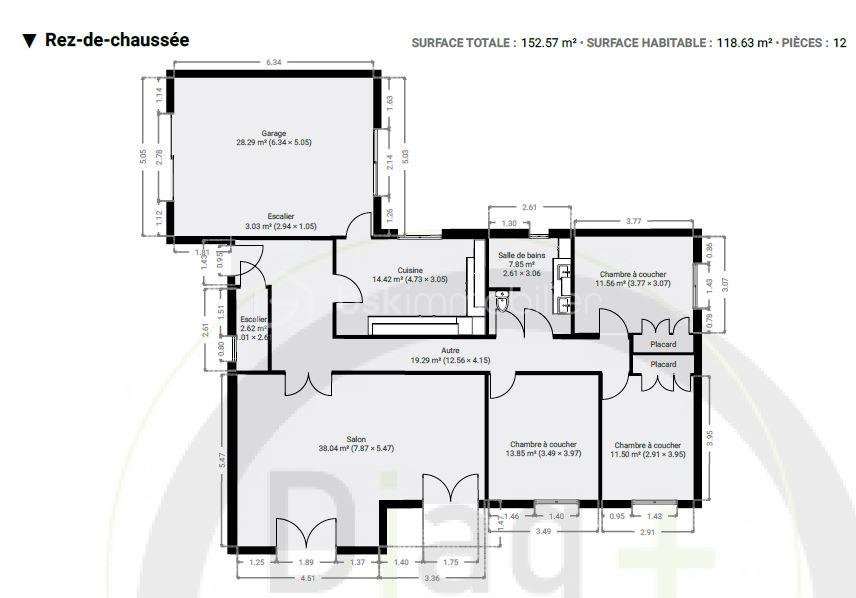
🏡 Une maison de 176 m² au potentiel exceptionnel construite avec soin et offrant de beaux volumes, elle se compose comme suit:
Au rez-de-chaussée : Trois chambres généreuses, Une salle d’eau avec WC, Une cuisine indépendante attenante au garage, Un vaste salon/salle à manger baigné de lumière donnant sur l’extérieur.
À l’étage : Un palier desservant deux chambres en enfilade, Une seconde salle d’eau avec WC.
⭐ Atouts majeurs du bien : Sous-sol avec cave, Carport, Menuiseries bois double vitrage, toiture contrôlée en 2018, crépi refait la même année, Belle qualité de construction.
Le +, Possibilité d’agrandissement, création de piscine, Pool-house, …
🌿 Un environnement préservé et rare!
✨ Une opportunité unique pour ceux qui cherchent le charme, l’espace et la nature réunis !
Mon avis : Cette maison offre un cadre de vie privilégié, parfaitement au calme, avec un énorme potentiel de rénovation et d’aménagement. Un véritable havre de paix à personnaliser, idéal pour une famille, une résidence secondaire ou un projet de vie au vert.

📞 N’hésitez pas à me contacter pour davantage d’informations ou organiser une visite.
Visites possibles tous les jours, week-end et jours fériés.
Cette annonce référence 312131 vous est présentée par votre agent commercial BSK Immobilier VALERIE BARBIERI (EI) immatriculé au RSAC de DRAGUIGNAN (83300) sous le numéro 88029666000017.

Prix du bien : 569 000,00 €
Les honoraires d'agence sont à la charge du vendeur.

A propos des performances énergétiques :
Date de réalisation du diagnostic énergétique : 22/10/2025
Score DPE : 134 kWhEP/m²/an
Score GES : 21 kgepCO2/m²/an
Montant estimé des dépenses annuelles d'énergie pour un usage standard : entre 2590.00 € et 3550.00 € par an. Prix moyens des énergies indexés sur l'année 2025 (abonnements compris).

Les informations sur les risques auxquels ce bien est exposé sont disponibles sur le site Géorisques : www.georisques.gouv.fr


  • 7 pièces
  • 176 m²
  • 5 chambres
  • Parking
  • Terrasse
  • Situé en campagne

134 kWhEP/m².an
C
21 kgepCO2/m².an
C

Prix : 569 000 €


  • Année de construction : 1984
Maison traditionnelle de 176 m² - 09mn7prx.jpg Maison traditionnelle de 176 m² - a43ec35c-e840-46ce-9ef1-1d96c692d387.jpg
Maison traditionnelle de 176 m² - 0b40b663-49b1-4c46-ac8a-b4e834e0aa7b.jpg
VALERIE BARBIERI
VALERIE BARBIERI
23 biens en vente

Autres biens qui pourraient vous plaîre

  • CHRISTINE RUWET - 240318042012_photo_en_situation_professionnelle
    83460 Les Arcs
    • 3 pièces
    • 62 m²
    • 2 chambres
  • VALERIE BARBIERI - barbieri
    83460 Les Arcs
    • 5 pièces
    • 130 m²
    • 3 chambres
    • 2 400 m² de terrain
  • FABIENNE RIGAUD - rigaud_fabienne
    83460 Les Arcs
    • 5 pièces
    • 150 m²
    • 4 chambres
  • 83460 Les Arcs